
古町ビル 詳細
205号室
お気に入り
追加済み
物件画像を詳しく見る

チャレンジャー、セブンイレブンそれぞれ250m以内で日々の買い物便利な立地
物件概要
-
賃料
4万円/月
-
管理費
なし
-
敷/礼
2ヶ月/
なし
-
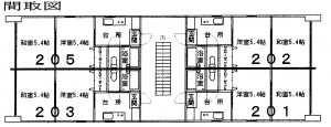
間取り
2K (和室:5.4畳) (洋室:5.4)
-
広さ
29㎡
/8.77坪
-
階建
地上2階建
-
築年数
1997年2月(築29年)
-
種別
アパート・マンション・一戸建て
-
住所
新潟県長岡市西新町2丁目6-17
物件へのルート表示
-
交通
駅:信越線 北長岡駅から徒歩8分、バス:チャレンジャー北長岡店前から徒歩2分
長岡駅方面の便数多いバス停まで180m♪
-
物件コード
00023-100264
-
物件名
古町ビル
-
交通
駅:信越線 北長岡駅から徒歩8分、バス:チャレンジャー北長岡店前から徒歩2分
-
所在地
新潟県長岡市西新町2丁目6-17
物件へのルート表示
-
物件種別
アパート・マンション・一戸建て
-
総戸数
-
-
構造
鉄骨
-
階建
地上2階建
-
所在階/階数
2階/2階
-
号室
205号室
-
専有面積
29㎡
/8.77坪
-
方位
指定なし
-
間取り
2K (和室:5.4畳) (洋室:5.4)
-
賃料
4万円/月
-
管理費
-
-
礼金
-
-
敷金
2ヶ月
-
共益費
-
-
ほか初期費用
-
-
その他諸費用
-
-
更新料
-
-
火災(家財)保険
別途加入のこと
-
駐車場
5,000円
-
町内費
300円
-
バイク料金
-
-
鍵交換費
-
-
清掃料
-
-
更新事務手数料
-
-
保証区分
連帯保証人のみ
-
保証会社
区分:指定なし
-
-
連帯保証人
[区分]
要
-
-
仲介手数料
44,000円
-
手数料負担割合
貸主:-%
借主:100%
-
手数料配分割合
元付:50%
客付:50%
-
築年月
1997年2月(築29年)
-
利用制限
ペット:不可、楽器:不可
-
学校区
新町小学校(243m)・北中学校(886m)
-
設備
バス停近く、追いだき機能付き、温水洗浄便座、エアコン、都市ガス
-
入居時期
即入居可
-
取引態様
仲介
-
情報登録日
2025/02/06
-
次回更新予定日
2026/04/20
備考
取扱い会社
越路建設 株式会社
-
TEL
0258-34-3433
-
所在地
新潟県長岡市新町1-3-30
-
交通
新町1丁目バス停徒歩1分(ファミリーマート向かい)
-
営業時間
8:30~17:30/定休日:土曜・日曜・祭日
-
免許番号
新潟県知事(6)4072号
-
所属団体名
新潟県宅地建物取引業協会 長岡支部
-
取引態様
仲介
Copyright (C) 株式会社 コモンライフ・コーポレーション. All Rights Reserved.
不動産検索サイト「らくすむ」及び関連サイトに記載の不動産情報は、会員規約に則り、情報提供会社様の責任のもとに発信されております。
不動産の賃借、購入に関しては賃借者、購入者ご自身が情報を確認され、会社企業様から説明を受けられたうえで判断をお願いいたします。
不動産検索サイト「らくすむ」及び関連サイトに記載の不動産情報、写真、デザイン、コンテンツなどの無断転載・転用・複製など禁止します。