
宮内1丁目リノベーション物件♪近隣駐車場も紹介可能♪価 詳細
お気に入り
追加済み
物件画像を詳しく見る

宮内1丁目のリノベーション物件です♪近隣駐車場も紹介可能です♪価格改定しました。
物件概要
宮内1丁目のリノベーション物件です♪近隣駐車場も紹介可能です♪価格改定しました。
-
物件コード
00017-200304
-
物件名
宮内1丁目リノベーション物件♪近隣駐車場も紹介可能♪価
-
交通
駅:信越線 宮内駅から徒歩6分
-
所在地
新潟県長岡市宮内1丁目10-25
物件へのルート表示
-
物件種別
中古一戸建て
-
構造
木造
-
階建
地上2階建
-
建ぺい率/容積率
60%/200%
-
建物面積
106.27㎡
/32.14坪
-
土地面積
113.96㎡
/34.47坪
-
築年月
1986年7月(築39年)
-
入居時期
随時入居(引き渡し)可
-
用途地域
第1種住居地域
-
地目
宅地 (現状:宅地)
-
都市計画
市街化区域
-
形状
間口 7m × 奥行 16.6m
-
道路
建築基準法第43条第2項2号(但し書き道路)
-
私道
建築基準法第43条第2項2号(但し書き道路)
-
その他の制限
第3種高度地区、建築基準法第22条地域
物件詳細情報
-
所在階/階数
-
-
号室
-
-
販売価格
17,500,000円
-
方位
指定なし
-
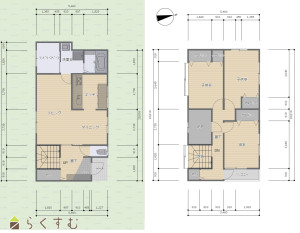
間取り
3LDK (洋室:6、6、6)、LDK18
-
専有面積
-
-
バルコニー面積
-
-
その他面積
-
-
駐車場
-
-
管理費
-
-
修繕積立金
-
-
現況
空家
-
仲介手数料
643,500円
-
利用制限
-
-
学校区
上組小学校(1,102m)・宮内中学校(488m)
-
設備
角地、閑静な住宅街、LDK15帖以上、全室フローリング、駐車2台可能、複層ガラス、デインプルキー、システムキッチン、カウンターキッチン、追いだき機能付き、バス1坪以上、温水洗浄便座、都市ガス、上水道、下水道、内装リフォーム済み、外装リフォーム済み、リノベーション物件、即引き渡し可能
-
取引態様
一般
-
情報登録日
2025/09/29
-
次回更新予定日
2026/06/05
-
取引条件有効期限
2024/08/31
備考
私道公衆用道路部分14㎡は無償でお引渡し致します。
取扱い会社
有限会社 ABCホーム
Copyright (C) 株式会社 コモンライフ・コーポレーション. All Rights Reserved.
不動産検索サイト「らくすむ」及び関連サイトに記載の不動産情報は、会員規約に則り、情報提供会社様の責任のもとに発信されております。
不動産の賃借、購入に関しては賃借者、購入者ご自身が情報を確認され、会社企業様から説明を受けられたうえで判断をお願いいたします。
不動産検索サイト「らくすむ」及び関連サイトに記載の不動産情報、写真、デザイン、コンテンツなどの無断転載・転用・複製など禁止します。