
城内町1丁目 売中古ビル 詳細
お気に入り
追加済み
物件画像を詳しく見る

長岡駅160m徒歩約2分
物件概要
-
物件コード
00014-200335
-
物件名
城内町1丁目 売中古ビル
-
交通
駅:上越新幹線 長岡駅から徒歩5分、バス:厚生会館前から徒歩4分
-
所在地
新潟県長岡市城内町1丁目2-6
物件へのルート表示
-
物件種別
投資物件・その他
-
物件区分
その他
-
構造
鉄筋コン
-
階建
地上3階建
-
建ぺい率/容積率
80%/600%
-
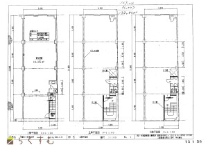
建物面積
435.39㎡
/131.7坪
-
土地面積
167.5㎡
/50.66坪
-
築年月
1977年8月(築48年)
-
入居時期
相談
-
用途地域
商業地域
-
地目
宅地 (現状:宅地)
-
都市計画
市街化区域
-
形状
-
-
道路
長岡市道
-
私道
-
-
その他の制限
防火地域・まちなか居住区域・都市機能誘導区域・埋蔵文化財包蔵地内
物件詳細情報
-
所在階/階数
-
-
号室
-
-
販売価格
58,000,000円
-
表面利回り
(満室想定時)
-
-
満室想定年収
-
(想定月収:
-
)
-
現行利回り
-
-
現行年間年収
-
-
住戸数
-
-
方位
-
-
間取り
-
-
専有面積
-
-
バルコニー面積
-
-
その他面積
-
-
駐車場
-
-
管理費
-
-
修繕積立金
-
-
現況
賃貸中
-
仲介手数料
1,980,000円
-
利用制限
-
-
学校区
阪之上小学校・東中学校
-
設備
事業向け
-
取引態様
一般
-
情報登録日
2023/03/11
-
次回更新予定日
2026/04/17
-
取引条件有効期限
2023/04/30
備考
取扱い会社
株式会社 金井不動産
-
TEL
0120-35-3901
-
所在地
新潟県長岡市要町3-1-26
-
交通
長岡駅大手口①バス乗場より乗車~溝橋下車徒歩約4分
-
営業時間
9:30~18:00/定休日:日曜・祝祭日
-
免許番号
新潟県知事(16)第495号
-
所属団体名
新潟県宅地建物取引業協会 長岡支部
-
取引態様
一般
Copyright (C) 株式会社 コモンライフ・コーポレーション. All Rights Reserved.
不動産検索サイト「らくすむ」及び関連サイトに記載の不動産情報は、会員規約に則り、情報提供会社様の責任のもとに発信されております。
不動産の賃借、購入に関しては賃借者、購入者ご自身が情報を確認され、会社企業様から説明を受けられたうえで判断をお願いいたします。
不動産検索サイト「らくすむ」及び関連サイトに記載の不動産情報、写真、デザイン、コンテンツなどの無断転載・転用・複製など禁止します。