
売家 宮栄1丁目 詳細
お気に入り
追加済み
物件画像を詳しく見る
物件概要
-
物件コード
00014-200022
-
物件名
売家 宮栄1丁目
-
交通
駅:平島バス停徒歩6分・宮内駅徒歩11分、バス:平島から徒歩2分
-
所在地
新潟県長岡市宮栄1丁目15-8
物件へのルート表示
-
物件種別
中古一戸建て
-
構造
木造
-
階建
地上2階建
-
建ぺい率/容積率
60%/200%
-
建物面積
125.87㎡
/38.07坪
-
土地面積
158㎡
/47.79坪
-
築年月
1972年1月(築54年)
-
入居時期
相談
-
用途地域
第1種住居地域
-
地目
田
-
都市計画
-
-
形状
-
-
道路
-
-
私道
幅員4m
-
その他の制限
物件詳細情報
-
所在階/階数
-
-
号室
-
-
販売価格
5,300,000円
-
方位
東
-
間取り
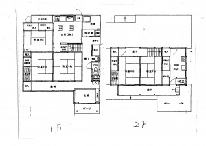
5DK (和室:8畳、6畳、6畳、6畳、6畳)、DK8
-
専有面積
-
-
バルコニー面積
-
-
その他面積
-
-
駐車場
-
-
管理費
-
-
修繕積立金
-
-
現況
空家
-
仲介手数料
なし
-
利用制限
-
-
学校区
宮内小学校・宮内中学校
-
設備
都市ガス/公営水道/電気
-
取引態様
一般
-
情報登録日
2012/11/26
-
次回更新予定日
2026/06/05
-
取引条件有効期限
-
備考
取扱い会社
株式会社 金井不動産
-
TEL
0120-35-3901
-
所在地
新潟県長岡市要町3-1-26
-
交通
長岡駅大手口①バス乗場より乗車~溝橋下車徒歩約4分
-
営業時間
9:30~18:00/定休日:日曜・祝祭日
-
免許番号
新潟県知事(16)第495号
-
所属団体名
新潟県宅地建物取引業協会 長岡支部
-
取引態様
一般
Copyright (C) 株式会社 コモンライフ・コーポレーション. All Rights Reserved.
不動産検索サイト「らくすむ」及び関連サイトに記載の不動産情報は、会員規約に則り、情報提供会社様の責任のもとに発信されております。
不動産の賃借、購入に関しては賃借者、購入者ご自身が情報を確認され、会社企業様から説明を受けられたうえで判断をお願いいたします。
不動産検索サイト「らくすむ」及び関連サイトに記載の不動産情報、写真、デザイン、コンテンツなどの無断転載・転用・複製など禁止します。