
新保1『中島貸家』 6月より可能になります 詳細
1号室
お気に入り
追加済み
物件画像を詳しく見る

新保地区 6DKの一軒家です。
物件概要
-
賃料
6.5万円/月
-
管理費
なし
-
敷/礼
2ヶ月/
なし
-
間取り
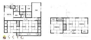
6DK、追い焚き機能/シャワー
-
広さ
153.45㎡
/46.41坪
-
階建
地上2階建
-
築年数
1969年6月(築56年)
-
種別
アパート・マンション・一戸建て
-
住所
長岡市新保1丁目16-23
物件へのルート表示
-
交通
駅:信越線 北長岡駅から徒歩15分、バス:新保1丁目から徒歩3分
インナー式ガレージ あります。
-
物件コード
00011-100160
-
物件名
新保1『中島貸家』 6月より可能になります
-
交通
駅:信越線 北長岡駅から徒歩15分、バス:新保1丁目から徒歩3分
-
所在地
長岡市新保1丁目16-23
物件へのルート表示
-
物件種別
アパート・マンション・一戸建て
-
総戸数
-
-
構造
木造
-
階建
地上2階建
-
所在階/階数
1階/2階
-
号室
1号室
-
専有面積
153.45㎡
/46.41坪
-
方位
指定なし
-
間取り
6DK、追い焚き機能/シャワー
-
賃料
6.5万円/月
-
管理費
-
-
礼金
-
-
敷金
2ヶ月
-
共益費
-
-
ほか初期費用
-
-
その他諸費用
-
-
更新料
-
-
火災(家財)保険
15,000円
加入の事
-
駐車場
-
-
町内費
-
-
バイク料金
-
-
鍵交換費
-
-
清掃料
-
-
更新事務手数料
-
-
保証区分
連帯保証人+緊急連絡先
-
保証会社
区分:指定なし
-
-
連帯保証人
[区分]
要
-
-
仲介手数料
71,500円
-
手数料負担割合
貸主:-%
借主:100%
-
手数料配分割合
元付:50%
客付:50%
-
築年月
1969年6月(築56年)
-
利用制限
ペット:不可、楽器:不可
-
学校区
富曾亀小学校(664m)・東北中学校(753m)
-
設備
駐車場1台無料、追いだき機能付き、暖房便座、洗面所独立、エアコン2基、都市ガス、洗濯機置場 室内、脱衣所、各居室照明、即入居可
-
入居時期
相談
-
取引態様
代理
-
情報登録日
2026/04/07
-
次回更新予定日
2026/05/11
備考
令和8年6月より入居可能になります
取扱い会社
㈱スタッフサイトウ不動産部
Copyright (C) 株式会社 コモンライフ・コーポレーション. All Rights Reserved.
不動産検索サイト「らくすむ」及び関連サイトに記載の不動産情報は、会員規約に則り、情報提供会社様の責任のもとに発信されております。
不動産の賃借、購入に関しては賃借者、購入者ご自身が情報を確認され、会社企業様から説明を受けられたうえで判断をお願いいたします。
不動産検索サイト「らくすむ」及び関連サイトに記載の不動産情報、写真、デザイン、コンテンツなどの無断転載・転用・複製など禁止します。