
フローレンスⅡ 詳細
201号室
お気に入り
追加済み
物件画像を詳しく見る

リバーサイドで日当たり・環境良好! 駐車場2台分込み!
物件概要
-
賃料
5.5万円/月
-
管理費
なし
-
敷/礼
1ヶ月/
なし
-
間取り
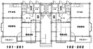
2DK (和室:6畳) (洋室:8)、DK6、追い焚き機能 ・ 各住戸専用物置有り
-
広さ
54.8㎡
/16.57坪
-
階建
地上2階建
-
築年数
2002年3月(築24年)
-
種別
アパート・マンション・一戸建て
-
住所
新潟県長岡市宝2丁目3-10
物件へのルート表示
-
交通
バス:宝3丁目から徒歩3分
-
物件コード
00008-100023
-
物件名
フローレンスⅡ
-
交通
バス:宝3丁目から徒歩3分
-
所在地
新潟県長岡市宝2丁目3-10
物件へのルート表示
-
物件種別
アパート・マンション・一戸建て
-
総戸数
4戸
-
構造
木造
-
階建
地上2階建
-
所在階/階数
2階/2階
-
号室
201号室
-
専有面積
54.8㎡
/16.57坪
-
方位
指定なし
-
間取り
2DK (和室:6畳) (洋室:8)、DK6、追い焚き機能 ・ 各住戸専用物置有り
-
賃料
5.5万円/月
-
管理費
-
-
礼金
-
-
敷金
1ヶ月
-
共益費
-
-
ほか初期費用
-
-
その他諸費用
-
-
更新料
-
-
火災(家財)保険
23,260円
2ヶ年
-
駐車場
2台分込み
-
町内費
400円
-
バイク料金
-
-
鍵交換費
-
-
清掃料
-
-
契約時保証料
33,240円
賃貸保証料(契約時)
-
更新事務手数料
-
-
保証区分
保証会社+緊急連絡先
-
保証会社
区分:加入要
保証会社名:ジェイリース
賃貸保証料(契約時)33,240円
賃貸保証料(毎月)650円
-
連帯保証人
[区分]
不要
-
-
仲介手数料
60,500円
-
手数料負担割合
貸主:-%
借主:100%
-
手数料配分割合
元付:50%
客付:50%
-
築年月
2002年3月(築24年)
-
利用制限
ペット:不可、楽器:不可、事務所利用:不可
-
学校区
黒条小学校(1,755m)・堤岡中学校(1,765m)
-
設備
リバーサイド、閑静な住宅街、タイヤ置き場、駐車2台可、南向き、角住居、出窓、バストイレ別、追いだき機能付き、エアコン、都市ガス、バルコニー、玄関収納、トランクルーム、保証会社利用可能、新婚・カップル向け、■エアコン ■駐車場2台付き ■融雪装置 ■トイレバス独立 ■追焚機能 ■全居室角住居
-
入居時期
即入居可
-
取引態様
仲介
-
情報登録日
2026/02/21
-
次回更新予定日
2026/04/21
備考
取扱い会社
株式会社 島岡不動産企画
Copyright (C) 株式会社 コモンライフ・コーポレーション. All Rights Reserved.
不動産検索サイト「らくすむ」及び関連サイトに記載の不動産情報は、会員規約に則り、情報提供会社様の責任のもとに発信されております。
不動産の賃借、購入に関しては賃借者、購入者ご自身が情報を確認され、会社企業様から説明を受けられたうえで判断をお願いいたします。
不動産検索サイト「らくすむ」及び関連サイトに記載の不動産情報、写真、デザイン、コンテンツなどの無断転載・転用・複製など禁止します。