前面道路は幅8mとゆとりがあり、消雪パイプ付きで冬も安心。
物件画像を詳しく見る

大幅リフォーム実施!◆5LDK◆商業施設・学校徒歩圏内◆ビルトインガレージ2台分
物件概要
<令和8年4月リフォーム完了>関原小学校・関原中学校エリア ●西向きの95坪敷地 ●広い前面道路には消雪パイプが設置されています ●敷地内に消雪井戸設置 ●ビルトインガレージ2台分 ●1階2LDK、2階3部屋の5LDKで、全体的に余裕のある間取! ●平成3年に新築された住宅ですが、今回当社にて大幅リフォーム実施しています。
-
物件コード
00007-200782
-
物件名
長岡市関原南1丁目 中古住宅
-
交通
駅:信越線 来迎寺駅から徒歩95分、バス:関原1丁目から徒歩7分
-
所在地
新潟県長岡市関原南1丁目4411番
物件へのルート表示
-
物件種別
中古一戸建て
-
構造
木造
-
階建
地上2階建
-
建ぺい率/容積率
50%/80%
-
建物面積
168.8㎡
/51.06坪
-
土地面積
317㎡
/95.89坪
-
築年月
1991年3月(築35年)
-
入居時期
随時入居(引き渡し)可
-
用途地域
第1種低層住居専用地域
-
地目
宅地
-
都市計画
市街化区域
-
形状
-
-
道路
西側:市道8.0m
-
私道
-
-
その他の制限
-
物件詳細情報
-
所在階/階数
-
-
号室
-
-
販売価格
17,800,000円
-
方位
南西
-
間取り
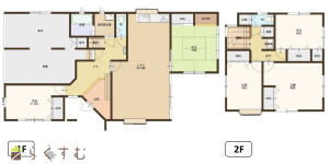
5LDK (和室:8畳) (洋室:9、6.5、6、6)、LDK19.8
-
専有面積
-
-
バルコニー面積
-
-
その他面積
-
-
駐車場
-
-
管理費
-
-
修繕積立金
-
-
現況
空家
-
仲介手数料
なし
-
利用制限
-
-
学校区
関原小学校(610m)・関原中学校(292m)
-
設備
高台に立地、日当り良好、閑静な住宅街、スーパー近く、LDK15帖以上、駐車2台可能、南向き、TVインターホン、複層ガラス、デインプルキー、システムキッチン、IHクッキングヒーター、3口コンロ、追いだき機能付き、バス1坪以上、温水洗浄便座、トイレ2か所以上、シャワー付き洗面台、エアコンあり、省エネ給湯機、都市ガス、上水道、下水道、全居室収納あり、床下収納、シューズBOX、内装リフォーム済み、外装リフォーム済み、即引き渡し可能
-
取引態様
売主
-
情報登録日
2026/04/18
-
次回更新予定日
2026/05/05
-
取引条件有効期限
2026/06/01
備考
・建物面積の内、車庫面積約30.33㎡
・第一種高度地区
・外壁後退:1m
・高さ制限:10m
・22条指定区域
※物件掲載内容と現況に相違がある場合は現況を優先と致します。
詳細はお気軽にお問い合わせください。
担当:藤崎
携帯:090-2763-5443
取扱い会社
有限会社 一代工務店