1
物件掲載企業数:
296
社
|賃貸物件:
3,528
件|売買物件:
3,305
件|今週の登録物件:
294
件
閲覧中のブラウザ(インターネットエクスプローラー)は非推奨ブラウザです。
物件が正しく表示されなかったり、正しく検索されない場合があります。最新のブラウザ(Google Chrome・Edgeなど)にてご利用お願いいたします。
Google Chrome
Microsoft Edge
アパート・マンション・一戸建て
駐車場
貸土地
店舗
事務所
倉庫・工場
新築分譲マンション
中古マンション
新築一戸建て
中古一戸建て
売土地・分譲地
その他(投資物件など)
マンション
一戸建て
土地
ホーム
>
会社情報
>
物件種別選択
> 物件一覧
全エリア
の
中古一戸建て
物件情報
709件
該当しました。
<前のページ
23
24
25
26
27
28
29
30
31
32
33
次のページ>
表示切替:
一覧表示
/
地図表示
並び替え:
指定なし
新着順
価格が安い順
価格が高い順
画像
物件名/所在地/取扱店
詳細
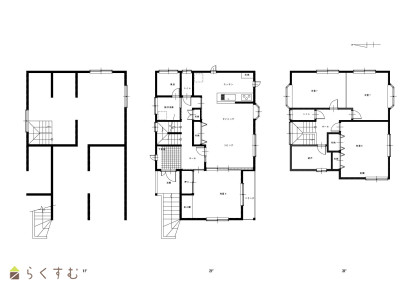
☆2026年4月リフォーム完了予定! ☆新潟西バイパス(小新IC)まで車で7分 ☆北東角地 ☆水まわり機器全て新品交換 ☆浴室乾燥機付き ☆WIC完備
当社グループ物件!【リセットハウス】新潟市西区鳥原
新潟県新潟市西区鳥原2151-16
株式会社ハーツリアルエステート 新潟支店
価格
:
19,980,000
円
土地面積
:177.35㎡ /53.64坪
建物面積
:110.33㎡ /33.37坪
間取り
:4LDK
築年月
:1994年8月
【リセットハウス 令和8年2月リフォーム完了予定!】小学校・スーパー徒歩圏内♪オール電化4LDK+駐車並列2台可
長岡市蔵王一丁目 リセットハウス
新潟県長岡市蔵王一丁目7番11号
株式会社リアルト・ハーツ 長岡支店
価格
:
19,980,000
円
土地面積
:143.54㎡ /43.42坪
建物面積
:94.44㎡ /28.56坪
間取り
:4LDK
築年月
:2006年4月
【価格改定しました!】 ■商業施設近くに建つ、インナーガレージ+カーポート付き住宅! ■インナーガレージ+カーポートで駐車4台以上! ■18帖の広々LDKに6畳の小上りがある開放的な空間♪ ■スーパーなど商業施設まで徒歩圏内の好立地!
長岡市東栄2丁目
新潟県長岡市東栄2丁目6-9
ハーバーエステート株式会社
価格
:
19,980,000
円
土地面積
:153.31㎡ /46.37坪
建物面積
:178.85㎡ /54.1坪
間取り
:5LDK
築年月
:2010年2月
【リセットハウス 令和8年2月リフォーム完了予定!】山麓線近く生活利便性良好♪4LDK+WIC!駐車3台可
上越市加賀町 リセットハウス
新潟県上越市加賀町1番16号
株式会社リアルト・ハーツ 長岡支店
価格
:
19,980,000
円
土地面積
:165.33㎡ /50.01坪
建物面積
:103.5㎡ /31.3坪
間取り
:4LDK
築年月
:1988年8月
閑静な住宅地でゆたっり敷地の中古住宅です
長岡市曙1丁目 中古住宅
新潟県長岡市曙1丁目5番地23
株式会社 高野不動産販売
価格
:
19,990,000
円
土地面積
:455㎡ /137.63坪
建物面積
:177.2㎡ /53.6坪
間取り
:5LDK
築年月
:1992年2月
【見学会開催】【リフォーム中】 車庫付き駐車場2台駐車可能。前面道路の幅員6m。運転が苦手な方でも楽々駐車。
小千谷市桜町
新潟県小千谷市桜町3320-47
株式会社 カチタス長岡店
価格
:
19,990,000
円
土地面積
:173.12㎡ /52.36坪
建物面積
:156.51㎡ /47.34坪
間取り
:4DK
築年月
:2000年3月
高田城址公園まで徒歩圏内♪充実した周辺環境♪教育施設も整った立地♪4台以上駐車可能♪
上越市南城町2丁目(南高田駅)2階建7DK
新潟県上越市南城町2丁目2-13
ハウスドゥ上越市役所前 カネヨ物産㈱
価格
:
20,000,000
円
土地面積
:603.85㎡ /182.66坪
建物面積
:205.9㎡ /62.28坪
間取り
:7DK
築年月
:1980年10月
四季を感じられるお庭があり、2世帯住宅としても活用できます!!
見附市今町3丁目 中古戸建
新潟県見附市今町3丁目5-36
新潟化成株式会社
価格
:
20,000,000
円
土地面積
:1,113.91㎡ /336.95坪
建物面積
:266.06㎡ /80.48坪
間取り
:9LDK
築年月
:1980年11月
スーパー、ホームセンター、お医者さんなど近隣に生活便利施設有り!
◆中古住宅◆三条市東本成寺
新潟県三条市東本成寺8-56
株式会社 ユタカ不動産
価格
:
20,000,000
円
土地面積
:1,001㎡ /302.8坪
建物面積
:259.71㎡ /78.56坪
間取り
:8DK
築年月
:1985年7月
【長岡市城岡】新価格2090万円! ■北長岡駅至近!カーポート・エアコン付きの4LDK住戸 ■通勤通学に便利♪北長岡駅まで徒歩約2分 ■全居室収納完備でお部屋がスッキリ片付きます ■チャレンジャーまで車で2分
長岡市城岡 戸建
新潟県長岡市城岡1丁目6-32
新潟土地建物販売センター 株式会社
価格
:
20,900,000
円
土地面積
:182.31㎡ /55.14坪
建物面積
:105.15㎡ /31.8坪
間取り
:4LDK
築年月
:2008年10月
【価格改定しました】2,240万円(R6.7.10)→2,090万円(R7.7.16)スーパー、最寄り駅まで徒歩圏内!4LDKの状態の良い住宅です!カーポート2台、他1台の駐車スペースがあり雪の日も安心です♪
城岡1丁目 売住宅
新潟県長岡市城岡1丁目6-32
髙頭不動産 株式会社
価格
:
20,900,000
円
土地面積
:182.31㎡ /55.14坪
建物面積
:105.15㎡ /31.8坪
間取り
:4LDK
築年月
:2008年10月
◆引っ越しサポート6万円分チケットプレゼントキャンペーン実施中! ■駅近4LDKの中古住宅。2台分のカーポート、エアコン4台付き。外物置と芝庭+ウッドデッキの充実したエクステリア。 ■北長岡駅まで徒歩約2分(160m) ■チャレンジャー北長岡店まで徒歩約6分(400m) ■新町 小学校まで徒歩約12分(850m)
長岡市城岡1丁目
新潟県長岡市城岡1丁目6-32
ハーバーエステート株式会社
価格
:
20,900,000
円
土地面積
:182.31㎡ /55.14坪
建物面積
:105.15㎡ /31.8坪
間取り
:4LDK
築年月
:2008年10月
【価格改定】 ☆2025年8月リフォーム完了!オープンハウス開催中(予約制) ☆全室2面採光・6帖以上 ☆小・中学校近く♪ ☆インナーガレージ2台 ☆便利な物置・納戸付き ☆新潟駅まで徒歩18分 ☆購入サポート有り ☆瑕疵保険適合住宅
当社グループ物件!【リセットハウス】新潟市中央区沼垂西2
新潟県新潟市中央区沼垂西2-1-8
株式会社ハーツリアルエステート 新潟支店
価格
:
20,980,000
円
土地面積
:66.11㎡ /19.99坪
建物面積
:130.26㎡ /39.4坪
間取り
:3LDK
築年月
:1995年10月
《リノビレッジ》【リノベーション中】各居室収納+納戸有で収納力◎2台分のカーポート付!スーパー・コンビニ至近、国道8号線も近く生活利便性良好!【5年保証(かし保険適合予定)】【住宅ローン控除対象】【安心R住宅】【にいがた安心こむすび住宅】
《リノビレッジ》柏崎市藤元町② リノベーション住宅
新潟県柏崎市藤元町9-20
長岡不動産販売株式会社
価格
:
20,980,000
円
土地面積
:187.9㎡ /56.83坪
建物面積
:115.1㎡ /34.81坪
間取り
:4LDK
築年月
:1993年7月
■外内装リノベーション住宅 ■駐車2台可(カーポート・ガレージ付き) ■エアコン1台付 ■ランドリールーム完備で雨の日のお洗濯も安心 ■上組小・宮内中学校区
長岡市豊詰町 リノベーション住宅
新潟県長岡市豊詰町208-22
新潟土地建物販売センター 株式会社
価格
:
20,980,000
円
土地面積
:166.49㎡ /50.36坪
建物面積
:122.51㎡ /37.05坪
間取り
:4LDK
築年月
:1988年7月
《リノビレッジ》1台分のインナーガレージ・1台分のカーポート付!動線の良い水廻りで家事も時短!ランドリースペースもあり、雨の日のお洗濯も安心!小学校至近!【5年保証(かし保険適合予定)】【住宅ローン控除対象】【安心R住宅】
《リノビレッジ》 長岡市豊詰町 リノベーション住宅
新潟県長岡市豊詰町208-22
長岡不動産販売株式会社
価格
:
20,980,000
円
土地面積
:166.49㎡ /50.36坪
建物面積
:122.51㎡ /37.05坪
間取り
:4LDK
築年月
:1988年7月
リフォーム済み中古戸建。3LDK+納戸、駐車2台可で全居室6帖以上。栗ノ木バイパス(車で約1 分)や小中学校も近く(徒歩10分圏内)、通学・買い物に便利な好立地です。
中央区沼垂西二丁目 中古戸建
新潟市中央区沼垂西二丁目1番 8 号
有限会社 ブライトサクセス
価格
:
20,980,000
円
土地面積
:66.11㎡ /19.99坪
建物面積
:130.26㎡ /39.4坪
間取り
:3LDK
築年月
:1995年10月
ショッピングセンターまで徒歩圏内!バイパスへのアクセス良好!立派な庭のある、和式住宅!
豊1丁目 中古住宅
新潟県長岡市豊1丁目7-12
髙頭不動産 株式会社
価格
:
21,000,000
円
土地面積
:338㎡ /102.24坪
建物面積
:203.33㎡ /61.5坪
間取り
:6LDK
築年月
:1983年7月
和と洋が調和する大空間邸宅 広い庭で日本の趣を楽しめる住まい
長岡市豊Bright中古戸建
新潟県長岡市豊1丁目7-12
有限会社 ブライトサクセス
価格
:
21,000,000
円
土地面積
:338㎡ /102.24坪
建物面積
:217.95㎡ /65.92坪
間取り
:6LDK
築年月
:1983年7月
価格改定 2400万→2100万円 パルス徒歩1分、原信徒歩3分など商業施設が至近距離の好立地。6LDKの和洋ミックスの風情ある広々とした庭園付き住宅です!
豊1丁目 売中古住宅
新潟県長岡市豊1丁目7番12号
有限会社 北日本不動産
価格
:
21,000,000
円
土地面積
:338㎡ /102.24坪
建物面積
:203.33㎡ /61.5坪
間取り
:6LDK
築年月
:1983年7月
表示切替:
一覧表示
/
地図表示
並び替え:
指定なし
新着順
価格が安い順
価格が高い順
価格は物件の代金総額を表示しており、消費税が課税される場合は税込み価格です。
建築条件付き土地価格には、建物価格は含まれません。
物件情報の詳細については取り扱い店までお問い合わせください。
完成予想図はいずれも外構・植栽・外観等実際のものと異なることが多少あります。
CG合成の画像の場合実際と異なることが多少あります。
完成後1年以上経過したものが未入居として記載される場合があります。ご了承ください。
販売予定物件は販売開始するまで契約または予約の申し込みはできません。
ご購入の場合物件詳細や契約内容についてご自身で十分ご確認いただきますようよろしく御願いします。
建築条件付きとは…その土地に建築する建物の建築請負契約が、一定期間内に成立することを条件として売買される土地のことをいいます。請負契約成立に向けて設計プランを協議するため、土地購入者が希望する建物にするために一定の期間(概ね3ヶ月)交渉期間としその期間内に希望するプランが実現できたかどうかによって土地の購入の判断をします。納得のいくプランができず請負契約が未成立になった場合、土地契約にかかった代金(手付金など)は、すべて返却されます。
709件
該当しました。
<前のページ
23
24
25
26
27
28
29
30
31
32
33
次のページ>
0件
がマッチ
基本条件
物件種別
中古一戸建て
価格
下限なし
100万円
250万円
500万円
1000万円
1500万円
2000万円
2500万円
3000万円
3500万円
4000万円
4500万円
5000万円
5500万円
6000万円
6500万円
7000万円
7500万円
8000万円
8500万円
9000万円
9500万円
1億円
~
上限なし
100万円
250万円
500万円
1000万円
1500万円
2000万円
2500万円
3000万円
3500万円
4000万円
4500万円
5000万円
5500万円
6000万円
6500万円
7000万円
7500万円
8000万円
8500万円
9000万円
9500万円
1億円
間取り
ワンルーム
1K
1DK
1LDK
2K
2DK
2LDK
3K
3DK
3LDK
4K
4DK
4LDK以上
専有面積
下限なし
20㎡
30㎡
40㎡
50㎡
60㎡
70㎡
80㎡
90㎡
100㎡
~
上限なし
20㎡
30㎡
40㎡
50㎡
60㎡
70㎡
80㎡
90㎡
100㎡
土地面積
下限なし
60㎡ (約18坪)
70㎡ (約21坪)
80㎡ (約24坪)
90㎡ (約27坪)
100㎡ (約30坪)
110㎡ (約33坪)
120㎡ (約36坪)
130㎡ (約39坪)
140㎡ (約42坪)
150㎡ (約45坪)
160㎡ (約48坪)
170㎡ (約51坪)
180㎡ (約54坪)
190㎡ (約57坪)
200㎡ (約60坪)
250㎡ (約75坪)
300㎡ (約90坪)
~
上限なし
60㎡ (約18坪)
70㎡ (約21坪)
80㎡ (約24坪)
90㎡ (約27坪)
100㎡ (約30坪)
110㎡ (約33坪)
120㎡ (約36坪)
130㎡ (約39坪)
140㎡ (約42坪)
150㎡ (約45坪)
160㎡ (約48坪)
170㎡ (約51坪)
180㎡ (約54坪)
190㎡ (約57坪)
200㎡ (約60坪)
250㎡ (約75坪)
300㎡ (約90坪)
建物面積
下限なし
60㎡ (約18坪)
70㎡ (約21坪)
80㎡ (約24坪)
90㎡ (約27坪)
100㎡ (約30坪)
110㎡ (約33坪)
120㎡ (約36坪)
130㎡ (約39坪)
140㎡ (約42坪)
150㎡ (約45坪)
160㎡ (約48坪)
170㎡ (約51坪)
180㎡ (約54坪)
190㎡ (約57坪)
200㎡ (約60坪)
250㎡ (約75坪)
300㎡ (約90坪)
~
上限なし
60㎡ (約18坪)
70㎡ (約21坪)
80㎡ (約24坪)
90㎡ (約27坪)
100㎡ (約30坪)
110㎡ (約33坪)
120㎡ (約36坪)
130㎡ (約39坪)
140㎡ (約42坪)
150㎡ (約45坪)
160㎡ (約48坪)
170㎡ (約51坪)
180㎡ (約54坪)
190㎡ (約57坪)
200㎡ (約60坪)
250㎡ (約75坪)
300㎡ (約90坪)
坪単価
下限なし
5万円
10万円
15万円
20万円
25万円
30万円
35万円
40万円
45万円
50万円
~
上限なし
5万円
10万円
15万円
20万円
25万円
30万円
35万円
40万円
45万円
50万円
築年数
指定なし
新築
3年以内
5年以内
10年以内
15年以内
20年以内
方位
北
北東
東
南東
南
南西
西
北西
おすすめ条件
ペット可・相談
楽器可・相談
情報公開日
指定なし
本日
3日以内
1週間以内
1ヶ月以内
0件
がマッチ
人気のあるこだわり条件
角地(123)
高台に立地(37)
日当り良好(355)
閑静な住宅街(371)
スーパー近く(166)
長期優良住宅(4)
設計住宅性能評価付(4)
耐震構造(8)
フラット35S適合(2)
瑕疵担保保険対象(11)
耐震基準適合証明書あり(4)
新築時図面あり(62)
修繕記録あり(9)
BELS/省エネ基準適合認定建物(2)
インスペクション報告書あり(6)
建物確認・完了検査済証あり(26)
適合状況調査報告書あり(1)
瑕疵担保保険付き(16)
LDK15帖以上(170)
全室フローリング(66)
築10年以内(47)
築15年以内(24)
駐車2台可能(239)
駐車3台以上可能(281)
駐車場融雪設備あり(31)
南向き(161)
TVインターホン(145)
複層ガラス(93)
デインプルキー(37)
システムキッチン(261)
カウンターキッチン(80)
IHクッキングヒーター(121)
浄水器(42)
食器洗浄乾燥機(66)
3口コンロ(161)
2口コンロ(28)
ガスコンロ設置可能(37)
ガスコンロ設置済み(48)
追いだき機能付き(315)
浴室乾燥機(60)
バス1坪以上(273)
温水洗浄便座(339)
トイレ2か所以上(251)
シャワー付き洗面台(215)
エアコンあり(254)
床暖房(17)
24時間換気システム(40)
堀ごたつ(4)
全室エアコン(11)
オール電化(52)
太陽光発電システム(8)
省エネ給湯機(57)
ウッドデッキ・テラス(28)
ルーフバルコニー(15)
都市ガス(463)
LPG(93)
上水道(600)
下水道(519)
浄化槽(69)
バリアフリー(28)
その他水道(4)
ウォークインクローゼット(95)
全居室収納あり(151)
床下収納(46)
シューズBOX(156)
シューズインクローゼット(22)
BS端子(18)
CS(5)
CATV(5)
LAN端子(3)
内装リフォーム済み(87)
外装リフォーム済み(66)
リノベーション物件(45)
2世帯向き(39)
即引き渡し可能(149)
別荘(74)
田舎暮らし(170)
事業向け(54)
条件に合った物件数は、
0 件
です。
立地・環境
角地(123)
高台に立地(37)
日当り良好(355)
閑静な住宅街(371)
スーパー近く(166)
構造・工法・仕様
長期優良住宅(4)
設計住宅性能評価付(4)
耐震構造(8)
フラット35S適合(2)
瑕疵担保保険対象(11)
耐震基準適合証明書あり(4)
新築時図面あり(62)
修繕記録あり(9)
BELS/省エネ基準適合認定建物(2)
インスペクション報告書あり(6)
建物確認・完了検査済証あり(26)
適合状況調査報告書あり(1)
瑕疵担保保険付き(16)
面積・間取り
LDK15帖以上(170)
全室フローリング(66)
築年
築10年以内(47)
築15年以内(24)
駐車・駐輪
駐車2台可能(239)
駐車3台以上可能(281)
駐車場融雪設備あり(31)
採光・向き
南向き(161)
管理・防犯
TVインターホン(145)
複層ガラス(93)
デインプルキー(37)
キッチン
システムキッチン(261)
カウンターキッチン(80)
IHクッキングヒーター(121)
浄水器(42)
食器洗浄乾燥機(66)
3口コンロ(161)
2口コンロ(28)
ガスコンロ設置可能(37)
ガスコンロ設置済み(48)
浴室
追いだき機能付き(315)
浴室乾燥機(60)
バス1坪以上(273)
トイレ
温水洗浄便座(339)
トイレ2か所以上(251)
洗面所
シャワー付き洗面台(215)
冷暖房・空調
エアコンあり(254)
床暖房(17)
24時間換気システム(40)
堀ごたつ(4)
全室エアコン(11)
光熱設備
オール電化(52)
太陽光発電システム(8)
省エネ給湯機(57)
バルコニー・テラス
ウッドデッキ・テラス(28)
ルーフバルコニー(15)
室内仕様・設備
都市ガス(463)
LPG(93)
上水道(600)
下水道(519)
浄化槽(69)
バリアフリー(28)
その他水道(4)
収納
ウォークインクローゼット(95)
全居室収納あり(151)
床下収納(46)
シューズBOX(156)
シューズインクローゼット(22)
電気設備
BS端子(18)
CS(5)
CATV(5)
LAN端子(3)
リフォーム
内装リフォーム済み(87)
外装リフォーム済み(66)
リノベーション物件(45)
費用・入居・引渡・条件
2世帯向き(39)
即引き渡し可能(149)
その他
別荘(74)
田舎暮らし(170)
事業向け(54)
条件に合った物件数は、
0 件
です。
アパート・マンション・一戸建て
/
駐車場
/
貸土地
/
店舗
/
事務所
/
倉庫・工場
新築分譲マンション
/
中古マンション
/
新築一戸建て
/
中古一戸建て
/
売土地
/
投資物件・その他
マンション
/
一戸建て
/
土地
建てる・リフォーム
物件掲載企業一覧
掲載希望の企業様へ
新潟の不動産情報サイト
サービス利用規約
運営会社
サイトマップ
プライバシーポリシー
お問い合わせ
リンク
Copyright (C)
株式会社 コモンライフ・コーポレーション
. All Rights Reserved.
新潟・長岡・柏崎の賃貸・マンション・アパート・住宅の不動産物件情報サイト
不動産検索サイト「らくすむ」及び関連サイトに記載の不動産情報は、会員規約に則り、情報提供会社様の責任のもとに発信されております。
不動産の賃借、購入に関しては賃借者、購入者ご自身が情報を確認され、会社企業様から説明を受けられたうえで判断をお願いいたします。
不動産検索サイト「らくすむ」及び関連サイトに記載の不動産情報、写真、デザイン、コンテンツなどの
無断転載・転用・複製
など禁止します。