1
物件掲載企業数:
297
社
|賃貸物件:
3,612
件|売買物件:
3,333
件|今週の登録物件:
145
件
閲覧中のブラウザ(インターネットエクスプローラー)は非推奨ブラウザです。
物件が正しく表示されなかったり、正しく検索されない場合があります。最新のブラウザ(Google Chrome・Edgeなど)にてご利用お願いいたします。
Google Chrome
Microsoft Edge
アパート・マンション・一戸建て
駐車場
貸土地
店舗
事務所
倉庫・工場
新築分譲マンション
中古マンション
新築一戸建て
中古一戸建て
売土地・分譲地
その他(投資物件など)
マンション
一戸建て
土地
ホーム
>
検索方法選択
>
エリア選択
> 物件一覧
全エリア
の
投資物件・その他
一覧
265件
該当しました。
<前のページ
6
7
8
9
10
11
12
13
14
次のページ>
表示切替:
一覧表示
/
地図表示
並び替え:
指定なし
新着順
価格が安い順
価格が高い順
画像
物件名/所在地/取扱店
詳細
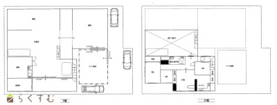
北園橋通り!第四北越銀行長岡北支店前!
北園町倉庫事務所
新潟県長岡市北園町218番地.226番地
株式会社 新日本地所
価格
:
32,300,000
円
表面利回り
:-
土地面積
:925.61㎡ /279.99坪
建ぺい率
:60%
容積率
:200%
エレベーター、配膳用昇降機あり
四谷2丁目 割烹・料亭向き
新潟県柏崎市四谷2丁目2-11
株式会社 ai-will
価格
:
33,000,000
円
表面利回り
:-
土地面積
:654.54㎡ /197.99坪
建ぺい率
:60%
容積率
:200%
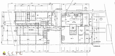
1Kタイプの全9室を売却いたします!1室からの売却も相談可能です!
日興パレス長岡呉服町204号室他(全9室)
新潟県長岡市呉服町1丁目3-2
髙頭不動産 株式会社
価格
:
33,000,000
円
表面利回り
:
12.5
%
(満室想定時)
土地面積
:796.84㎡ /241.04坪
建ぺい率
:80%
容積率
:400%
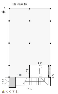
ブックスアイエス跡
長岡市浦 売り店舗
新潟県長岡市浦653-1
佐藤リアルティ 株式会社
価格
:
33,400,000
円
表面利回り
:-
土地面積
:800㎡ /242坪
建ぺい率
:60%
容積率
:200%
融雪設備付き駐車場約8台分・スターバックス宮内店まで420m徒歩約6分
曲新町 売物件 土地135坪 延床45坪
新潟県長岡市曲新町589-3
株式会社 金井不動産
価格
:
35,000,000
円
表面利回り
:-
土地面積
:449.41㎡ /135.94坪
建ぺい率
:50%
容積率
:100%
令和2年リフォーム済み!美しい内装はそのままに。憧れの店舗をすぐにオープンできる居抜き物件!あなたの思い描くお店を実現してください。
見附市芝野町 売店舗 令和2年リフォーム済み!美しい内装
新潟県見附市芝野町1206
ふどうさんの相談所 (ライフデザイン合同会社 イオン長岡店)
価格
:
35,000,000
円
表面利回り
:-
土地面積
:684㎡ /206.91坪
建ぺい率
:60%
容積率
:200%
居室全室フルリフォーム
ハイムシンコー
新潟県長岡市曲新町2-6-9
エイブルネットワーク長岡店(株式会社Will企画)
価格
:
35,000,000
円
表面利回り
:
11.07
%
(満室想定時)
土地面積
:483.71㎡ /146.32坪
建ぺい率
:50%
容積率
:100%
満室アパート(2DK×8世帯) 【仲介手数料不要】
長岡市中興野売アパート
新潟県長岡市中興野265-3
株式会社 長岡総合開発
価格
:
35,500,000
円
表面利回り
:
13.6
%
(満室想定時)
土地面積
:674㎡ /203.88坪
建ぺい率
:60%
容積率
:200%
要町3丁目 売事務所 土地134坪
新潟県長岡市要町三丁目5番20
株式会社 金井不動産
価格
:
35,750,000
円
表面利回り
:-
土地面積
:446.06㎡ /134.93坪
建ぺい率
:60%
容積率
:200%
【満室稼働中】 【オーナーチェンジ物件】■平成29年築■2LDK+2LDK+3LDK■柏崎駅徒歩8分■スーパー・コンビニ徒歩圏内■柏崎市役所徒歩7分
柏崎市鏡町 収益物件
新潟県柏崎市鏡町8番20号カーサ鏡町
株式会社 ナンバ管理
価格
:
35,800,000
円
表面利回り
:
8.37
%
(満室想定時)
土地面積
:237.27㎡ /71.77坪
建ぺい率
:80%
容積率
:400%
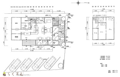
長岡造形大学近く!!原信まで徒歩1分!!前面道路融雪有!!年間家賃収入249.6万円
新築アパート 現在満室!月々20.8万円
新潟県長岡市宮関
ハウスドゥ 長岡中央店
価格
:
37,000,000
円
表面利回り
:-
土地面積
:216.06㎡ /65.35坪
建ぺい率
:60%
容積率
:200%
えちごトキめき鉄道 妙高はねうまライン「高田駅」徒歩約16分
エムズプレイス
新潟県上越市仲町2丁目8-8
株式会社リビングギャラリー
価格
:
37,200,000
円
表面利回り
:
9.81
%
(満室想定時)
土地面積
:888㎡ /268.62坪
建ぺい率
:60%
容積率
:200%
事業用地・商業用地としてオススメです
栄町売土地
新潟県柏崎市栄町2118-70
株式会社 ホーメックス
価格
:
37,600,000
円
表面利回り
:-
土地面積
:1,554.13㎡ /470.12坪
建ぺい率
:60%
容積率
:200%
ドルミーレインボー
新潟県長岡市殿町3丁目5番地15
エイブルネットワーク長岡店(株式会社Will企画)
価格
:
38,000,000
円
表面利回り
:
13.59
%
(満室想定時)
土地面積
:139.63㎡ /42.23坪
建ぺい率
:80%
容積率
:400%
【一棟売投資用マンション】ドルミーレインボー
新潟県長岡市殿町3丁目5-15
髙頭不動産 株式会社
価格
:
38,000,000
円
表面利回り
:
12.72
%
(満室想定時)
土地面積
:139.63㎡ /42.23坪
建ぺい率
:80%
容積率
:400%
小千谷市内 人気レストラン+5LDK住宅 職住接近
小千谷市内 人気レストラン+5LDK住宅
新潟県小千谷市東栄1丁目1098番2
ふどうさんの相談所 (ライフデザイン合同会社 イオン長岡店)
価格
:
39,800,000
円
表面利回り
:-
土地面積
:481.99㎡ /145.8坪
建ぺい率
:60%
容積率
:200%
近隣で珍しい鉄骨造の共同住宅
沢田1丁目 1棟売マンション2DK×8戸
新潟県長岡市沢田1丁目4-5 他2筆
株式会社 金井不動産
価格
:
40,000,000
円
表面利回り
:
10.44
%
(満室想定時)
土地面積
:527㎡ /159.41坪
建ぺい率
:60%
容積率
:200%
平成12年築アパート 1DK×10戸、敷地内駐車場10台
ウインズ春日新田
新潟県上越市春日新田2丁目4-51
株式会社リビングギャラリー
価格
:
41,000,000
円
表面利回り
:
11.96
%
(満室想定時)
土地面積
:581.69㎡ /175.96坪
建ぺい率
:60%
容積率
:200%
約350坪の巨大な倉庫
潟町 大型倉庫
新潟県上越市大潟区潟町530-1
ピタットハウス上越店 日建不動産
価格
:
41,600,000
円
表面利回り
:-
土地面積
:4,131.26㎡ /1,249.7坪
建ぺい率
:-
容積率
:-
南中学区 長生橋近くです
草生津3丁目 『倉庫・事務所』
長岡市草生津3丁目4-13
㈱スタッフサイトウ不動産部
価格
:
42,000,000
円
表面利回り
:-
土地面積
:615.16㎡ /186.08坪
建ぺい率
:60%
容積率
:200%
表示切替:
一覧表示
/
地図表示
並び替え:
指定なし
新着順
価格が安い順
価格が高い順
価格は物件の代金総額を表示しており、消費税が課税される場合は税込み価格です。
建築条件付き土地価格には、建物価格は含まれません。
物件情報の詳細については取り扱い店までお問い合わせください。
完成予想図はいずれも外構・植栽・外観等実際のものと異なることが多少あります。
CG合成の画像の場合実際と異なることが多少あります。
完成後1年以上経過したものが未入居として記載される場合があります。ご了承ください。
販売予定物件は販売開始するまで契約または予約の申し込みはできません。
ご購入の場合物件詳細や契約内容についてご自身で十分ご確認いただきますようよろしく御願いします。
建築条件付きとは…その土地に建築する建物の建築請負契約が、一定期間内に成立することを条件として売買される土地のことをいいます。請負契約成立に向けて設計プランを協議するため、土地購入者が希望する建物にするために一定の期間(概ね3ヶ月)交渉期間としその期間内に希望するプランが実現できたかどうかによって土地の購入の判断をします。納得のいくプランができず請負契約が未成立になった場合、土地契約にかかった代金(手付金など)は、すべて返却されます。
265件
該当しました。
<前のページ
6
7
8
9
10
11
12
13
14
次のページ>
0件
がマッチ
基本条件
物件種別
投資物件・その他
詳細種別
1棟売りマンション・アパート
マンション(区分所有)
その他
価格
下限なし
100万円
250万円
500万円
1000万円
1500万円
2000万円
2500万円
3000万円
3500万円
4000万円
4500万円
5000万円
5500万円
6000万円
6500万円
7000万円
7500万円
8000万円
8500万円
9000万円
9500万円
1億円
~
上限なし
100万円
250万円
500万円
1000万円
1500万円
2000万円
2500万円
3000万円
3500万円
4000万円
4500万円
5000万円
5500万円
6000万円
6500万円
7000万円
7500万円
8000万円
8500万円
9000万円
9500万円
1億円
間取り
ワンルーム
1K
1DK
1LDK
2K
2DK
2LDK
3K
3DK
3LDK
4K
4DK
4LDK以上
専有面積
下限なし
20㎡
30㎡
40㎡
50㎡
60㎡
70㎡
80㎡
90㎡
100㎡
~
上限なし
20㎡
30㎡
40㎡
50㎡
60㎡
70㎡
80㎡
90㎡
100㎡
土地面積
下限なし
60㎡ (約18坪)
70㎡ (約21坪)
80㎡ (約24坪)
90㎡ (約27坪)
100㎡ (約30坪)
110㎡ (約33坪)
120㎡ (約36坪)
130㎡ (約39坪)
140㎡ (約42坪)
150㎡ (約45坪)
160㎡ (約48坪)
170㎡ (約51坪)
180㎡ (約54坪)
190㎡ (約57坪)
200㎡ (約60坪)
250㎡ (約75坪)
300㎡ (約90坪)
~
上限なし
60㎡ (約18坪)
70㎡ (約21坪)
80㎡ (約24坪)
90㎡ (約27坪)
100㎡ (約30坪)
110㎡ (約33坪)
120㎡ (約36坪)
130㎡ (約39坪)
140㎡ (約42坪)
150㎡ (約45坪)
160㎡ (約48坪)
170㎡ (約51坪)
180㎡ (約54坪)
190㎡ (約57坪)
200㎡ (約60坪)
250㎡ (約75坪)
300㎡ (約90坪)
建物面積
下限なし
60㎡ (約18坪)
70㎡ (約21坪)
80㎡ (約24坪)
90㎡ (約27坪)
100㎡ (約30坪)
110㎡ (約33坪)
120㎡ (約36坪)
130㎡ (約39坪)
140㎡ (約42坪)
150㎡ (約45坪)
160㎡ (約48坪)
170㎡ (約51坪)
180㎡ (約54坪)
190㎡ (約57坪)
200㎡ (約60坪)
250㎡ (約75坪)
300㎡ (約90坪)
~
上限なし
60㎡ (約18坪)
70㎡ (約21坪)
80㎡ (約24坪)
90㎡ (約27坪)
100㎡ (約30坪)
110㎡ (約33坪)
120㎡ (約36坪)
130㎡ (約39坪)
140㎡ (約42坪)
150㎡ (約45坪)
160㎡ (約48坪)
170㎡ (約51坪)
180㎡ (約54坪)
190㎡ (約57坪)
200㎡ (約60坪)
250㎡ (約75坪)
300㎡ (約90坪)
坪単価
下限なし
5万円
10万円
15万円
20万円
25万円
30万円
35万円
40万円
45万円
50万円
~
上限なし
5万円
10万円
15万円
20万円
25万円
30万円
35万円
40万円
45万円
50万円
築年数
指定なし
新築
3年以内
5年以内
10年以内
15年以内
20年以内
方位
北
北東
東
南東
南
南西
西
北西
おすすめ条件
ペット可・相談
楽器可・相談
情報公開日
指定なし
本日
3日以内
1週間以内
1ヶ月以内
0件
がマッチ
人気のあるこだわり条件
角地(62)
南側道路面す(52)
エレベーター(18)
ロフト(1)
駐車場(近隣含む)(115)
公営水道(135)
都市ガス(107)
LPG(16)
下水道(108)
浄化槽(24)
その他水道(1)
事業向け(112)
別荘(3)
田舎暮らし(5)
高利回り物件(22)
条件に合った物件数は、
0 件
です。
立地・環境
角地(62)
南側道路面す(52)
構造
エレベーター(18)
ロフト(1)
駐車場(近隣含む)(115)
設備
公営水道(135)
都市ガス(107)
LPG(16)
下水道(108)
浄化槽(24)
その他水道(1)
その他
事業向け(112)
別荘(3)
田舎暮らし(5)
高利回り物件(22)
条件に合った物件数は、
0 件
です。
アパート・マンション・一戸建て
/
駐車場
/
貸土地
/
店舗
/
事務所
/
倉庫・工場
新築分譲マンション
/
中古マンション
/
新築一戸建て
/
中古一戸建て
/
売土地
/
投資物件・その他
マンション
/
一戸建て
/
土地
建てる・リフォーム
物件掲載企業一覧
掲載希望の企業様へ
新潟の不動産情報サイト
サービス利用規約
運営会社
サイトマップ
プライバシーポリシー
お問い合わせ
リンク
Copyright (C)
株式会社 コモンライフ・コーポレーション
. All Rights Reserved.
新潟・長岡・柏崎の賃貸・マンション・アパート・住宅の不動産物件情報サイト
不動産検索サイト「らくすむ」及び関連サイトに記載の不動産情報は、会員規約に則り、情報提供会社様の責任のもとに発信されております。
不動産の賃借、購入に関しては賃借者、購入者ご自身が情報を確認され、会社企業様から説明を受けられたうえで判断をお願いいたします。
不動産検索サイト「らくすむ」及び関連サイトに記載の不動産情報、写真、デザイン、コンテンツなどの
無断転載・転用・複製
など禁止します。