1
物件掲載企業数:
298
社
|賃貸物件:
3,598
件|売買物件:
3,301
件|今週の登録物件:
193
件
閲覧中のブラウザ(インターネットエクスプローラー)は非推奨ブラウザです。
物件が正しく表示されなかったり、正しく検索されない場合があります。最新のブラウザ(Google Chrome・Edgeなど)にてご利用お願いいたします。
Google Chrome
Microsoft Edge
アパート・マンション・一戸建て
駐車場
貸土地
店舗
事務所
倉庫・工場
新築分譲マンション
中古マンション
新築一戸建て
中古一戸建て
売土地・分譲地
その他(投資物件など)
マンション
一戸建て
土地
ホーム
>
検索方法選択
>
エリア選択
> 物件一覧
上組小学校区
の
新築一戸建て
一覧
6件
該当しました。
表示切替:
一覧表示
/
地図表示
並び替え:
指定なし
新着順
価格が安い順
価格が高い順
画像
物件名/所在地/取扱店
詳細
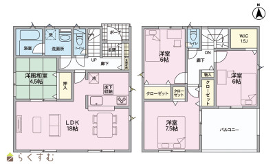
並列駐車3台可!近隣商業施設充実! 上組小学校、宮内中学校区の新築3LDK♪ 前面道路には消雪パイプ完備で冬も安心!
長岡市曲新町1丁目 建売住宅
新潟県長岡市曲新町1丁目1574番4、1574番5
有限会社 一代工務店
価格
:
21,800,000
円
土地面積
:165㎡ /49.91坪
建物面積
:86.75㎡ /26.24坪
間取り
:3LDK
築年月
:2025年9月
【当日見学予約大歓迎】 ■今だけ補助金40万円対象■駐車3台可 ■長岡東バイパスまで車で約5分 ■コンビニまで徒歩約9分 ■リビング広々20帖以上
(新築住宅)長岡市摂田屋 第1 2号棟
新潟県長岡市摂田屋4丁目3-22付近
新潟土地建物販売センター 株式会社
価格
:
24,800,000
円
土地面積
:121.11㎡ /36.63坪
建物面積
:105.3㎡ /31.85坪
間取り
:3LDK
築年月
:2025年12月
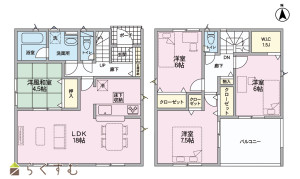
畳コーナー付LDK×テレワーク室あり!オンもオフも心地よく過ごせます
長岡市摂田屋 新築戸建
新潟県長岡市摂田屋4丁目164番1
有限会社 ブライトサクセス
価格
:
24,800,000
円
土地面積
:121.11㎡ /36.63坪
建物面積
:95.58㎡ /28.91坪
間取り
:3LDK
築年月
:2025年12月
【北海道仕様×高気密高断熱の平屋住宅】 ■二人暮らしや一人暮らしに最適な2LDK ■寒い冬も安心!寒冷地用エアコン2台付き ■宮内商業施設までお車3分
( 新築住宅)長岡市摂田屋
新潟県長岡市摂田屋1-11-5付近
新潟土地建物販売センター 株式会社
価格
:
27,800,000
円
土地面積
:155㎡ /46.88坪
建物面積
:62.93㎡ /19.03坪
間取り
:2LDK
築年月
:2026年4月
\駐車場完備!長岡のお店で相談できます/ 【今なら補助金40万円*当日見学OK】■宮内駅徒歩約4分 ■スーパーやコンビニまで徒歩10分圏内 ■全居室収納+WIC ■上組小・宮内中学校区
(新築住宅)長岡市宮内 第1
新潟県長岡市宮内2丁目10-18付近
新潟土地建物販売センター 株式会社
価格
:
27,800,000
円
土地面積
:173.62㎡ /52.52坪
建物面積
:98.82㎡ /29.89坪
間取り
:4LDK
築年月
:2025年11月
【当日見学予約大歓迎】■今だけ補助金40万円対象 ■駐車4台可 ■宮内駅まで徒歩8分 ■前面道路消雪パイプ完備 ■明るくゆとりある南向きリビング18帖
(新築住宅)長岡市曲新町 第1 1号棟
新潟県長岡市曲新町2丁目6-21付近
新潟土地建物販売センター 株式会社
価格
:
28,800,000
円
土地面積
:264.16㎡ /79.9坪
建物面積
:98.82㎡ /29.89坪
間取り
:4LDK
築年月
:2025年11月
表示切替:
一覧表示
/
地図表示
並び替え:
指定なし
新着順
価格が安い順
価格が高い順
価格は物件の代金総額を表示しており、消費税が課税される場合は税込み価格です。
建築条件付き土地価格には、建物価格は含まれません。
物件情報の詳細については取り扱い店までお問い合わせください。
完成予想図はいずれも外構・植栽・外観等実際のものと異なることが多少あります。
CG合成の画像の場合実際と異なることが多少あります。
完成後1年以上経過したものが未入居として記載される場合があります。ご了承ください。
販売予定物件は販売開始するまで契約または予約の申し込みはできません。
ご購入の場合物件詳細や契約内容についてご自身で十分ご確認いただきますようよろしく御願いします。
建築条件付きとは…その土地に建築する建物の建築請負契約が、一定期間内に成立することを条件として売買される土地のことをいいます。請負契約成立に向けて設計プランを協議するため、土地購入者が希望する建物にするために一定の期間(概ね3ヶ月)交渉期間としその期間内に希望するプランが実現できたかどうかによって土地の購入の判断をします。納得のいくプランができず請負契約が未成立になった場合、土地契約にかかった代金(手付金など)は、すべて返却されます。
6件
該当しました。
0件
がマッチ
基本条件
物件種別
新築一戸建て
価格
下限なし
100万円
250万円
500万円
1000万円
1500万円
2000万円
2500万円
3000万円
3500万円
4000万円
4500万円
5000万円
5500万円
6000万円
6500万円
7000万円
7500万円
8000万円
8500万円
9000万円
9500万円
1億円
~
上限なし
100万円
250万円
500万円
1000万円
1500万円
2000万円
2500万円
3000万円
3500万円
4000万円
4500万円
5000万円
5500万円
6000万円
6500万円
7000万円
7500万円
8000万円
8500万円
9000万円
9500万円
1億円
間取り
ワンルーム
1K
1DK
1LDK
2K
2DK
2LDK
3K
3DK
3LDK
4K
4DK
4LDK以上
専有面積
下限なし
20㎡
30㎡
40㎡
50㎡
60㎡
70㎡
80㎡
90㎡
100㎡
~
上限なし
20㎡
30㎡
40㎡
50㎡
60㎡
70㎡
80㎡
90㎡
100㎡
土地面積
下限なし
60㎡ (約18坪)
70㎡ (約21坪)
80㎡ (約24坪)
90㎡ (約27坪)
100㎡ (約30坪)
110㎡ (約33坪)
120㎡ (約36坪)
130㎡ (約39坪)
140㎡ (約42坪)
150㎡ (約45坪)
160㎡ (約48坪)
170㎡ (約51坪)
180㎡ (約54坪)
190㎡ (約57坪)
200㎡ (約60坪)
250㎡ (約75坪)
300㎡ (約90坪)
~
上限なし
60㎡ (約18坪)
70㎡ (約21坪)
80㎡ (約24坪)
90㎡ (約27坪)
100㎡ (約30坪)
110㎡ (約33坪)
120㎡ (約36坪)
130㎡ (約39坪)
140㎡ (約42坪)
150㎡ (約45坪)
160㎡ (約48坪)
170㎡ (約51坪)
180㎡ (約54坪)
190㎡ (約57坪)
200㎡ (約60坪)
250㎡ (約75坪)
300㎡ (約90坪)
建物面積
下限なし
60㎡ (約18坪)
70㎡ (約21坪)
80㎡ (約24坪)
90㎡ (約27坪)
100㎡ (約30坪)
110㎡ (約33坪)
120㎡ (約36坪)
130㎡ (約39坪)
140㎡ (約42坪)
150㎡ (約45坪)
160㎡ (約48坪)
170㎡ (約51坪)
180㎡ (約54坪)
190㎡ (約57坪)
200㎡ (約60坪)
250㎡ (約75坪)
300㎡ (約90坪)
~
上限なし
60㎡ (約18坪)
70㎡ (約21坪)
80㎡ (約24坪)
90㎡ (約27坪)
100㎡ (約30坪)
110㎡ (約33坪)
120㎡ (約36坪)
130㎡ (約39坪)
140㎡ (約42坪)
150㎡ (約45坪)
160㎡ (約48坪)
170㎡ (約51坪)
180㎡ (約54坪)
190㎡ (約57坪)
200㎡ (約60坪)
250㎡ (約75坪)
300㎡ (約90坪)
坪単価
下限なし
5万円
10万円
15万円
20万円
25万円
30万円
35万円
40万円
45万円
50万円
~
上限なし
5万円
10万円
15万円
20万円
25万円
30万円
35万円
40万円
45万円
50万円
築年数
指定なし
新築
3年以内
5年以内
10年以内
15年以内
20年以内
方位
北
北東
東
南東
南
南西
西
北西
おすすめ条件
ペット可・相談
楽器可・相談
情報公開日
指定なし
本日
3日以内
1週間以内
1ヶ月以内
0件
がマッチ
人気のあるこだわり条件
整形地(4)
前面道路6m以上(3)
日当り良好(6)
閑静な住宅街(6)
スーパー近く(1)
耐震構造(3)
BELS/省エネ基準適合認定建物(1)
フラット35S適合(1)
LDK15畳以上(4)
全室フローリング(2)
駐車場2台以上(3)
駐車場3台以上(3)
南向き(4)
庭あり(1)
TVインターホン(6)
複層ガラス(6)
ディンプルキー(4)
システムキッチン(6)
カウンターキッチン(5)
IHクッキングヒーター(2)
浄水器(4)
3口コンロ(5)
ガスコンロ設置済み(3)
追いだき機能付き(5)
浴室暖房乾燥機(4)
バス1坪以上(5)
温水洗浄便座(6)
シャワー付き洗面台(5)
エアコン(2)
24時間換気システム(5)
オール電化(1)
省エネ給湯(5)
高気密高断熱住宅(5)
ルーフバルコニー(1)
都市ガス(5)
上水道(6)
下水道(6)
電気(5)
ウォークインクローゼット(3)
全居室収納あり(6)
床下収納(5)
シューズインクローゼット(1)
シューズBOX(5)
照明器具付き(1)
即引き渡し可能(2)
バリアフリー(2)
条件に合った物件数は、
0 件
です。
立地・環境
整形地(4)
前面道路6m以上(3)
日当り良好(6)
閑静な住宅街(6)
スーパー近く(1)
構造・工法・仕様
耐震構造(3)
BELS/省エネ基準適合認定建物(1)
フラット35S適合(1)
面積・間取り
LDK15畳以上(4)
全室フローリング(2)
駐車・駐輪
駐車場2台以上(3)
駐車場3台以上(3)
採光・向き
南向き(4)
ガーデン
庭あり(1)
管理・防犯
TVインターホン(6)
複層ガラス(6)
ディンプルキー(4)
キッチン
システムキッチン(6)
カウンターキッチン(5)
IHクッキングヒーター(2)
浄水器(4)
3口コンロ(5)
ガスコンロ設置済み(3)
浴室
追いだき機能付き(5)
浴室暖房乾燥機(4)
バス1坪以上(5)
トイレ
温水洗浄便座(6)
洗面所
シャワー付き洗面台(5)
冷暖房・空調
エアコン(2)
24時間換気システム(5)
光熱設備
オール電化(1)
省エネ給湯(5)
高気密高断熱住宅(5)
バルコニー・テラス
ルーフバルコニー(1)
室内仕様・設備
都市ガス(5)
上水道(6)
下水道(6)
電気(5)
収納
ウォークインクローゼット(3)
全居室収納あり(6)
床下収納(5)
シューズインクローゼット(1)
シューズBOX(5)
電気設備
照明器具付き(1)
費用・入居・引渡・条件
即引き渡し可能(2)
その他
バリアフリー(2)
条件に合った物件数は、
0 件
です。
アパート・マンション・一戸建て
/
駐車場
/
貸土地
/
店舗
/
事務所
/
倉庫・工場
新築分譲マンション
/
中古マンション
/
新築一戸建て
/
中古一戸建て
/
売土地
/
投資物件・その他
マンション
/
一戸建て
/
土地
建てる・リフォーム
物件掲載企業一覧
掲載希望の企業様へ
新潟の不動産情報サイト
サービス利用規約
運営会社
サイトマップ
プライバシーポリシー
お問い合わせ
リンク
Copyright (C)
株式会社 コモンライフ・コーポレーション
. All Rights Reserved.
新潟・長岡・柏崎の賃貸・マンション・アパート・住宅の不動産物件情報サイト
不動産検索サイト「らくすむ」及び関連サイトに記載の不動産情報は、会員規約に則り、情報提供会社様の責任のもとに発信されております。
不動産の賃借、購入に関しては賃借者、購入者ご自身が情報を確認され、会社企業様から説明を受けられたうえで判断をお願いいたします。
不動産検索サイト「らくすむ」及び関連サイトに記載の不動産情報、写真、デザイン、コンテンツなどの
無断転載・転用・複製
など禁止します。