| 物件コード | 00395-200003 | ||
|---|---|---|---|
| 物件名 | 売り事務所 | ||
| 交通 | 駅:信越線 犀潟駅から徒歩17分、バス:渋柿東から徒歩2分 | ||
| 物件所在地 | 新潟県上越市大潟区渋柿浜1853-3 | ||
| 物件種別 | 中古一戸建て | ||
| 構造 | 鉄骨 | 階建 | 地上1階建 |
| 建ぺい率/容積率 | 60%/200% | ||
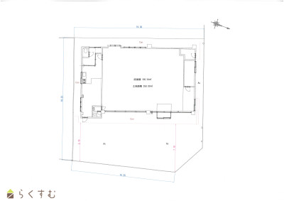
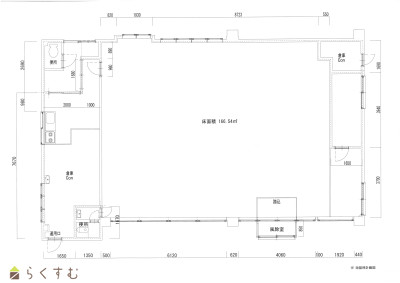
| 建物面積 | 1階 166.54㎡/ 計 166.54㎡ /50.37坪 | ||
| 土地面積 | 358.09㎡ /108.32坪 | ||
| 築年月 | 1998年10月(築27年) | ||
| 入居時期 | 相談 | ||
| 用途地域 | 第1種住居地域 | 地目 | 宅地 |
| 都市計画 | 市街化区域 | 学校区 | 大潟町小学校(1,364m)・大潟町中学校(2,458m) |
| 形状 | 間口 19.30m × 奥行 18.23m | 道路 | 県道 北側6.6m、市道 東側 車道8.7m歩道2.7m |
| 私道 | - | ||
| 所在階/階数 | - | 号室 | - |
|---|---|---|---|
| 販売価格 | 14,000,000円 | 方位 | - |
| 間取り |
3R 図面参照 |
||
| 専有面積 | - | バルコニー面積 | - |
| その他面積 | - | 駐車場 | - |
| 管理費 | - | 修繕積立金 | - |
| 現況 | 居住中 | ||
| 仲介手数料 | なし | ||
| 利用制限 | - | ||
| 設備 | 角地、ガスコンロ設置可能、トイレ2か所以上、エアコンあり、都市ガス、上水道、下水道、内装リフォーム済み、外装リフォーム済み、事業向け | ||
| 取引態様 | 売主 | ||
| 備考 | 引渡し時期についてはご相談となります。 駐車場は普通車6台と軽自動車1台 駐車可能です。 北側県道は都市計画制限があります。 固定資産税、所有権移転費用、契約印紙代等が別途かかります。 平成30年 内装、外装リノベーション済み (リフォーム必要箇所別途あり) |
||
| 情報登録日 | 2026/01/09 | 次回更新予定日 | 2026/04/03 |
| 取引条件有効期限 | 2026/03/31 | ||
|
|
|
|
|
|
| TEL: | 025-520-5558 |
|---|---|
| 所在地: | 新潟県上越市大潟区渋柿浜1853番地3 |
| 交通: | |
| 営業時間: | 8:30~17:00/定休日:土日、祝日 |
| 免許番号: | 新潟県知事(1)第5762号 |
| 所属団体名: | 公社 新潟県宅地建物取引協会 上越支部 |
| 取引態様: | 売主 |