| 物件コード | 00378-200075 | ||
|---|---|---|---|
| 物件名 | 新潟市西区西小針台3丁目 中古戸建 | ||
| 交通 | 駅:越後線 寺尾駅から徒歩16分、バス:松海が丘から徒歩6分 | ||
| 物件所在地 | 新潟県新潟市西区西小針台3丁目2-3 | ||
| 物件種別 | 中古一戸建て | ||
| 構造 | 木造 | 階建 | 地上2階建 |
| 建ぺい率/容積率 | 50%/100% | ||
| 建物面積 | 1階 85.28㎡/ 2階 29.98㎡/ 計 114.26㎡ /34.56坪 | ||
| 土地面積 | 177.11㎡ /53.57坪 | ||
| 築年月 | 1972年9月(築53年) | ||
| 入居時期 | 随時入居(引き渡し)可 | ||
| 用途地域 | 第1種低層住居専用地域 | 地目 | 宅地 |
| 都市計画 | 市街化区域 | 学校区 | 真砂小学校(617m)・五十嵐中学校(1,251m) |
| 形状 | 間口 10.9m × 奥行 16.1m | 道路 | 東側 約4.0m 私道 (位置指定道路) |
| 私道 | - | ||
| 所在階/階数 | - | 号室 | - |
|---|---|---|---|
| 販売価格 | 11,000,000円 | 方位 | - |
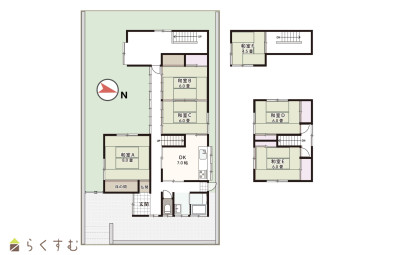
| 間取り |
6DK (和室:8畳、6畳、6畳、6畳、6畳、4.5畳) DK7 |
||
| 専有面積 | - | バルコニー面積 | - |
| その他面積 | - | 駐車場 | - |
| 管理費 | - | 修繕積立金 | - |
| 現況 | 空家 | ||
| 仲介手数料 | 405,600円 | ||
| 利用制限 | - | ||
| 設備 | 閑静な住宅街、スーパー近く、都市ガス、上水道、下水道、即引き渡し可能 | ||
| 取引態様 | 専任 | ||
| 備考 | ・道路位置指定:S43年9月26日 第131号 ・現況有姿でのお引渡しとなります。 ・建物には一部未登記部分があります。 ・売主の契約不適合責任免責 |
||
| 情報登録日 | 2026/02/17 | 次回更新予定日 | 2026/04/29 |
| 取引条件有効期限 | 2026/02/12 | ||
|
|
|
|
| TEL: | 0258-86-4690 |
|---|---|
| 所在地: | 新潟県長岡市神田町3-4-5 |
| 交通: | 長岡駅 |
| 営業時間: | 10:00~18:00/定休日:水曜日 ※ご都合に合わせて対応可能です |
| 免許番号: | 新潟県知事(1)第5764号 |
| 所属団体名: | 公社 全日本不動産協会 新潟県本部 |
| 取引態様: | 専任 |