| 物件コード | 00378-200067 | ||
|---|---|---|---|
| 物件名 | 柏崎市桜木町 中古戸建 | ||
| 交通 | 駅:越後線 東柏崎駅から徒歩16分、バス:翔洋高校前から徒歩1分 | ||
| 物件所在地 | 新潟県柏崎市桜木町23-23 | ||
| 物件種別 | 中古一戸建て | ||
| 構造 | 木造 | 階建 | 地上2階建 |
| 建ぺい率/容積率 | 60%/199% | ||
| 建物面積 | 1階 67.9㎡/ 2階 28.98㎡/ 計 96.88㎡ /29.3坪 | ||
| 土地面積 | 246.51㎡ /74.56坪 | ||
| 築年月 | 1974年12月(築51年) | ||
| 入居時期 | 随時入居(引き渡し)可 | ||
| 用途地域 | 第1種住居地域 | 地目 | 宅地 |
| 都市計画 | 市街化区域 | 学校区 | 柏崎小学校(1,625m)・第一中学校(1,387m) |
| 形状 | - | 道路 | 北側 約2.7m 公道 |
| 私道 | - | ||
| 所在階/階数 | - | 号室 | - |
|---|---|---|---|
| 販売価格 | 1,980,000円 | 方位 | - |
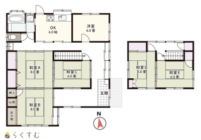
| 間取り |
6DK (和室:8畳、8畳、6畳、6畳、6畳) (洋室:6) DK6 |
||
| 専有面積 | - | バルコニー面積 | - |
| その他面積 | - | 駐車場 | - |
| 管理費 | - | 修繕積立金 | - |
| 現況 | 空家 | ||
| 仲介手数料 | 312,000円 | ||
| 利用制限 | - | ||
| 設備 | スーパー近く、システムキッチン、ガスコンロ設置可能、バス1坪以上、都市ガス、上水道、下水道、即引き渡し可能 | ||
| 取引態様 | 一般 | ||
| 備考 | ◆1階南側に未登記増築部分(約32.23㎡)有り ◆再建築可能です。 ◆現況有姿でのお引渡しとなります。 ◆リノベーションのご相談も承ります。 |
||
| 情報登録日 | 2026/02/01 | 次回更新予定日 | 2026/02/16 |
| 取引条件有効期限 | 2026/01/13 | ||
|
|
|
|
| TEL: | 0258-86-4690 |
|---|---|
| 所在地: | 新潟県長岡市神田町3-4-5 |
| 交通: | 長岡駅 |
| 営業時間: | 10:00~18:00/定休日:水曜・日曜・祝日 ※ご予約いただければいつでも対応します。 |
| 免許番号: | 新潟県知事(1)第5764号 |
| 所属団体名: | 公社 全日本不動産協会 新潟県本部 |
| 取引態様: | 一般 |