| 物件コード | 00362-200019 | ||
|---|---|---|---|
| 物件名 | 上越高土町B 新築建売物件 | ||
| 交通 | 駅:妙高はねうまライン 高田駅から徒歩29分、バス:高土町から徒歩7分 | ||
| 物件所在地 | 新潟県上越市高土町2-183 | ||
| 物件種別 | 新築一戸建て | ||
| 構造 | 木造 | 階建 | 地上2階建 |
| 建ぺい率/容積率 | 60%/200% | ||
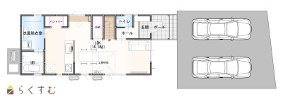
| 建物面積 | 1階 45.54㎡/ 2階 42.23㎡/ 計 87.77㎡ /26.55坪 | ||
| 土地面積 | 140.34㎡ /42.45坪 | ||
| 築年月 | 2025年8月(築9ヶ月) | ||
| 入居時期 | 相談 | ||
| 用途地域 | 第1種住居地域 | 地目 | 宅地 |
| 都市計画 | 市街化区域 | 学校区 | 東本町小学校(970m)・城北中学校(585m) |
| 形状 | 間口 6.9m × 奥行 20.7m | 道路 | 北側(幅:4.3m/接道幅:15m) |
| 私道 | - | ||
| 所在階/階数 | - | 号室 | - |
|---|---|---|---|
| 販売価格 | 25,800,000円 | 方位 | 南 |
| 間取り | 3LDK | ||
| 専有面積 | - | バルコニー面積 | - |
| その他面積 | - | 駐車場 | - |
| 管理費 | - | 修繕積立金 | - |
| 現況 | - | ||
| 仲介手数料 | なし | ||
| 利用制限 | - | ||
| 設備 | 整形地、日当り良好、スーパー近く、建物確認・完了検査済証あり、LDK15畳以上、全室フローリング、駐車場2台以上、TVインターホン、システムキッチン、カウンターキッチン、IHクッキングヒーター、追いだき機能付き、バス1坪以上、温水洗浄便座、シャワー付き洗面台、エアコン、24時間換気システム、オール電化、省エネ給湯、高気密高断熱住宅、上水道、下水道、電気、全居室収納あり、シューズBOX、照明器具付き | ||
| 取引態様 | 一般 | ||
| 備考 | *POINT(1)お家の特徴 ・24時間熱交換換気扇がついているので、窓を開けなくても常に換気をしてくれます ・リビングにはカウンタースペースがあります!お子様の勉強や在宅ワーク、家事にもおすすめ☆ ・物干し用ホスクリーンが2か所ついているので、お洗濯を干す場所に困りません! *POINT(2)周辺環境 ・東本町小学校まで徒歩15分 ・城北中学校まで徒歩15分 ・原信土橋店まで車3分 ・バイパスまで車2分 小・中学校まで徒歩15分圏内、バイパスにも乗りやすい!と利便性が高いです☆ *POINT(3)金額について 土地+建物+外構コミコミで2,580万円 お気軽にお問い合わせください(*^^*) |
||
| 情報登録日 | 2025/07/08 | 次回更新予定日 | 2026/05/22 |
| 取引条件有効期限 | 2025/08/31 | ||
|
|
|
|
|
| TEL: | 0258-94-4638 |
|---|---|
| 所在地: | 新潟県長岡市古正寺3-116 |
| 交通: | |
| 営業時間: | 10:00~17:00/定休日:水・木 年末年始 夏季冬季GW |
| 免許番号: | 新潟県知事(2)第5485号 |
| 所属団体名: | 公社 新潟県宅地建物取引協会 長岡支部 |
| 取引態様: | 一般 |