| 1キロ圏内にはスーパー・ドラッグストア・コンビニ、小学校・中学校も近く、子育て世帯にも安心です。徒歩3分以内には郵便局と銀行も。玄関にはシューズインクロークがあり、靴や外遊び道具もしっかり収納。人感センサー付き玄関灯と防犯カメラで、防犯面にも配慮したつくりです。リビングには和室が隣接し、家族のくつろぎにぴったり。7.5帖の主寝室には8.51㎡のルーフバルコニーがつながり、ゆとりある時間を楽しめます。2階にもトイレ、全居室収納、2帖のテレワークルームなど、毎日の暮らしが快適になる工夫がつまった住まいです。 | |||
| 物件コード | 00320-200223 | ||
|---|---|---|---|
| 物件名 | 新保1丁目 新築戸建 | ||
| 交通 | 駅:信越線 北長岡駅から徒歩15分、バス:新保1丁目から徒歩1分 | ||
| 物件所在地 | 新潟県長岡市新保1丁目8-35 | ||
| 物件種別 | 新築一戸建て | ||
| 構造 | 木造 | 階建 | 地上2階建 |
| 建ぺい率/容積率 | 60%/200% | ||
| 建物面積 | 計 97.59㎡ /29.52坪 | ||
| 土地面積 | 305.24㎡ /92.33坪 | ||
| 築年月 | 2025年12月(築1ヶ月) | ||
| 入居時期 | 相談 | ||
| 用途地域 | 第1種中高層住居専用地域 | 地目 | 宅地 |
| 都市計画 | 市街化区域 | 学校区 | 富曾亀小学校(492m)・東北中学校(798m) |
| 形状 | 間口 26.2m × 奥行 12.06m | 道路 | 前面道路幅員約8.5m |
| 私道 | - | ||
| 所在階/階数 | - | 号室 | - |
|---|---|---|---|
| 販売価格 | 30,800,000円 | 方位 | 東 |
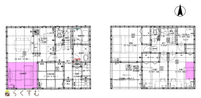
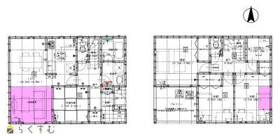
| 間取り |
4LDK (和室:4.5畳) (洋室:7.5、6、5) LDK16.2 2帖のテレワークルームあり |
||
| 専有面積 | - | バルコニー面積 | - |
| その他面積 | 8.51㎡ /2.57坪 ルーフバルコニー | 駐車場 | - |
| 管理費 | - | 修繕積立金 | - |
| 現況 | - | ||
| 仲介手数料 | 1,082,400円 | ||
| 利用制限 | - | ||
| 設備 | 整形地、前面道路6m以上、日当り良好、閑静な住宅街、スーパー近く、LDK15畳以上、駐車場3台以上、南向き、TVインターホン、複層ガラス、システムキッチン、カウンターキッチン、浴室暖房乾燥機、シャワー付き洗面台、ルーフバルコニー、都市ガス、上水道、下水道、全居室収納あり、シューズインクローゼット、シューズBOX | ||
| 取引態様 | 仲介 | ||
| 備考 | - | ||
| 情報登録日 | 2026/01/19 | 次回更新予定日 | 2026/02/12 |
| 取引条件有効期限 | 2026/10/31 | ||
|
|
|
|
| TEL: | 0258-35-2220 |
|---|---|
| 所在地: | 新潟県長岡市新町1-1-2 |
| 交通: | 長岡駅 |
| 営業時間: | 午前10時00分~午後7時 /定休日:オンラインサービス:午前9時30分~午後9時 |
| 免許番号: | 新潟県知事(1)第5629号 |
| 所属団体名: | 公社 新潟県宅地建物取引協会 新潟支部 |
| 取引態様: | 仲介 |