| ルームツアー動画公開中 https://www.instagram.com/p/DPnuADfkTDD/ | |||
| 物件コード | 00282-200017 | ||
|---|---|---|---|
| 物件名 | 滝寺建売 | ||
| 交通 | 駅:妙高はねうまライン 春日山駅から徒歩33分、バス:上越自動車学校前から徒歩4分 | ||
| 物件所在地 | 新潟県上越市滝寺2444-18 | ||
| 物件種別 | 新築一戸建て | ||
| 構造 | 木造 | 階建 | 地上2階建 |
| 建ぺい率/容積率 | 60%/200% | ||
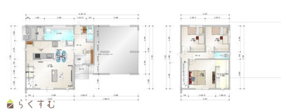
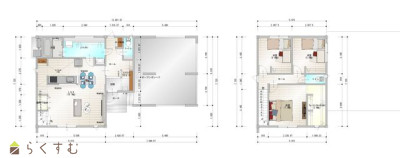
| 建物面積 | 計 135.2㎡ /40.89坪 | ||
| 土地面積 | 191㎡ /57.77坪 | ||
| 築年月 | 2025年9月(築8ヶ月) | ||
| 入居時期 | 随時入居(引き渡し)可 | ||
| 用途地域 | 第1種中高層住居専用地域 | 地目 | 宅地 |
| 都市計画 | 市街化区域 | 学校区 | 高志小学校(1,378m)・春日中学校(2,263m) |
| 形状 | - | 道路 | 東側:幅員5.9m 南側:幅員6.0m |
| 私道 | - | ||
| 所在階/階数 | - | 号室 | - |
|---|---|---|---|
| 販売価格 | 29,500,000円 | 方位 | 南 |
| 間取り |
3LDK (洋室:5.6、5.6、7.3) LDK19.7 ウォークインクローゼット3.6帖 |
||
| 専有面積 | - | バルコニー面積 | - |
| その他面積 | - | 駐車場 | - |
| 管理費 | - | 修繕積立金 | - |
| 現況 | 空家 | ||
| 仲介手数料 | なし | ||
| 利用制限 | - | ||
| 設備 | 角地、前面道路6m以上、日当り良好、閑静な住宅街、瑕疵担保保険付き、建物確認・完了検査済証あり、LDK15畳以上、全室フローリング、駐車場2台以上、南向き、TVインターホン、複層ガラス、ディンプルキー、システムキッチン、カウンターキッチン、IHクッキングヒーター、食器洗浄乾燥機、3口コンロ、追いだき機能付き、バス1坪以上、温水洗浄便座、シャワー付き洗面台、エアコン、オール電化、上水道、下水道、電気、ウォークインクローゼット、全居室収納あり、シューズインクローゼット、即引き渡し可能 | ||
| 取引態様 | 売主 | ||
| 備考 | オープンガレージ・オール電化・アイランドキッチン・ランドリースペース・ウォークインクローゼット・シューズクローク・パントリー | ||
| 情報登録日 | 2026/04/25 | 次回更新予定日 | 2026/05/22 |
| 取引条件有効期限 | 2026/12/30 | ||
|
|
|
|
|
| TEL: | 025-525-8112 |
|---|---|
| 所在地: | 新潟県上越市大学前54-2 |
| 交通: | |
| 営業時間: | /定休日: |
| 免許番号: | 新潟県知事(4)第4953号 |
| 所属団体名: | 公社 新潟県宅地建物取引協会 上越支部 |
| 取引態様: | 売主 |