| 物件コード | 00259-200052 | ||
|---|---|---|---|
| 物件名 | 北城町売家 | ||
| 交通 | 駅:妙高はねうまライン 高田駅から徒歩25分、バス:北城町から徒歩3分 | ||
| 物件所在地 | 新潟県上越市北城町4丁目8-20 | ||
| 物件種別 | 中古一戸建て | ||
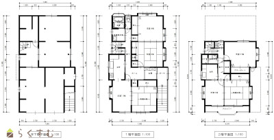
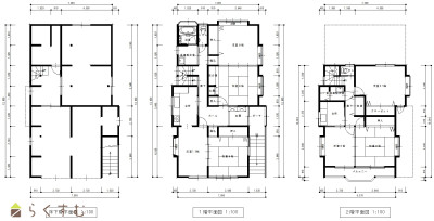
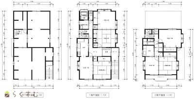
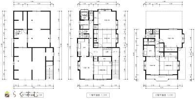
| 構造 | 木造鉄筋コン | 階建 | 地上3階建 |
| 建ぺい率/容積率 | 50%/80% | ||
| 建物面積 | 1階 97.69㎡/ 2階 94.88㎡/ 3階 62.58㎡/ 計 255.15㎡ /77.18坪 | ||
| 土地面積 | 199㎡ /60.19坪 | ||
| 築年月 | 1993年12月(築32年) | ||
| 入居時期 | 随時入居(引き渡し)可 | ||
| 用途地域 | 第1種住居地域 | 地目 | 宅地 (現状:宅地) |
| 都市計画 | 市街化区域 | 学校区 | 大町小学校(1,283m)・城北中学校(798m) |
| 形状 | - | 道路 | 南側 |
| 私道 | - | ||
| 所在階/階数 | - | 号室 | - |
|---|---|---|---|
| 販売価格 | 12,800,000円 | 方位 | 南 |
| 間取り |
6DK (和室:8畳、8畳、8畳) (洋室:9.5、8、6) DK7.5 |
||
| 専有面積 | - | バルコニー面積 | - |
| その他面積 | - | 駐車場 | - |
| 管理費 | - | 修繕積立金 | - |
| 現況 | 空家 | ||
| 仲介手数料 | なし | ||
| 利用制限 | - | ||
| 設備 | 南向き、都市ガス、上水道、下水道 | ||
| 取引態様 | 売主 | ||
| 備考 | - | ||
| 情報登録日 | 2024/06/04 | 次回更新予定日 | 2026/05/22 |
| 取引条件有効期限 | 2024/09/04 | ||
|
|
|
|
| TEL: | 0255-72-3129 |
|---|---|
| 所在地: | 新潟県妙高市東陽町2-20 |
| 交通: | えちごトキめき鉄道 新井駅から徒歩25分 |
| 営業時間: | 8:00〜17:00/定休日:土日祝日 |
| 免許番号: | 新潟県知事(8)第3467号 |
| 所属団体名: | 公益社団法人新潟県宅地建物取引協会 上越支部 |
| 取引態様: | 売主 |