| ◆毎日営業中!当日のご内覧大歓迎!いつでもご案内します!!◆急なご来店でも相談出来ます◆豊富な知識と経験を基に丁寧にアドバイスします!先ずはお電話、メール、LINEにてお問合せ下さい♪ | |||
| 物件コード | 00239-200591 | ||
|---|---|---|---|
| 物件名 | (新築住宅)長岡市宮内 第1 | ||
| 交通 | 駅:信越線 宮内駅から徒歩4分、バス:宮内駅前から徒歩4分 | ||
| 物件所在地 | 新潟県長岡市宮内2丁目10-18付近 | ||
| 物件種別 | 新築一戸建て | ||
| 構造 | 木造 | 階建 | 地上2階建 |
| 建ぺい率/容積率 | 60%/200% | ||
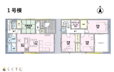
| 建物面積 | 1階 51.84㎡/ 2階 46.98㎡/ 計 98.82㎡ /29.89坪 | ||
| 土地面積 | 173.62㎡ /52.52坪 | ||
| 築年月 | 2025年11月完成予定 | ||
| 入居時期 | 随時入居(引き渡し)可 | ||
| 用途地域 | 第1種住居地域 | 地目 | 宅地 |
| 都市計画 | 市街化区域 | 学校区 | 上組小学校(1,500m)・宮内中学校(850m) |
| 形状 | 間口 16.5m × 奥行 9.9m | 道路 | 北側4.0m公道 |
| 私道 | - | ||
| 所在階/階数 | - | 号室 | - |
|---|---|---|---|
| 販売価格 | 27,800,000円 | 方位 | 南 |
| 間取り |
4LDK (和室:4.5畳) (洋室:7.0、6.0、6.0) LDK16 2階に2.0帖のテレワークルーム有 |
||
| 専有面積 | - | バルコニー面積 | - |
| その他面積 | - | 駐車場 | - |
| 管理費 | - | 修繕積立金 | - |
| 現況 | 空家 | ||
| 仲介手数料 | 983,400円 | ||
| 利用制限 | - | ||
| 設備 | 整形地、日当り良好、閑静な住宅街、スーパー近く、耐震構造、LDK15畳以上、駐車場2台以上、南向き、TVインターホン、複層ガラス、ディンプルキー、システムキッチン、カウンターキッチン、浄水器、3口コンロ、ガスコンロ設置済み、追いだき機能付き、浴室暖房乾燥機、バス1坪以上、温水洗浄便座、シャワー付き洗面台、24時間換気システム、省エネ給湯、高気密高断熱住宅、都市ガス、上水道、下水道、電気、ウォークインクローゼット、全居室収納あり、床下収納、シューズBOX、即引き渡し可能、バリアフリー | ||
| 取引態様 | 一般 | ||
| 備考 | 【教育】 上組小学校 約1500m 徒歩約19分 宮内中学校 約850m 徒歩約11分 【交通】 JR上越線/信越本線 宮内駅 徒歩約4分 越後交通 宮内駅前 徒歩約4分 ■■売って終わりにしない、充実のアフターサービス体制■■ ◎アフターサービスの専門スタッフが、迅速・丁寧にご対応 ◎独自のメンテナンス制度で設備の故障や建物の傷を無償修理 ◎ご購入後のお困り事も、充実した体制で手厚くサポート ■■選べるプレゼント■■ ◎エアコンや照明などの新生活に必要な設備を無料でプレゼント |
||
| 情報登録日 | 2025/11/28 | 次回更新予定日 | 2025/12/13 |
| 取引条件有効期限 | 2025/12/31 | ||
|
|
|
|
| TEL: | 0258-89-8245 |
|---|---|
| 所在地: | 新潟県長岡市台町1-7-331階 |
| 交通: | 長岡駅 |
| 営業時間: | 9:00~18:00/定休日:なし |
| 免許番号: | 新潟県知事(3)第5151号 |
| 所属団体名: | 公社 新潟県宅地建物取引協会 新潟支部 |
| 取引態様: | 一般 |