| 幼稚園・小中学校・商業施設・長岡バイパスまでもがすべて徒歩圏内に揃った好立地!庭には美しく剪定された松や緑豊かな植栽が配置され、四季折々の風情を楽しむことができます。お気軽にお問い合わせください♪ | |||
| 物件コード | 00239-200580 | ||
|---|---|---|---|
| 物件名 | 長岡市豊 戸建 | ||
| 交通 | 駅:信越線 北長岡駅から徒歩22分、バス:豊町から徒歩4分 | ||
| 物件所在地 | 新潟県長岡市豊1丁目7-12 | ||
| 物件種別 | 中古一戸建て | ||
| 構造 | 木造 | 階建 | 地上2階建 |
| 建ぺい率/容積率 | 70%/200% | ||
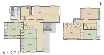
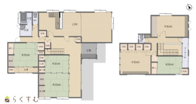
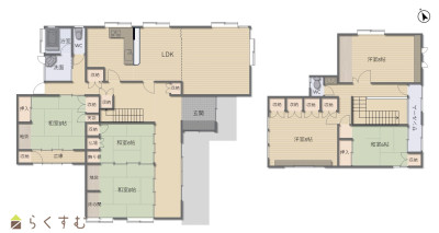
| 建物面積 | 1階 133.55㎡/ 2階 69.78㎡/ 計 203.33㎡ /61.5坪 | ||
| 土地面積 | 338㎡ /102.24坪 | ||
| 築年月 | 1983年7月(築42年) | ||
| 入居時期 | 随時入居(引き渡し)可 | ||
| 用途地域 | 第1種中高層住居専用地域 | 地目 | 宅地 |
| 都市計画 | 市街化区域 | 学校区 | 川崎東小学校(350m)・東北中学校(450m) |
| 形状 | 間口 16m × 奥行 22m | 道路 | 東側6.1m市道、北側6.0m市道 |
| 私道 | - | ||
| 所在階/階数 | - | 号室 | - |
|---|---|---|---|
| 販売価格 | 21,000,000円 | 方位 | 南東 |
| 間取り | 6LDK | ||
| 専有面積 | - | バルコニー面積 | - |
| その他面積 | - | 駐車場 | - |
| 管理費 | - | 修繕積立金 | - |
| 現況 | 空家 | ||
| 仲介手数料 | 759,000円 | ||
| 利用制限 | - | ||
| 設備 | 角地、日当り良好、閑静な住宅街、スーパー近く、駐車場融雪設備あり、2口コンロ、ガスコンロ設置済み、追いだき機能付き、温水洗浄便座、トイレ2か所以上、エアコンあり、ウッドデッキ・テラス、都市ガス、上水道、下水道、床下収納、シューズBOX、即引き渡し可能 | ||
| 取引態様 | 一般 | ||
| 備考 | 【教育機関】 川崎東小学校 約350m 徒歩約5分 東北中学校 約450m 徒歩約6分 【交通機関】 JR信越本線 北長岡駅 徒歩約22分 越後交通バス 豊町 徒歩約4分 【お引渡し条件】 ※売主契約不適合責任免責 ※現況有姿引渡し 【備考】 ※間口と奥行は手測量に基づく寸法の為、実際の寸法と異なる可能性があります ※残置物は売主負担で撤去 ※消雪組合加入必要:24,000円/年 ※シロアリ駆除工事:2022年1月11日実施済(5年間の保証有) -物件情報- ■敷地広々約102坪・建物約61坪、6LDKのゆとりある住まい ■エアコン付きで初期費用の軽減 ■天候を気にせず洗濯物が干せるサンルーム付き |
||
| 情報登録日 | 2025/09/04 | 次回更新予定日 | 2026/05/22 |
| 取引条件有効期限 | 2026/12/31 | ||
|
|
|
|
| TEL: | 0258-89-8245 |
|---|---|
| 所在地: | 新潟県長岡市台町1-7-331階 |
| 交通: | 長岡駅 |
| 営業時間: | 9:00~18:00/定休日:なし |
| 免許番号: | 新潟県知事(3)第5151号 |
| 所属団体名: | 公社 新潟県宅地建物取引協会 新潟支部 |
| 取引態様: | 一般 |