| 全室収納&土間収納、2階には便利なサンルーム付きと、暮らしやすさにこだわった間取りです!小中学校やスーパー・コンビニ・薬局までが徒歩圏内と生活環境も◎長岡バイパス至近で通勤にも便利な立地です♪ | |||
| 物件コード | 00239-200575 | ||
|---|---|---|---|
| 物件名 | (新築住宅)長岡市石内B棟 | ||
| 交通 | 駅:信越線 北長岡駅から徒歩17分、バス:石内1丁目から徒歩4分 | ||
| 物件所在地 | 新潟県長岡市石内1丁目9ー1付近 | ||
| 物件種別 | 新築一戸建て | ||
| 構造 | 木造 | 階建 | 地上2階建 |
| 建ぺい率/容積率 | 60%/200% | ||
| 建物面積 | 1階 40.16㎡/ 2階 41.4㎡/ 計 81.56㎡ /24.67坪 | ||
| 土地面積 | 111.17㎡ /33.62坪 | ||
| 築年月 | 2025年12月(築2ヶ月) | ||
| 入居時期 | 随時入居(引き渡し)可 | ||
| 用途地域 | 第1種住居地域 | 地目 | 宅地 |
| 都市計画 | 市街化区域 | 学校区 | 神田小学校(500m)・東中学校(800m) |
| 形状 | - | 道路 | 東側7.8m公道 |
| 私道 | - | ||
| 所在階/階数 | - | 号室 | - |
|---|---|---|---|
| 販売価格 | 22,500,000円 | 方位 | 南 |
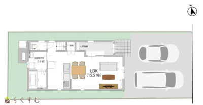
| 間取り |
3LDK (洋室:7.5、5.2、5.2) LDK15.5 洗面脱衣室2帖、土間収納あり |
||
| 専有面積 | - | バルコニー面積 | - |
| その他面積 | - | 駐車場 | - |
| 管理費 | - | 修繕積立金 | - |
| 現況 | 空家 | ||
| 仲介手数料 | 808,500円 | ||
| 利用制限 | - | ||
| 設備 | 整形地、前面道路6m以上、日当り良好、閑静な住宅街、スーパー近く、BELS/省エネ基準適合認定建物、LDK15畳以上、全室フローリング、駐車場2台以上、南向き、TVインターホン、複層ガラス、システムキッチン、カウンターキッチン、IHクッキングヒーター、3口コンロ、追いだき機能付き、バス1坪以上、温水洗浄便座、シャワー付き洗面台、エアコン、24時間換気システム、オール電化、省エネ給湯、高気密高断熱住宅、上水道、下水道、電気、全居室収納あり、シューズインクローゼット、照明器具付き、即引き渡し可能、バリアフリー | ||
| 取引態様 | 一般 | ||
| 備考 | 【教育】 神田小学校 約500m 徒歩約7分 東中学校 約800m 徒歩約10分 【交通】 JR信越本線 北長岡駅 徒歩約17分 越後交通バス 石内1丁目 徒歩約4分 【備考】 ※消雪使用料:18,000円/年 -物件情報- ■全居室収納やリビング収納あり ■屋外アイテムなどの収納に便利な2帖の土間収納 ■2階に物干しスペースがあり、雨の日のお洗濯も安心 ■火を使わない安心安全なオール電化 ■コンビニ・薬局が徒歩3分圏内 ■スーパーや小中学校まで徒歩10分圏内 |
||
| 情報登録日 | 2026/01/09 | 次回更新予定日 | 2026/02/16 |
| 取引条件有効期限 | 2026/12/31 | ||
|
|
|
|
| TEL: | 0258-89-8245 |
|---|---|
| 所在地: | 新潟県長岡市台町1-7-331階 |
| 交通: | 長岡駅 |
| 営業時間: | 9:00~18:00/定休日:なし |
| 免許番号: | 新潟県知事(3)第5151号 |
| 所属団体名: | 公社 新潟県宅地建物取引協会 新潟支部 |
| 取引態様: | 一般 |