| ■住宅設備はPanasonicで統一 ■家族でバーベキューが楽しめる、アウトドアリビング ■2階ホールには書斎やサンルームあり ■各居室に収納完備 ■屋外アイテムなどの収納に便利な土間収納あり ■火を使わない安心安全なオール電化 ■スーパー・コンビニ・薬局が徒歩9分圏内 ■アクロスプラザ長岡まで徒歩5分 | |||
| 物件コード | 00239-200528 | ||
|---|---|---|---|
| 物件名 | (新築住宅)長岡市川崎1丁目 | ||
| 交通 | 駅:上越新幹線 長岡駅から徒歩19分、バス:川崎南から徒歩2分 | ||
| 物件所在地 | 新潟県長岡市川崎1丁目2664-3付近 | ||
| 物件種別 | 新築一戸建て | ||
| 構造 | 木造 | 階建 | 地上2階建 |
| 建ぺい率/容積率 | 60%/100% | ||
| 建物面積 | 計 94.39㎡ /28.55坪 | ||
| 土地面積 | 226.78㎡ /68.6坪 | ||
| 築年月 | 2024年8月(築1年) | ||
| 入居時期 | 随時入居(引き渡し)可 | ||
| 用途地域 | 第1種低層住居専用地域 | 地目 | 宅地 |
| 都市計画 | 市街化区域 | 学校区 | 川崎小学校(1,000m)・東北中学校(1,200m) |
| 形状 | - | 道路 | 東側16m市道、北側8.5m市道 |
| 私道 | - | ||
| 所在階/階数 | - | 号室 | - |
|---|---|---|---|
| 販売価格 | 35,500,000円 | 方位 | 南東 |
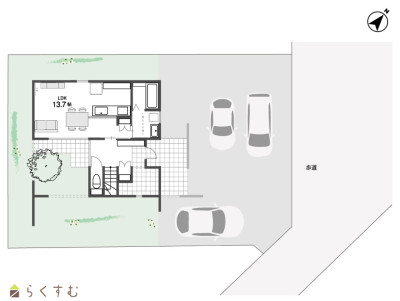
| 間取り |
3LDK (洋室:6.5、5.6、5.6) LDK13.7 |
||
| 専有面積 | - | バルコニー面積 | - |
| その他面積 | - | 駐車場 | - |
| 管理費 | - | 修繕積立金 | - |
| 現況 | 空家 | ||
| 仲介手数料 | 1,237,500円 | ||
| 利用制限 | - | ||
| 設備 | 角地、前面道路6m以上、日当り良好、閑静な住宅街、スーパー近く、BELS/省エネ基準適合認定建物、フラット35S適合、全室フローリング、天井高2.5m以上、駐車場3台以上、庭あり、TVインターホン、複層ガラス、システムキッチン、カウンターキッチン、IHクッキングヒーター、食器洗浄乾燥機、3口コンロ、追いだき機能付き、バス1坪以上、浴室TV、温水洗浄便座、シャワー付き洗面台、エアコン、24時間換気システム、オール電化、省エネ給湯、高気密高断熱住宅、ウッドデッキ・テラス、上水道、下水道、電気、ウォークインクローゼット、全居室収納あり、床下収納、シューズインクローゼット、シューズBOX、照明器具付き、即引き渡し可能、バリアフリー | ||
| 取引態様 | 一般 | ||
| 備考 | 【教育】 川崎小学校 約1000m 徒歩約13分 東北中学校 約1200m 徒歩約15分 【交通】 JR上越新幹線 長岡駅 徒歩約19分 越後交通バス 川崎南 徒歩約2分 【備考】 ※水道加入金:23,800円/一括 |
||
| 情報登録日 | 2026/04/28 | 次回更新予定日 | 2026/05/13 |
| 取引条件有効期限 | 2026/12/31 | ||
|
|
|
|
| TEL: | 0258-89-8245 |
|---|---|
| 所在地: | 新潟県長岡市台町1-7-331階 |
| 交通: | 長岡駅 |
| 営業時間: | 9:00~18:00/定休日:なし |
| 免許番号: | 新潟県知事(3)第5151号 |
| 所属団体名: | 公社 新潟県宅地建物取引協会 新潟支部 |
| 取引態様: | 一般 |