| 物件コード | 00227-200068 | ||
|---|---|---|---|
| 物件名 | 北条売り物件 | ||
| 交通 | 駅:信越線 北条駅から徒歩3分、バス:北条駅から徒歩3分 | ||
| 物件所在地 | 新潟県柏崎市北条1260-1 他 | ||
| 物件種別 | 中古一戸建て | ||
| 構造 | 木造 | 階建 | 地上2階建 |
| 建ぺい率/容積率 | - | ||
| 建物面積 | 1階 167.99㎡/ 2階 160.07㎡/ 計 328.64㎡ /99.41坪 | ||
| 土地面積 | 819㎡ /247.74坪 | ||
| 築年月 | 1968年11月(築57年) | ||
| 入居時期 | 随時入居(引き渡し)可 | ||
| 用途地域 | 用途の指定のない地域 | 地目 | 宅地・田 (現状:宅地) |
| 都市計画 | 都市計画区域外 | 学校区 | 北条小学校(818m)・北条中学校(910m) |
| 形状 | - | 道路 | 柏崎市道 |
| 私道 | - | ||
| 所在階/階数 | - | 号室 | - |
|---|---|---|---|
| 販売価格 | 3,000,000円 | 方位 | 南 |
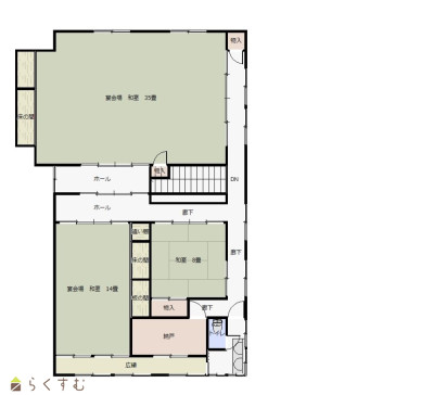
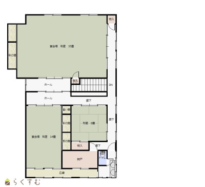
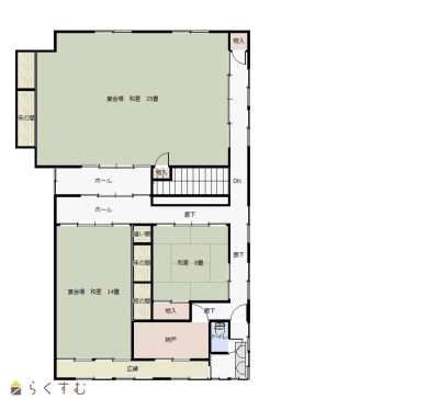
| 間取り |
6DK 敷地内建物2棟 (①店舗・居宅 ②居宅) |
||
| 専有面積 | - | バルコニー面積 | - |
| その他面積 | - | 駐車場 | - |
| 管理費 | - | 修繕積立金 | - |
| 現況 | 空家 | ||
| 仲介手数料 | 154,000円 | ||
| 利用制限 | - | ||
| 設備 | 駐車3台以上可能、システムキッチン、バス1坪以上、トイレ2か所以上、都市ガス、上水道、下水道、即引き渡し可能、別荘、田舎暮らし、事業向け | ||
| 取引態様 | 一般 | ||
| 備考 | 敷地内に建物が2棟あります。 ①店舗・居宅 延べ面積328.64㎡ 仕出し・宴会場、居宅として以前使用 S.43新築 ②居宅 延べ面積110.12㎡ S.52新築 *建物内残物は売主において処分します。 |
||
| 情報登録日 | 2024/01/10 | 次回更新予定日 | 2026/04/12 |
| 取引条件有効期限 | 2024/04/10 | ||
|
|
|
|
| TEL: | 0257-41-6381 |
|---|---|
| 所在地: | 新潟県柏崎市土合615番地 |
| 交通: | |
| 営業時間: | 8:30~17:30/定休日:土日年末年始・夏季など |
| 免許番号: | 新潟県知事(2)第5472号 |
| 所属団体名: | 公社新潟県宅地建物取引業協会 柏崎支部 |
| 取引態様: | 一般 |