| 吹き抜け、ファミリークローク、ランドリースペース、ヌック、書斎 快適スペース盛りだくさん!! | |||
| 物件コード | 00214-200073 | ||
|---|---|---|---|
| 物件名 | 永田3丁目 3LDK+ランドリースペース+書斎 | ||
| 交通 | 駅:信越線 北長岡駅から徒歩18分、バス:中越高校前から徒歩4分 | ||
| 物件所在地 | 新潟県長岡市永田3丁目1435-4 | ||
| 物件種別 | 新築一戸建て | ||
| 構造 | 木造 | 階建 | 地上2階建 |
| 建ぺい率/容積率 | 50%/80% | ||
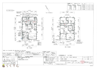
| 建物面積 | 1階 61.27㎡/ 2階 52.58㎡/ 計 113.85㎡ /34.43坪 | ||
| 土地面積 | 196.63㎡ /59.48坪 | ||
| 築年月 | 2026年6月完成予定 | ||
| 入居時期 | 内覧会後 | ||
| 用途地域 | 第1種低層住居専用地域 | 地目 | 宅地 (現状:宅地) |
| 都市計画 | - | 学校区 | 富曾亀小学校(247m)・東北中学校(1,065m) |
| 形状 | 間口 8.9m × 奥行 22.56m | 道路 | 市道 |
| 私道 | - | ||
| 所在階/階数 | - | 号室 | - |
|---|---|---|---|
| 販売価格 | 34,700,000円 | 方位 | 南西 |
| 間取り |
3LDK (洋室:4.5、4.5、8) LDK19.5帖 |
||
| 専有面積 | - | バルコニー面積 | - |
| その他面積 | - | 駐車場 | - |
| 管理費 | - | 修繕積立金 | - |
| 現況 | 指定なし | ||
| 仲介手数料 | なし | ||
| 利用制限 | - | ||
| 設備 | 整形地、前面道路6m以上、日当り良好、閑静な住宅街、スーパー近く、建物確認・完了検査済証あり、LDK15畳以上、駐車場2台以上、南向き、TVインターホン、複層ガラス、システムキッチン、カウンターキッチン、IHクッキングヒーター、食器洗浄乾燥機、3口コンロ、追いだき機能付き、バス1坪以上、温水洗浄便座、シャワー付き洗面台、エアコン、24時間換気システム、オール電化、省エネ給湯、高気密高断熱住宅、上水道、下水道、電気、ウォークインクローゼット、全居室収納あり、シューズBOX、照明器具付き、バリアフリー | ||
| 取引態様 | 売主 | ||
| 備考 | 全館空調で冬も夏も快適に過ごせます! 原信新保店様まで徒歩8分、ドラッグトップスまで徒歩8分、医療施設、飲食店も徒歩圏内! 是非お気軽にお問合せください。 担当 佐藤(さとう)080-7112-0169 |
||
| 情報登録日 | 2026/04/14 | 次回更新予定日 | 2026/04/29 |
| 取引条件有効期限 | 2026/12/12 | ||
|
|
|
|
| TEL: | 0258-28-7880 |
|---|---|
| 所在地: | 新潟県長岡市古正寺3丁目10番地1 |
| 交通: | |
| 営業時間: | 8:30~17:30/定休日:祝祭日・年末年始・お盆 |
| 免許番号: | 国土交通大臣(1)第10420号 |
| 所属団体名: | 公社新潟県宅地建物取引協会 長岡支部 |
| 取引態様: | 売主 |