| 全館空調シェアNo.1★Z空調★ | |||
| 物件コード | 00214-200057 | ||
|---|---|---|---|
| 物件名 | 柏崎市柳田町33坪3LDK+ソーラーパネル 2980万円 | ||
| 交通 | 駅:越後線 西中通駅から徒歩25分、バス:瑞穂中学校入口から徒歩3分 | ||
| 物件所在地 | 新潟県柏崎市柳田町7-21-3 | ||
| 物件種別 | 新築一戸建て | ||
| 構造 | 木造 | 階建 | 地上2階建 |
| 建ぺい率/容積率 | 80%/200% | ||
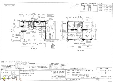
| 建物面積 | 1階 56.31㎡/ 2階 55.69㎡/ 計 112㎡ /33.88坪 | ||
| 土地面積 | 193.11㎡ /58.41坪 | ||
| 築年月 | 2024年4月(築1年) | ||
| 入居時期 | 随時入居(引き渡し)可 | ||
| 用途地域 | 近隣商業地域 | 地目 | 宅地 (現状:宅地) |
| 都市計画 | - | 学校区 | 槇原小学校(466m)・瑞穂中学校(196m) |
| 形状 | 間口 10m × 奥行 19m | 道路 | 位置指定道路 |
| 私道 | - | ||
| 所在階/階数 | - | 号室 | - |
|---|---|---|---|
| 販売価格 | 29,800,000円 | 方位 | 西 |
| 間取り |
3LDK (洋室:8、6、6) LDK20帖 |
||
| 専有面積 | - | バルコニー面積 | - |
| その他面積 | - | 駐車場 | - |
| 管理費 | - | 修繕積立金 | - |
| 現況 | 指定なし | ||
| 仲介手数料 | なし | ||
| 利用制限 | - | ||
| 設備 | 整形地、前面道路6m以上、日当り良好、閑静な住宅街、スーパー近く、BELS/省エネ基準適合認定建物、瑕疵担保保険付き、建物確認・完了検査済証あり、フラット35S適合、LDK15畳以上、駐車場2台以上、TVインターホン、複層ガラス、システムキッチン、IHクッキングヒーター、食器洗浄乾燥機、3口コンロ、追いだき機能付き、バス1坪以上、温水洗浄便座、シャワー付き洗面台、エアコン、24時間換気システム、全室エアコン、オール電化、太陽光発電システム、省エネ給湯、高気密高断熱住宅、ウッドデッキ・テラス、上水道、下水道、電気、ウォークインクローゼット、全居室収納あり、シューズBOX、照明器具付き、即引き渡し可能、バリアフリー | ||
| 取引態様 | 売主 | ||
| 備考 | 旧価格3180万円→新価格2980万円 玄関を開けてすぐ、徒歩1分100mにスーパー、ホームセンターがあり、日頃のお買い物も楽々♪槇原小学校まで1400m徒歩17分、瑞穂中学校400m徒歩5分。国道8号線へ車で30秒!5.55KWのソーラーパネル搭載!!電気代超お得♪ 1階にも内干しスペースがありお洗濯も楽々。 タタミコーナー、2階納戸有り!! 毎日楽しく楽々快適に過ごせます!! ご見学のご予約は下記担当者へお気軽にご連絡ください! 担当 さとう 080-7112-0169 |
||
| 情報登録日 | 2025/09/07 | 次回更新予定日 | 2026/01/02 |
| 取引条件有効期限 | 2024/10/31 | ||
|
|
|
|
| TEL: | 0258-28-7880 |
|---|---|
| 所在地: | 新潟県長岡市古正寺3丁目10番地1 |
| 交通: | |
| 営業時間: | 8:30~17:30/定休日:祝祭日・年末年始・お盆 |
| 免許番号: | 国土交通大臣(1)第10420号 |
| 所属団体名: | 公社新潟県宅地建物取引協会 長岡支部 |
| 取引態様: | 売主 |