| 日当たりが良く広々とした20帖のLDKをご体感ください。 | |||
| 物件コード | 00189-200043 | ||
|---|---|---|---|
| 物件名 | 金町新築住宅 | ||
| 交通 | 駅:信越線 押切駅から徒歩152分、バス:栃尾車庫前から徒歩5分 | ||
| 物件所在地 | 新潟県長岡市金町1丁目4 | ||
| 物件種別 | 新築一戸建て | ||
| 構造 | 木造 | 階建 | 地上2階建 |
| 建ぺい率/容積率 | 60%/200% | ||
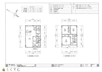
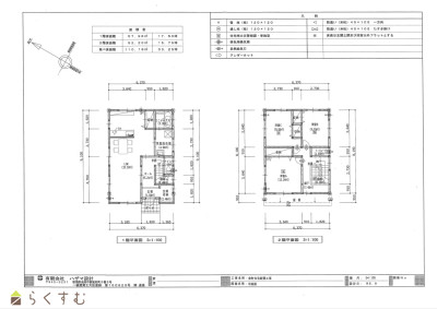
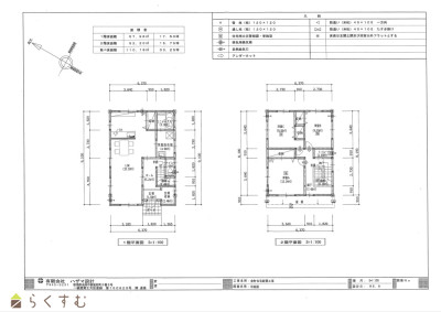
| 建物面積 | 1階 57.96㎡/ 2階 52.2㎡/ 計 110.16㎡ /33.32坪 | ||
| 土地面積 | 199.53㎡ /60.35坪 | ||
| 築年月 | 2024年11月(築1年) | ||
| 入居時期 | 相談 | ||
| 用途地域 | 第2種住居地域 | 地目 | 宅地 |
| 都市計画 | 市街化区域 | 学校区 | 栃尾東小学校(568m)・刈谷田中学校(1,343m) |
| 形状 | 間口 12m × 奥行 16.5m | 道路 | 公道 |
| 私道 | - | ||
| 所在階/階数 | - | 号室 | - |
|---|---|---|---|
| 販売価格 | 28,000,000円 | 方位 | 南西 |
| 間取り |
3LDK (洋室:8、6、6) LDK20 |
||
| 専有面積 | - | バルコニー面積 | - |
| その他面積 | - | 駐車場 | - |
| 管理費 | - | 修繕積立金 | - |
| 現況 | 空家 | ||
| 仲介手数料 | 990,000円 | ||
| 利用制限 | - | ||
| 設備 | 角地、整形地、前面道路6m以上、日当り良好、閑静な住宅街、BELS/省エネ基準適合認定建物、LDK15畳以上、駐車場2台以上、TVインターホン、複層ガラス、ディンプルキー、システムキッチン、IHクッキングヒーター、食器洗浄乾燥機、3口コンロ、追いだき機能付き、浴室暖房乾燥機、バス1坪以上、温水洗浄便座、シャワー付き洗面台、エアコン、オール電化、省エネ給湯、上水道、下水道、電気、全居室収納あり、シューズインクローゼット、BS端子、照明器具付き、即引き渡し可能 | ||
| 取引態様 | 売主 | ||
| 備考 | BELS/ZEHオリエンテッド取得物件です。 | ||
| 情報登録日 | 2025/01/12 | 次回更新予定日 | 2026/05/22 |
| 取引条件有効期限 | 2025/03/31 | ||
|
|
|
|
|
| TEL: | 0258-53-2552 |
|---|---|
| 所在地: | 新潟県長岡市新栄町3-4-3 |
| 交通: | |
| 営業時間: | 9:00~18:00/定休日:水曜日 |
| 免許番号: | 新潟県知事(5)第4082号 |
| 所属団体名: | 公社 新潟県宅地建物取引業協会 長岡支部 |
| 取引態様: | 売主 |