| 物件コード | 00178-200021 | ||
|---|---|---|---|
| 物件名 | リセスホナミ | ||
| 交通 | 駅:越後線 柏崎駅から徒歩9分 | ||
| 物件所在地 | 新潟県柏崎市穂波町4番15号 | ||
| 物件種別 | 投資物件・その他 | ||
| 物件区分 | 1棟売りマンション・アパート | ||
| 構造 | 鉄筋コン | 階建 | 地上7階建 | 
| 建ぺい率/容積率 | 60%/200% | ||
| 建物面積 | 1階 222.04㎡/ 2階 271.22㎡/ 3階 271.22㎡/ 4階 271.22㎡/ 計 1,849.36㎡ /559.43坪 | ||
| 土地面積 | 1,530.39㎡ /462.94坪 | ||
| 築年月 | 1990年3月(築35年) | ||
| 入居時期 | 相談 | ||
| 用途地域 | 第1種中高層住居専用地域 | 地目 | 宅地 (現状:宅地) | 
| 都市計画 | 非線引き都市計画区域 | 学校区 | 枇杷島小学校(410m)・鏡が沖中学校(668m) | 
| 形状 | 間口 37m × 奥行 53m | 道路 | 柏崎7-143号線 | 
| 私道 | - | ||
| 所在階/階数 | 1階/7階 | 号室 | - | 
|---|---|---|---|
| 販売価格 | 220,000,000円 | 方位 | - | 
| 表面利回り (満室想定時)  | 
						11.39% | 満室想定年収 | 25,068,000円 (想定月収: 2,089,000円 ) | 
| 現行利回り | 10.31% | 現行年間年収 | 22,692,000円 | 
| 住戸数 | 45 | ||
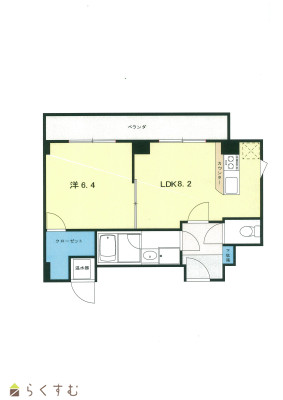
| 間取り | 1K、1LDK、2Kその他 | ||
| 専有面積 | 18.72㎡ /5.66坪 ~ 49.65㎡ /15.01坪 | バルコニー面積 | - | 
| その他面積 | - | 駐車場 | 敷地内 | 
| 管理費 | - | 修繕積立金 | - | 
| 現況 | 賃貸中 | ||
| 仲介手数料 | 7,326,000円 | ||
| 利用制限 | - | ||
| 設備 | エレベーター、駐車場(近隣含む)、公営水道、下水道、高利回り物件 | ||
| 取引態様 | 一般 | ||
| 備考 | - | ||
| 情報登録日 | 2025/09/05 | 次回更新予定日 | 2025/11/18 | 
| 取引条件有効期限 | 2025/12/31 | ||
							 
						 | 
						
							 
						 | 
					
| 
							 | 
						
							 | 
					
| TEL: | 0257-41-5077 | 
|---|---|
| 所在地: | 新潟県柏崎市西港町4番19号 | 
| 交通: | 柏崎駅 | 
| 営業時間: | 10:00~18:00土日は10:00~17:00/定休日:水曜日・祝日 | 
| 免許番号: | 新潟県知事(2)第5342号 | 
| 所属団体名: | 公社 宅地建物取引協会 柏崎支部 | 
| 取引態様: | 一般 |