| 物件コード | 00154-200726 | ||
|---|---|---|---|
| 物件名 | 長岡市今井2丁目 建売住宅 | ||
| 交通 | 駅:信越線 宮内駅から徒歩19分、バス:今宮橋から徒歩5分 | ||
| 物件所在地 | 新潟県長岡市今井2丁目187番2 | ||
| 物件種別 | 新築一戸建て | ||
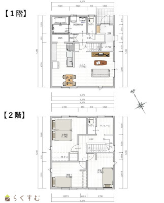
| 構造 | 木造 | 階建 | 地上2階建 |
| 建ぺい率/容積率 | 50%/80% | ||
| 建物面積 | 1階 44.71㎡/ 2階 46.37㎡/ 計 91.08㎡ /27.55坪 | ||
| 土地面積 | 150.44㎡ /45.5坪 | ||
| 築年月 | 2023年12月(築1年) | ||
| 入居時期 | 随時入居(引き渡し)可 | ||
| 用途地域 | 第1種低層住居専用地域 | 地目 | 宅地 |
| 都市計画 | 市街化区域 | 学校区 | 宮内小学校(1,300m)・宮内中学校(1,300m) |
| 形状 | 間口 10.50m | 道路 | 公道 北東 幅員6.0m |
| 私道 | - | ||
| 所在階/階数 | - | 号室 | - |
|---|---|---|---|
| 販売価格 | 22,550,000円 | 方位 | - |
| 間取り | 3LDK | ||
| 専有面積 | - | バルコニー面積 | - |
| その他面積 | - | 駐車場 | - |
| 管理費 | - | 修繕積立金 | - |
| 現況 | 空家 | ||
| 仲介手数料 | 810,150円 | ||
| 利用制限 | - | ||
| 設備 | 前面道路6m以上、閑静な住宅街、スーパー近く、LDK15畳以上、駐車場2台以上、システムキッチン、IHクッキングヒーター、追いだき機能付き、バス1坪以上、温水洗浄便座、シャワー付き洗面台、オール電化、上水道、下水道、電気、シューズインクローゼット、即引き渡し可能 | ||
| 取引態様 | 一般 | ||
| 備考 | 建築確認番号 NK第23本01017号 キッチン以外のコンセントは全て3口コンセントです。 全居室にテレビコンセントが併設しています。 屋内で郵便を受取れる埋込式ポストを採用しています。 【その他費用】 消雪組合加入金:104,000円/一括 消雪組合年会費:5,000円/年 |
||
| 情報登録日 | 2025/10/20 | 次回更新予定日 | 2025/11/16 |
| 取引条件有効期限 | 2025/10/31 | ||
|
|
|
|
| TEL: | 0120-228-815 |
|---|---|
| 所在地: | 新潟県長岡市神田町2-1-2 |
| 交通: | 長岡駅 |
| 営業時間: | 10:00~18:00/定休日:無休 |
| 免許番号: | 国土交通大臣(2)第9588号 |
| 所属団体名: | 全日本不動産協会 新潟県本部 |
| 取引態様: | 一般 |