| 西側 田園風景 | |||
| 物件コード | 00125-200105 | ||
|---|---|---|---|
| 物件名 | 中之島 高床中古住宅 | ||
| 交通 | 駅:信越線 見附駅から徒歩39分、バス:中之島支所前から徒歩4分 | ||
| 物件所在地 | 新潟県長岡市中之島565-97 | ||
| 物件種別 | 中古一戸建て | ||
| 構造 | 木造鉄筋コン | 階建 | 地上2階建 |
| 建ぺい率/容積率 | 60%/200% | ||
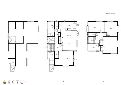
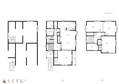
| 建物面積 | 1階 69.56㎡/ 2階 69.56㎡/ 3階 55.21㎡/ 計 194.33㎡ /58.78坪 | ||
| 土地面積 | 267.54㎡ /80.93坪 | ||
| 築年月 | 1995年3月(築31年) | ||
| 入居時期 | 相談 | ||
| 用途地域 | 第1種住居地域 | 地目 | 宅地 (現状:既存建物有) |
| 都市計画 | 市街化区域 | 学校区 | 中之島中央小学校(657m)・中之島中学校(1,438m) |
| 形状 | 間口 11m × 奥行 22m | 道路 | 長岡市道/消雪道路 |
| 私道 | - | ||
| 所在階/階数 | - | 号室 | - |
|---|---|---|---|
| 販売価格 | 19,800,000円 | 方位 | 西 |
| 間取り |
5LDK (和室:8畳、8畳) (洋室:7、7、3) LDK17.6 高床ならではの圧倒的な収納力。季節用品やアウトドアグッズ、家族の思い出の品まで、スッキリと収められる |
||
| 専有面積 | - | バルコニー面積 | - |
| その他面積 | - | 駐車場 | - |
| 管理費 | - | 修繕積立金 | - |
| 現況 | 居住中 | ||
| 仲介手数料 | 719,400円 | ||
| 利用制限 | - | ||
| 設備 | 日当り良好、閑静な住宅街、スーパー近く、LDK15帖以上、駐車3台以上可能、TVインターホン、システムキッチン、カウンターキッチン、3口コンロ、追いだき機能付き、バス1坪以上、温水洗浄便座、トイレ2か所以上、都市ガス、上水道、下水道、外装リフォーム済み | ||
| 取引態様 | 一般 | ||
| 備考 | ◆外壁と屋根を同時に塗装→2011年◆1Fの和室の壁の断熱材を入れるリフォーム工事→2019年◆1Fの和室にエアコン入れ替え→2019年◆リビングのエアコン入れ替え→2023年◆ 洗面台を入れ替え工事→2022年◆ガスレンジ台を入れ替え工事→2024年◆ |
||
| 情報登録日 | 2026/02/25 | 次回更新予定日 | 2026/05/22 |
| 取引条件有効期限 | 2026/03/31 | ||
|
|
|
|
| TEL: | 0258-39-2919 |
|---|---|
| 所在地: | 新潟県長岡市摂田屋5-6-22 |
| 交通: | 信越線〔宮内駅〕徒歩13分 |
| 営業時間: | 8:30~17:30/定休日:隔週土曜・日曜日・祝/会社カレンダーによる |
| 免許番号: | 新潟県知事(8)第3591号 |
| 所属団体名: | 新潟県宅地建物取引業協会 長岡支部 |
| 取引態様: | 一般 |