| 平屋の中古戸建です。★現在賃貸(入居)中。 | |||
| 物件コード | 00125-200060 | ||
|---|---|---|---|
| 物件名 | 青葉台4平屋建(中古) | ||
| 交通 | バス:青葉台2丁目から徒歩2分 | ||
| 物件所在地 | 新潟県長岡市青葉台4丁目14番5 | ||
| 物件種別 | 中古一戸建て | ||
| 構造 | 木造 | 階建 | 地上1階建 | 
| 建ぺい率/容積率 | 60%/200% | ||
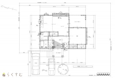
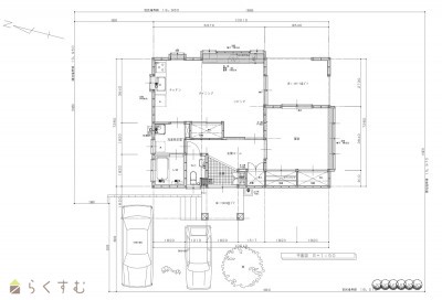
| 建物面積 | 1階 64.02㎡/ 計 64.02㎡ /19.36坪 | ||
| 土地面積 | 309.73㎡ /93.69坪 | ||
| 築年月 | 2000年4月(築25年) | ||
| 入居時期 | 相談 | ||
| 用途地域 | 第1種住居地域 | 地目 | 宅地 (現状:建物あり) | 
| 都市計画 | 市街化区域 | 学校区 | 青葉台小学校(168m)・青葉台中学校(706m) | 
| 形状 | 間口 18m | 道路 | 長岡市道/幅員8.0m/消雪あり | 
| 私道 | - | ||
| 所在階/階数 | - | 号室 | - | 
|---|---|---|---|
| 販売価格 | 15,000,000円 | 方位 | 指定なし | 
| 間取り | 
													1LDK (洋室:8.0) LDK14.5  | 
					||
| 専有面積 | - | バルコニー面積 | - | 
| その他面積 | 9㎡ /2.72坪 テラス | 駐車場 | - | 
| 管理費 | - | 修繕積立金 | - | 
| 現況 | 居住中 | ||
| 仲介手数料 | 561,000円 | ||
| 利用制限 | - | ||
| 設備 | 高台に立地、日当り良好、閑静な住宅街、新築時図面あり、全室フローリング、駐車2台可能、追いだき機能付き、温水洗浄便座、エアコンあり、ウッドデッキ・テラス、都市ガス、上水道、下水道、別荘、田舎暮らし | ||
| 取引態様 | 一般 | ||
| 備考 | 現在「賃貸物件」賃貸(入居)中のため内覧はできません。町内会費・消雪組合年間費(¥20,000/年)の負担あり。 | ||
| 情報登録日 | 2024/02/22 | 次回更新予定日 | 2025/11/18 | 
| 取引条件有効期限 | 2024/12/31 | ||
							 
						 | 
						
							 
						 | 
					
							 
						 | 
						
							 
						 | 
					
| TEL: | 0258-39-2919 | 
|---|---|
| 所在地: | 新潟県長岡市摂田屋5-6-22 | 
| 交通: | 信越線〔宮内駅〕徒歩13分 | 
| 営業時間: | 8:30~17:30/定休日:隔週土曜・日曜日・祝/会社カレンダーによる | 
| 免許番号: | 新潟県知事(8)第3591号 | 
| 所属団体名: | 新潟県宅地建物取引業協会 長岡支部 | 
| 取引態様: | 一般 |