| LDKとつながる1部屋がある4LDK、お子様が小さいときはお昼寝や遊び場スペースとして広々過ごせます! | |||
| 物件コード | 00101-200404 | ||
|---|---|---|---|
| 物件名 | 花園 新築建売住宅 豊田小学校区 | ||
| 交通 | 駅:信越線 長岡駅から徒歩24分、バス:花園団地入口から徒歩1分 | ||
| 物件所在地 | 新潟県長岡市花園3丁目10番15 | ||
| 物件種別 | 新築一戸建て | ||
| 構造 | 木造 | 階建 | 地上2階建 |
| 建ぺい率/容積率 | 50%/100% | ||
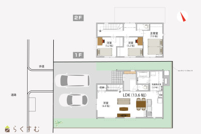
| 建物面積 | 1階 51.34㎡/ 2階 41.4㎡/ 計 92.74㎡ /28.05坪 | ||
| 土地面積 | 145.96㎡ /44.15坪 | ||
| 築年月 | 2025年11月(築5ヶ月) | ||
| 入居時期 | 2026年2月入居 | ||
| 用途地域 | 第1種低層住居専用地域 | 地目 | 宅地 (現状:宅地) |
| 都市計画 | 市街化区域 | 学校区 | 豊田小学校(1,000m)・旭岡中学校(950m) |
| 形状 | 間口 8.9m × 奥行 16.2m | 道路 | 西側 市道 16m |
| 私道 | - | ||
| 所在階/階数 | - | 号室 | - |
|---|---|---|---|
| 販売価格 | 28,800,000円 | 方位 | 西 |
| 間取り |
4LDK (洋室:7、6、5.2、5.2) LDK13.6帖 |
||
| 専有面積 | - | バルコニー面積 | - |
| その他面積 | 洗面室3帖 | 駐車場 | - |
| 管理費 | - | 修繕積立金 | - |
| 現況 | 空家 | ||
| 仲介手数料 | なし | ||
| 利用制限 | - | ||
| 設備 | 整形地、前面道路6m以上、日当り良好、閑静な住宅街、スーパー近く、BELS/省エネ基準適合認定建物、瑕疵担保保険付き、建物確認・完了検査済証あり、フラット35S適合、全室フローリング、駐車場2台以上、TVインターホン、複層ガラス、ディンプルキー、システムキッチン、カウンターキッチン、IHクッキングヒーター、追いだき機能付き、バス1坪以上、温水洗浄便座、シャワー付き洗面台、エアコン、24時間換気システム、オール電化、省エネ給湯、上水道、下水道、電気、全居室収納あり、シューズBOX、照明器具付き | ||
| 取引態様 | 売主 | ||
| 備考 | ↓ おすすめポイント ↓ 安心のご契約! ~ニコニコ住宅の建物価格について~ 表示価格には、 「土地」「建物」 「瑕疵担保責任保険」 「長期保証」「クリーニング費用」 「建物内の展示物撤収費用」 がきちんと含まれますのでご安心ください。 子育て世帯にうれしい、便利で安心な立地が魅力です。 ■豊田小学校 徒歩13分 ■旭岡中学校 徒歩12分 ■花園団地入口バス停 徒歩1分 ■マルイ長岡学校町店 徒歩7分 ■原信花園店 徒歩9分 ■長岡駅 車5分 毎日の通学やお買い物が徒歩圏内で! 国道へのアクセスも良好なので、休日のお出かけにも便利な立地です♪ リビングにつながる6帖の空間。 お子さまが小さいうちは、お昼寝や遊びスペースにぴったり! キッチンやリビングから見守れるので、安心してのびのびと過ごせます。 将来的に来客時は仕切って客間にも、ご夫婦の寝室としても♪ 暮らしの変化に合わせて、ずっと使いやすい場所に。 建売とは思えない! 手厚いアフターサービスが自慢の家 最長60年長期保証の家: 地盤・基礎・構造・雨漏りは基本保証20年 メンテナンス実施で最長60年 設備保証10年: ユニットバス・システムキッチン・給湯設備・多機能便座 無料点検:10年間で4回実施 緊急駆けつけサービス:24時間365日10年間 建築確認番号 第R07-0520号 |
||
| 情報登録日 | 2025/12/20 | 次回更新予定日 | 2026/05/13 |
| 取引条件有効期限 | 2026/12/31 | ||
|
|
|
|
| TEL: | 0258-24-1110 |
|---|---|
| 所在地: | 新潟県長岡市宝4丁目2番地25 |
| 交通: | 「宝4丁目」バス停より徒歩2分 |
| 営業時間: | 8:30 ~ 17:30/定休日:土曜・日曜・祝日 |
| 免許番号: | 新潟県知事(13)1619号 |
| 所属団体名: | 新潟県宅地建物取引業協会 長岡支部 |
| 取引態様: | 売主 |