| 物件コード | 00095-200077 | ||
|---|---|---|---|
| 物件名 | 比角1丁目 中古住宅 | ||
| 交通 | 駅:越後線 東柏崎駅から徒歩6分、バス:リケン前から徒歩6分 | ||
| 物件所在地 | 新潟県柏崎市比角1丁目 7-11 | ||
| 物件種別 | 中古一戸建て | ||
| 構造 | 木造 | 階建 | 地上2階建 |
| 建ぺい率/容積率 | 60%/200% | ||
| 建物面積 | 1階 96.05㎡/ 2階 44.71㎡/ 計 140.76㎡ /42.57坪 | ||
| 土地面積 | 414.62㎡ /125.42坪 | ||
| 築年月 | 1998年6月(築27年) | ||
| 入居時期 | 随時入居(引き渡し)可 | ||
| 用途地域 | 準工業地域 | 地目 | 宅地・雑種地 (現状:宅地) |
| 都市計画 | 非線引き都市計画区域 | 学校区 | 比角小学校(683m)・第二中学校(304m) |
| 形状 | - | 道路 | - |
| 私道 | - | ||
| 所在階/階数 | - | 号室 | - |
|---|---|---|---|
| 販売価格 | 8,000,000円 | 方位 | 南 |
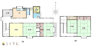
| 間取り |
5DK (和室:8畳、6畳、6畳、8畳) (洋室:8) 6DK 敷地は建築基準法 第42条の道路に接道していません(再建築不可) |
||
| 専有面積 | - | バルコニー面積 | - |
| その他面積 | - | 駐車場 | - |
| 管理費 | - | 修繕積立金 | - |
| 現況 | 空家 | ||
| 仲介手数料 | 330,000円 | ||
| 利用制限 | - | ||
| 設備 | 日当り良好、閑静な住宅街、南向き、追いだき機能付き、バス1坪以上、エアコンあり、都市ガス、上水道、下水道、ウォークインクローゼット、BS端子、即引き渡し可能 | ||
| 取引態様 | 一般 | ||
| 備考 | - | ||
| 情報登録日 | 2025/11/29 | 次回更新予定日 | 2026/05/22 |
| 取引条件有効期限 | 2026/02/28 | ||
|
|
|
|
|
|
| TEL: | 0257-23-5000 |
|---|---|
| 所在地: | 新潟県柏崎市大久保2丁目3番2号 |
| 交通: | |
| 営業時間: | 9:00~18:00/定休日:日曜・祭日 |
| 免許番号: | 新潟県知事(2)第5275号 |
| 所属団体名: | 新潟県宅地建物取引業協会 柏崎支部 |
| 取引態様: | 一般 |