| 狭小地で豊かに暮らす、都市型住宅” | |||
| 物件コード | 00087-200087 | ||
|---|---|---|---|
| 物件名 | 女池モデルハウス | ||
| 交通 | 駅:上越新幹線 新潟駅から徒歩39分、バス:女池二丁目から徒歩7分 | ||
| 物件所在地 | 新潟県新潟市中央区女池3丁目9番4号10 | ||
| 物件種別 | 新築一戸建て | ||
| 構造 | 木造 | 階建 | 地上2階建 |
| 建ぺい率/容積率 | 60%/200% | ||
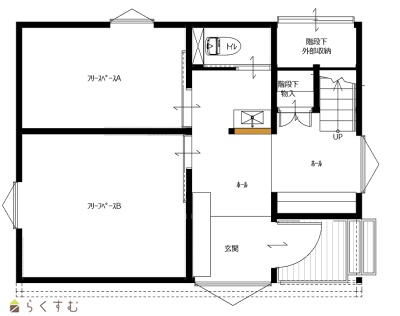
| 建物面積 | 1階 37.26㎡/ 2階 41.93㎡/ 計 79.19㎡ /23.95坪 | ||
| 土地面積 | 108.23㎡ /32.73坪 | ||
| 築年月 | 2026年2月(築2ヶ月) | ||
| 入居時期 | 相談 | ||
| 用途地域 | 第1種中高層住居専用地域 | 地目 | 宅地 |
| 都市計画 | 市街化区域 | 学校区 | 女池小学校(577m)・鳥屋野中学校(637m) |
| 形状 | 間口 14.56m × 奥行 7.5m | 道路 | 市道 |
| 私道 | - | ||
| 所在階/階数 | - | 号室 | - |
|---|---|---|---|
| 販売価格 | 39,800,000円 | 方位 | 南 |
| 間取り |
2LDK (洋室:7、5) LDK16.4 |
||
| 専有面積 | - | バルコニー面積 | - |
| その他面積 | 16.56㎡ /5坪 | 駐車場 | - |
| 管理費 | - | 修繕積立金 | - |
| 現況 | 空家 | ||
| 仲介手数料 | なし | ||
| 利用制限 | - | ||
| 設備 | 整形地、日当り良好、閑静な住宅街、スーパー近く、耐震構造、瑕疵担保保険付き、建物確認・完了検査済証あり、LDK15畳以上、全室フローリング、駐車場2台以上、南向き、TVインターホン、複層ガラス、ディンプルキー、システムキッチン、IHクッキングヒーター、食器洗浄乾燥機、追いだき機能付き、バス1坪以上、温水洗浄便座、シャワー付き洗面台、エアコン、24時間換気システム、省エネ給湯、高気密高断熱住宅、都市ガス、上水道、下水道、電気、シューズBOX、照明器具付き | ||
| 取引態様 | 売主 | ||
| 備考 | ・小屋裏収納 ・ガス衣類乾燥機乾太くん ・制震ダンパー ・1F、2Fトイレ. 洗面台 ・2台用アルミカーポート | ||
| 情報登録日 | 2026/04/09 | 次回更新予定日 | 2026/05/13 |
| 取引条件有効期限 | 2026/05/20 | ||
|
|
|
|
| TEL: | 0257-24-1172 |
|---|---|
| 所在地: | 新潟県柏崎市平井3378 |
| 交通: | |
| 営業時間: | 9:00~18:30/定休日:日曜・月曜 |
| 免許番号: | 新潟県知事(12)第2035号 |
| 所属団体名: | 新潟県宅地建物取引業協会 柏崎支部 |
| 取引態様: | 売主 |