| 高床住宅!敷地内に5台駐車可能! | |||
| 物件コード | 00085-200018 | ||
|---|---|---|---|
| 物件名 | 三条市中野原売り住宅 | ||
| 交通 | 駅:信越線 東三条駅から徒歩139分、バス:中野原(上)から徒歩2分 | ||
| 物件所在地 | 新潟県三条市中野原301番123 | ||
| 物件種別 | 中古一戸建て | ||
| 構造 | 木造鉄筋コン | 階建 | 地上3階建 |
| 建ぺい率/容積率 | 70%/200% | ||
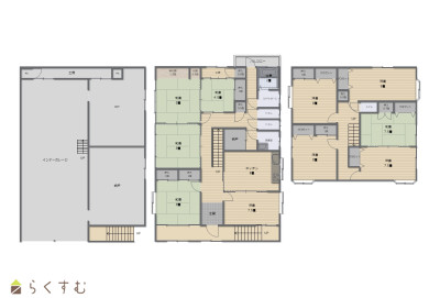
| 建物面積 | 1階 130.01㎡/ 2階 127.52㎡/ 3階 91.09㎡/ 計 348.62㎡ /105.45坪 | ||
| 土地面積 | 936.79㎡ /283.37坪 | ||
| 築年月 | 1993年3月(築32年) | ||
| 入居時期 | 相談 | ||
| 用途地域 | 無指定 | 地目 | 宅地 (現状:宅地) |
| 都市計画 | 都市計画区域外 | 学校区 | 笹岡小学校(349m)・下田中学校(1,749m) |
| 形状 | 間口 17.6m | 道路 | 市道 やまなみ線 |
| 私道 | - | ||
| 所在階/階数 | - | 号室 | - |
|---|---|---|---|
| 販売価格 | 13,400,000円 | 方位 | 南西 |
| 間取り |
10DK (和室:8.0畳、8.0畳、4.5畳、7.5畳、7.5畳) (洋室:8.0、7.0、8.5、8.0、9.0) DK8.75 |
||
| 専有面積 | - | バルコニー面積 | - |
| その他面積 | - | 駐車場 | - |
| 管理費 | - | 修繕積立金 | - |
| 現況 | 空家 | ||
| 仲介手数料 | 508,200円 | ||
| 利用制限 | - | ||
| 設備 | 日当り良好、駐車3台以上可能、南向き、IHクッキングヒーター、3口コンロ、追いだき機能付き、温水洗浄便座、トイレ2か所以上、エアコンあり、上水道、浄化槽、シューズBOX、内装リフォーム済み | ||
| 取引態様 | 専任 | ||
| 備考 | - | ||
| 情報登録日 | 2025/12/09 | 次回更新予定日 | 2026/01/02 |
| 取引条件有効期限 | 2025/11/26 | ||
|
|
|
|
|
|
| TEL: | 0257-24-1548 |
|---|---|
| 所在地: | 新潟県柏崎市半田2丁目7番5号エクシードA102 |
| 交通: | 柏崎駅 |
| 営業時間: | 9:00~17:00/定休日:日・祝 |
| 免許番号: | 新潟県知事(9)第3408号 |
| 所属団体名: | 柏越建設株式会社 |
| 取引態様: | 専任 |