| 2021年10月新築!オール電化の住宅です。 | |||
| 物件コード | 00082-200111 | ||
|---|---|---|---|
| 物件名 | 柏崎市半田2丁目中古住宅 | ||
| 交通 | 駅:信越線 茨目駅から徒歩12分、バス:半田西から徒歩3分 | ||
| 物件所在地 | 新潟県柏崎市半田2丁目27番17号 | ||
| 物件種別 | 中古一戸建て | ||
| 構造 | 木造 | 階建 | 地上2階建 | 
| 建ぺい率/容積率 | 70%/200% | ||
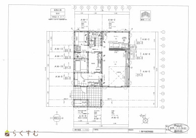
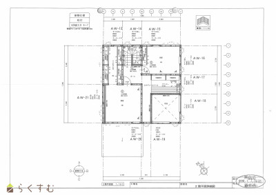
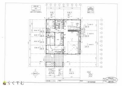
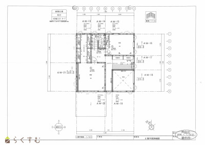
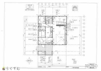
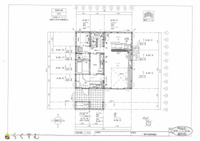
| 建物面積 | 1階 54.65㎡/ 2階 45.54㎡/ 計 100.19㎡ /30.3坪 | ||
| 土地面積 | 217.22㎡ /65.7坪 | ||
| 築年月 | 2021年10月(築4年) | ||
| 入居時期 | 相談 | ||
| 用途地域 | 用途の指定のない地域 | 地目 | 宅地 (現状:宅地) | 
| 都市計画 | 非線引き都市計画区域 | 学校区 | 半田小学校(511m)・鏡が沖中学校(1,677m) | 
| 形状 | 間口 13.11m × 奥行 16.45m | 道路 | 柏崎9-171号線 | 
| 私道 | - | ||
| 所在階/階数 | - | 号室 | - | 
|---|---|---|---|
| 販売価格 | 28,000,000円 | 方位 | 南東 | 
| 間取り | 2LDK | ||
| 専有面積 | - | バルコニー面積 | - | 
| その他面積 | - | 駐車場 | - | 
| 管理費 | - | 修繕積立金 | - | 
| 現況 | 居住中 | ||
| 仲介手数料 | 990,000円 | ||
| 利用制限 | - | ||
| 設備 | 閑静な住宅街、長期優良住宅、新築時図面あり、全室フローリング、築10年以内、駐車3台以上可能、南向き、TVインターホン、複層ガラス、システムキッチン、カウンターキッチン、IHクッキングヒーター、追いだき機能付き、バス1坪以上、温水洗浄便座、エアコンあり、オール電化、上水道、下水道、ウォークインクローゼット | ||
| 取引態様 | 一般 | ||
| 備考 | ・内見ご希望の際は事前にご連絡ください。 ・公簿面積売買、契約不適合責任免責  | 
					||
| 情報登録日 | 2023/08/03 | 次回更新予定日 | 2025/11/18 | 
| 取引条件有効期限 | 2024/08/03 | ||
| 
							 | 
						
							 
						 | 
					
							 
						 | 
						
							 | 
					
| TEL: | 0257-24-5506 | 
|---|---|
| 所在地: | 新潟県柏崎市新橋3番9号 | 
| 交通: | 柏崎駅 徒歩約9分(700m) | 
| 営業時間: | 8:30~17:30/定休日:土日祝日(3月は土曜も営業中!) | 
| 免許番号: | 国土交通大臣(12)第2870号 | 
| 所属団体名: | 新潟県宅地建物取引協会 柏崎支部 | 
| 取引態様: | 一般 |