| 物件コード | 00080-200354 | ||
|---|---|---|---|
| 物件名 | 【ミサワホームのスムストック】妙高市原通 | ||
| 交通 | 駅:妙高はねうまライン 関山駅から徒歩33分、バス:原通郵便局から徒歩2分 | ||
| 物件所在地 | 新潟県妙高市大字原通9番地 | ||
| 物件種別 | 中古一戸建て | ||
| 構造 | 木造鉄筋コン | 階建 | - |
| 建ぺい率/容積率 | - | ||
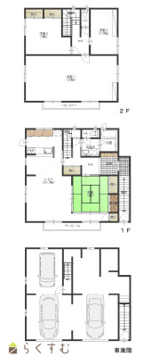
| 建物面積 | 1階 79.5㎡/ 2階 82.81㎡/ 3階 82.81㎡/ 計 245.12㎡ /74.14坪 | ||
| 土地面積 | 426.32㎡ /128.96坪 | ||
| 築年月 | 1997年9月(築28年) | ||
| 入居時期 | 相談 | ||
| 用途地域 | 用途の指定のない地域 | 地目 | 宅地 (現状:宅地) |
| 都市計画 | 都市計画区域外 | 学校区 | 妙高小学校(3,200m)・妙高中学校(2,700m) |
| 形状 | 間口 25m × 奥行 17m | 道路 | 南西側6.5m市道、北西側7.3m市道 |
| 私道 | - | ||
| 所在階/階数 | - | 号室 | - |
|---|---|---|---|
| 販売価格 | 17,600,000円 | 方位 | - |
| 間取り |
4LDK (和室:8畳) (洋室:25、9、7.5) LDK24.5 |
||
| 専有面積 | - | バルコニー面積 | - |
| その他面積 | - | 駐車場 | - |
| 管理費 | - | 修繕積立金 | - |
| 現況 | 空家 | ||
| 仲介手数料 | 646,800円 | ||
| 利用制限 | - | ||
| 設備 | 角地、日当り良好、閑静な住宅街、瑕疵担保保険対象、新築時図面あり、LDK15帖以上、駐車3台以上可能、南向き、TVインターホン、複層ガラス、システムキッチン、追いだき機能付き、バス1坪以上、温水洗浄便座、トイレ2か所以上、シャワー付き洗面台、エアコンあり、LPG、上水道、下水道、全居室収納あり、内装リフォーム済み、外装リフォーム済み、別荘、田舎暮らし | ||
| 取引態様 | 売主 | ||
| 備考 | ・物件の購入は仲介業者媒介による契約となります。 ・ご入居後はミサワホームのメンテナンスサービスをご活用できます。 |
||
| 情報登録日 | 2025/11/16 | 次回更新予定日 | 2026/01/02 |
| 取引条件有効期限 | 2026/03/31 | ||
|
|
|
|
|
|
| TEL: | 0120-486-330 |
|---|---|
| 所在地: | 新潟県長岡市古正寺2丁目71番地 |
| 交通: | 長岡駅 |
| 営業時間: | 9:00~18:00/定休日:火・水 |
| 免許番号: | 国土交通大臣(3)8557号 |
| 所属団体名: | 新潟県宅地建物取引協会 長岡支部 |
| 取引態様: | 売主 |