| 物件コード | 00077-200015 | ||
|---|---|---|---|
| 物件名 | 新開町中古住宅 | ||
| 交通 | バス:新開から徒歩1分 | ||
| 物件所在地 | 新潟県長岡市新開町4119-1 他2筆 | ||
| 物件種別 | 中古一戸建て | ||
| 構造 | 木造 | 階建 | 地上2階建 |
| 建ぺい率/容積率 | 70%/200% | ||
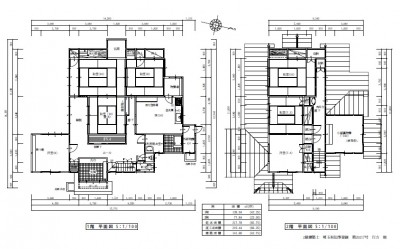
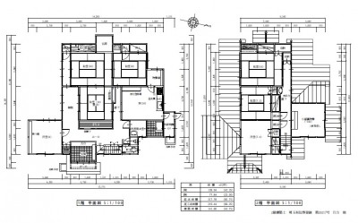
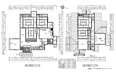
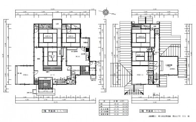
| 建物面積 | 1階 136.63㎡/ 2階 77.84㎡/ 計 214.47㎡ /64.87坪 | ||
| 土地面積 | 589.76㎡ /178.4坪 | ||
| 築年月 | 1980年12月(築45年) | ||
| 入居時期 | 随時入居(引き渡し)可 | ||
| 用途地域 | 用途の指定のない地域 | 地目 | 宅地 (現状:宅地) |
| 都市計画 | - | 学校区 | 下川西小学校・江陽中学校 |
| 形状 | - | 道路 | 県道槇下・南中線 |
| 私道 | - | ||
| 所在階/階数 | - | 号室 | - |
|---|---|---|---|
| 販売価格 | 6,000,000円 | 方位 | 北東 |
| 間取り |
7DK (和室:10畳、8畳、8畳、10畳、7.3畳、7.3畳) (洋室:8) DK10 2階に物置有り |
||
| 専有面積 | - | バルコニー面積 | - |
| その他面積 | - | 駐車場 | - |
| 管理費 | - | 修繕積立金 | - |
| 現況 | 空家 | ||
| 仲介手数料 | 264,000円 | ||
| 利用制限 | - | ||
| 設備 | 角地、日当り良好、駐車2台可能、LPG、上水道、下水道、即引き渡し可能 | ||
| 取引態様 | 専任 | ||
| 備考 | - | ||
| 情報登録日 | 2017/08/30 | 次回更新予定日 | 2026/06/13 |
| 取引条件有効期限 | - | ||
|
|
|
|
|
|
| TEL: | 0258-27-1191 |
|---|---|
| 所在地: | 新潟県長岡市宮関4丁目8番7号 |
| 交通: | |
| 営業時間: | 9:00~19:00/定休日:日曜・祭日 |
| 免許番号: | 新潟県知事(11)第1931号 |
| 所属団体名: | 新潟県宅地建物取引協会 長岡支部 |
| 取引態様: | 専任 |