| 4LDKの間取りで、平成19年建築、比較的きれいな戸建です。お求めやすい価格です。 | |||
| 物件コード | 00070-200104 | ||
|---|---|---|---|
| 物件名 | 見附市嶺崎1丁目土地建物 | ||
| 交通 | 駅:信越線 見附駅から徒歩39分 | ||
| 物件所在地 | 新潟県見附市嶺崎1丁目11-5 | ||
| 物件種別 | 中古一戸建て | ||
| 構造 | 木造 | 階建 | 地上2階建 |
| 建ぺい率/容積率 | 70%/200% | ||
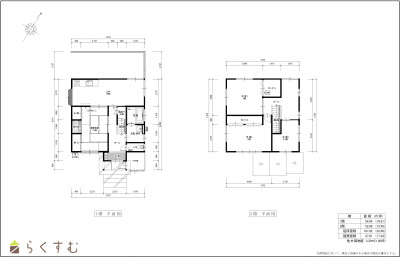
| 建物面積 | 1階 55.06㎡/ 2階 52.99㎡/ 計 108.05㎡ /32.68坪 | ||
| 土地面積 | 338.44㎡ /102.37坪 | ||
| 築年月 | 2007年5月(築19年) | ||
| 入居時期 | 随時入居(引き渡し)可 | ||
| 用途地域 | 無指定 | 地目 | 宅地 |
| 都市計画 | 市街化調整区域 | 学校区 | 見附小学校(1,214m)・見附中学校(1,293m) |
| 形状 | - | 道路 | 見附市道 |
| 私道 | - | ||
| 所在階/階数 | - | 号室 | - |
|---|---|---|---|
| 販売価格 | 11,600,000円 | 方位 | - |
| 間取り |
4LDK (和室:7.5畳) (洋室:8、8、4.5) LDK12 |
||
| 専有面積 | - | バルコニー面積 | - |
| その他面積 | - | 駐車場 | - |
| 管理費 | - | 修繕積立金 | - |
| 現況 | 空家 | ||
| 仲介手数料 | 448,800円 | ||
| 利用制限 | - | ||
| 設備 | 閑静な住宅街、駐車2台可能、TVインターホン、システムキッチン、3口コンロ、追いだき機能付き、温水洗浄便座、都市ガス、上水道、下水道、即引き渡し可能 | ||
| 取引態様 | 一般 | ||
| 備考 | 閑静な住宅街に立地している為、穏やかな生活を送ることが可能です。また、公園のそばの為、自然環境に恵まれ、四季折々を体感できる自然豊かな住環境です。近隣には郵便局やスーパーも立地しているので、生活利便性も良好です。4LDKなので、ファミリー向けとしても良好な間取りです。平成19年建築で、比較的きれいな戸建です。経済的にもバランスがとりやすい、お求めやすい価格です。 | ||
| 情報登録日 | 2026/03/06 | 次回更新予定日 | 2026/05/22 |
| 取引条件有効期限 | 2027/03/31 | ||
|
|
|
|
| TEL: | 0258-63-1112 |
|---|---|
| 所在地: | 新潟県見附市市野坪町31-3 |
| 交通: | 見附駅 |
| 営業時間: | 9:00~17:00/定休日:水・木曜日 |
| 免許番号: | 新潟県知事(9)第3180号 |
| 所属団体名: | 公益社団法人 新潟県宅地建物取引業協会 三条支部 |
| 取引態様: | 一般 |