| 物件コード | 00056-200192 | ||
|---|---|---|---|
| 物件名 | 長岡市大曲戸新田売り住宅 | ||
| 交通 | 駅:信越線 押切駅から徒歩24分、バス:大口から徒歩10分 | ||
| 物件所在地 | 新潟県長岡市大曲戸新田38-16 | ||
| 物件種別 | 中古一戸建て | ||
| 構造 | 木造 | 階建 | 地上2階建 |
| 建ぺい率/容積率 | 60%/200% | ||
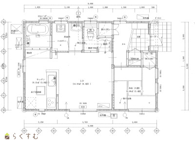
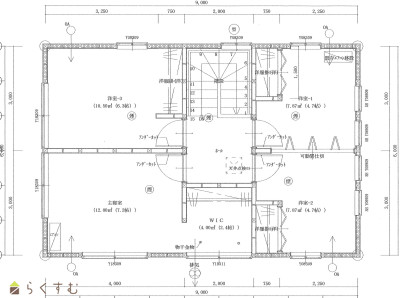
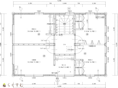
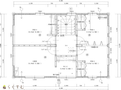
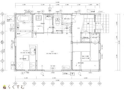
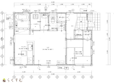
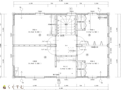
| 建物面積 | 1階 53㎡/ 2階 54㎡/ 計 107㎡ /32.36坪 | ||
| 土地面積 | 193.29㎡ /58.47坪 | ||
| 築年月 | 2009年3月(築17年) | ||
| 入居時期 | 随時入居(引き渡し)可 | ||
| 用途地域 | 第1種住居地域 | 地目 | 宅地 (現状:宅地) |
| 都市計画 | 市街化区域 | 学校区 | 上通小学校(474m)・中之島中学校(4,246m) |
| 形状 | 間口 12m × 奥行 15m | 道路 | 北向き公道6m 消雪道路 |
| 私道 | - | ||
| 所在階/階数 | - | 号室 | - |
|---|---|---|---|
| 販売価格 | 16,800,000円 | 方位 | 北 |
| 間取り |
5LDK (和室:5.4畳) (洋室:7.2、6.3、4.7、4.7) LDK9.1 |
||
| 専有面積 | - | バルコニー面積 | - |
| その他面積 | - | 駐車場 | - |
| 管理費 | - | 修繕積立金 | - |
| 現況 | 空家 | ||
| 仲介手数料 | 620,400円 | ||
| 利用制限 | - | ||
| 設備 | 閑静な住宅街、駐車2台可能、駐車3台以上可能、システムキッチン、カウンターキッチン、IHクッキングヒーター、追いだき機能付き、バス1坪以上、温水洗浄便座、シャワー付き洗面台、エアコンあり、オール電化、上水道、下水道 | ||
| 取引態様 | 一般 | ||
| 備考 | ご契約後、動産撤去→ハウスクリーニングを施しお引き渡しとなります。 | ||
| 情報登録日 | 2025/08/18 | 次回更新予定日 | 2026/05/22 |
| 取引条件有効期限 | 2026/03/13 | ||
|
|
|
|
| TEL: | 0258-34-3718 |
|---|---|
| 所在地: | 新潟県長岡市笹崎1-4-5武蔵ビル 2F |
| 交通: | 宮内駅 |
| 営業時間: | 9:00~18:00/定休日:日、祝日 |
| 免許番号: | 新潟県知事(3)第5117号 |
| 所属団体名: | 全日本不動産協会 新潟県本部 |
| 取引態様: | 一般 |