| FP工法の機密性能のよい家です | |||
| 物件コード | 00050-200424 | ||
|---|---|---|---|
| 物件名 | 刈羽村割町新田 | ||
| 交通 | 駅:越後線 刈羽駅から徒歩18分、バス:割町新田神社前から徒歩1分 | ||
| 物件所在地 | 新潟県刈羽郡刈羽村割町新田1463-1 | ||
| 物件種別 | 中古一戸建て | ||
| 構造 | 木造鉄筋コン | 階建 | 地上3階建 |
| 建ぺい率/容積率 | - | ||
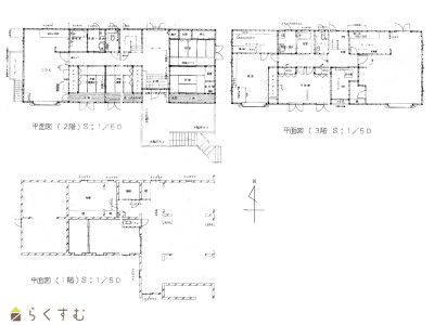
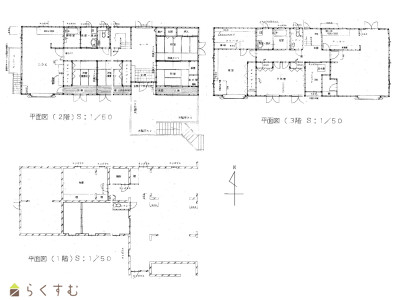
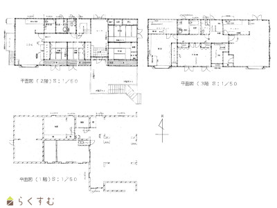
| 建物面積 | 1階 169.68㎡/ 2階 140.35㎡/ 3階 138.21㎡/ 計 448.24㎡ /135.59坪 | ||
| 土地面積 | 669.83㎡ /202.62坪 | ||
| 築年月 | 1998年8月(築27年) | ||
| 入居時期 | 2025年11月下旬 | ||
| 用途地域 | 無指定 | 地目 | 宅地 |
| 都市計画 | 都市計画区域外 | 学校区 | 刈羽小学校(662m)・刈羽中学校(801m) |
| 形状 | 間口 21.9m × 奥行 35.9m | 道路 | 県道黒部・柏崎線(369号線) |
| 私道 | - | ||
| 所在階/階数 | - | 号室 | - |
|---|---|---|---|
| 販売価格 | 23,000,000円 | 方位 | - |
| 間取り |
6LDK (和室:7.5畳、7.5畳、4.5畳、4.5畳) (洋室:13、8.5) 2階LDK約20、3階LDK約26 FP工法の機密性能のよい住宅です |
||
| 専有面積 | - | バルコニー面積 | - |
| その他面積 | - | 駐車場 | - |
| 管理費 | - | 修繕積立金 | - |
| 現況 | 居住中 | ||
| 仲介手数料 | 825,000円 | ||
| 利用制限 | - | ||
| 設備 | 角地、日当り良好、LDK15帖以上、駐車3台以上可能、南向き、システムキッチン、IHクッキングヒーター、追いだき機能付き、温水洗浄便座、トイレ2か所以上、シャワー付き洗面台、エアコンあり、オール電化、上水道、下水道、ウォークインクローゼット、全居室収納あり、2世帯向き、別荘、事業向け | ||
| 取引態様 | 専任 | ||
| 備考 | FP工法の機密性能のよい家です | ||
| 情報登録日 | 2025/10/10 | 次回更新予定日 | 2025/11/23 |
| 取引条件有効期限 | 2025/12/31 | ||
|
|
|
|
| TEL: | 0257-22-3357 |
|---|---|
| 所在地: | 新潟県柏崎市横山440番地1 |
| 交通: | 柏崎駅 |
| 営業時間: | 9:00~17:30/定休日:日曜・祭日 |
| 免許番号: | 新潟県知事(14)第1377号 |
| 所属団体名: | 新潟県宅地建物取引業協会 柏崎支部 |
| 取引態様: | 専任 |