| 玄関収納、パントリー、クローゼットは収納たっぷりですっきり片付きます。 | |||
| 物件コード | 00050-200385 | ||
|---|---|---|---|
| 物件名 | 半田2丁目 | ||
| 交通 | 駅:信越線 茨目駅から徒歩12分、バス:半田西から徒歩3分 | ||
| 物件所在地 | 新潟県柏崎市半田2丁目27-17 | ||
| 物件種別 | 中古一戸建て | ||
| 構造 | 木造 | 階建 | 地上2階建 |
| 建ぺい率/容積率 | 70%/200% | ||
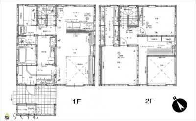
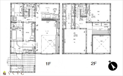
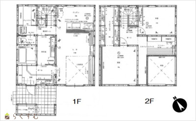
| 建物面積 | 1階 54.65㎡/ 2階 45.54㎡/ 計 100.19㎡ /30.3坪 | ||
| 土地面積 | 217.22㎡ /65.7坪 | ||
| 築年月 | 2021年10月(築4年) | ||
| 入居時期 | 相談 | ||
| 用途地域 | 無指定 | 地目 | 宅地 |
| 都市計画 | 非線引き都市計画区域 | 学校区 | 半田小学校(510m)・鏡が沖中学校(1,676m) |
| 形状 | 間口 13.11m × 奥行 16.45m | 道路 | 柏崎市道:除雪有 |
| 私道 | - | ||
| 所在階/階数 | - | 号室 | - |
|---|---|---|---|
| 販売価格 | 28,000,000円 | 方位 | 南東 |
| 間取り |
2LDK (洋室:8、6) LD11 |
||
| 専有面積 | - | バルコニー面積 | - |
| その他面積 | - | 駐車場 | - |
| 管理費 | - | 修繕積立金 | - |
| 現況 | 居住中 | ||
| 仲介手数料 | 990,000円 | ||
| 利用制限 | - | ||
| 設備 | 日当り良好、閑静な住宅街、長期優良住宅、設計住宅性能評価付、耐震基準適合証明書あり、新築時図面あり、全室フローリング、築10年以内、駐車3台以上可能、TVインターホン、複層ガラス、システムキッチン、カウンターキッチン、IHクッキングヒーター、食器洗浄乾燥機、追いだき機能付き、バス1坪以上、温水洗浄便座、シャワー付き洗面台、エアコンあり、オール電化、上水道、下水道、全居室収納あり | ||
| 取引態様 | 一般 | ||
| 備考 | 内覧ご希望の方は、事前にご連絡ください。 | ||
| 情報登録日 | 2024/11/16 | 次回更新予定日 | 2026/04/12 |
| 取引条件有効期限 | 2025/05/31 | ||
|
|
|
|
|
|
| TEL: | 0257-22-3357 |
|---|---|
| 所在地: | 新潟県柏崎市横山440番地1 |
| 交通: | 柏崎駅 |
| 営業時間: | 9:00~17:30/定休日:日曜・祭日 |
| 免許番号: | 新潟県知事(14)第1377号 |
| 所属団体名: | 新潟県宅地建物取引業協会 柏崎支部 |
| 取引態様: | 一般 |