| 敷地内は融雪井戸がありますので冬も安心です。 | |||
| 物件コード | 00044-200710 | ||
|---|---|---|---|
| 物件名 | 南魚沼市坂戸 売ビル(温泉引込可能) | ||
| 交通 | 駅:上越線 六日町駅から徒歩13分、バス:坂戸橋東詰から徒歩2分 | ||
| 物件所在地 | 新潟県南魚沼市坂戸32-4 | ||
| 物件種別 | 投資物件・その他 | ||
| 物件区分 | その他 | ||
| 構造 | 鉄筋コン | 階建 | 地上2階建 |
| 建ぺい率/容積率 | 80%/400% | ||
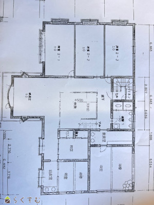
| 建物面積 | 1階 242.85㎡/ 2階 220.6㎡/ 計 463.45㎡ /140.19坪 | ||
| 土地面積 | 1,930.98㎡ /584.12坪 | ||
| 築年月 | 1992年4月(築34年) | ||
| 入居時期 | 随時入居(引き渡し)可 | ||
| 用途地域 | 商業地域 | 地目 | 宅地 |
| 都市計画 | 非線引き都市計画区域 | 学校区 | 六日町小学校(378m)・六日町中学校(1,288m) |
| 形状 | 間口 49.06m × 奥行 40.21m | 道路 | 南側:公道 16m |
| 私道 | - | ||
| 所在階/階数 | - | 号室 | - |
|---|---|---|---|
| 販売価格 | 35,000,000円 | 方位 | - |
| 表面利回り (満室想定時) |
- | 満室想定年収 | - (想定月収: - ) |
| 現行利回り | - | 現行年間年収 | - |
| 住戸数 | - | ||
| 間取り | 5LDK | ||
| 専有面積 | - | バルコニー面積 | - |
| その他面積 | - | 駐車場 | 無料 |
| 管理費 | - | 修繕積立金 | - |
| 現況 | 居住中 | ||
| 仲介手数料 | 1,221,000円 | ||
| 利用制限 | - | ||
| 設備 | 南側道路面す、駐車場(近隣含む)、公営水道、下水道、浄化槽、事業向け、別荘、田舎暮らし | ||
| 取引態様 | 一般 | ||
| 備考 | ■現況有姿での引渡しとなります。 | ||
| 情報登録日 | 2026/04/02 | 次回更新予定日 | 2026/05/01 |
| 取引条件有効期限 | 2026/04/20 | ||
|
|
|
|
|
|
| TEL: | 0258-86-6934 |
|---|---|
| 所在地: | 新潟県長岡市大島本町3丁目10番8号202号室 |
| 交通: | |
| 営業時間: | 9:30~18:00/定休日:水曜日、日曜日 |
| 免許番号: | 新潟県知事(4)第4978号 |
| 所属団体名: | ブレインリアルエステート合同会社 |
| 取引態様: | 一般 |