| 69坪の敷地 | |||
| 物件コード | 00044-200684 | ||
|---|---|---|---|
| 物件名 | 見附市本所2丁目 中古住宅 | ||
| 交通 | 駅:信越線 見附駅から徒歩3分、バス:見附駅前から徒歩3分 | ||
| 物件所在地 | 新潟県見附市本所2-7-23 | ||
| 物件種別 | 中古一戸建て | ||
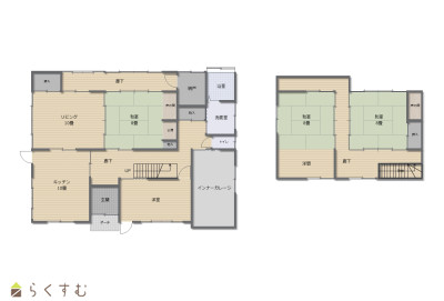
| 構造 | 木造 | 階建 | 地上2階建 |
| 建ぺい率/容積率 | 60%/200% | ||
| 建物面積 | 1階 119.21㎡/ 2階 49.68㎡/ 計 168.89㎡ /51.08坪 | ||
| 土地面積 | 231.43㎡ /70坪 | ||
| 築年月 | 1985年10月(築40年) | ||
| 入居時期 | 相談 | ||
| 用途地域 | 第1種中高層住居専用地域 | 地目 | 宅地 |
| 都市計画 | 市街化区域 | 学校区 | 見附小学校(1,759m)・西中学校(1,358m) |
| 形状 | - | 道路 | 北東側 市道 6m |
| 私道 | - | ||
| 所在階/階数 | - | 号室 | - |
|---|---|---|---|
| 販売価格 | 6,500,000円 | 方位 | 北東 |
| 間取り | 4LDK | ||
| 専有面積 | - | バルコニー面積 | - |
| その他面積 | - | 駐車場 | - |
| 管理費 | - | 修繕積立金 | - |
| 現況 | 空家 | ||
| 仲介手数料 | 330,000円 | ||
| 利用制限 | - | ||
| 設備 | 日当り良好、都市ガス、上水道、下水道 | ||
| 取引態様 | 一般 | ||
| 備考 | ■駐車場は1台分しかありません ■現況有姿での引渡し売主による契約不適合責任は免責 ■固定資産税 年58,500円 ■解体見積もり承ります ■ | ||
| 情報登録日 | 2025/08/22 | 次回更新予定日 | 2026/05/22 |
| 取引条件有効期限 | 2025/11/01 | ||
|
|
|
|
|
|
| TEL: | 0258-86-6934 |
|---|---|
| 所在地: | 新潟県長岡市大島本町3丁目10番8号202号室 |
| 交通: | |
| 営業時間: | 9:30~18:00/定休日:水曜日、日曜日 |
| 免許番号: | 新潟県知事(4)第4978号 |
| 所属団体名: | ブレインリアルエステート合同会社 |
| 取引態様: | 一般 |