| 宮内小学校まで徒歩17分、宮内中学校まで徒歩15分です。 | |||
| 物件コード | 00041-200831 | ||
|---|---|---|---|
| 物件名 | 【価格改定】今井2丁目B棟(学区:宮内小・宮内中) | ||
| 交通 | 駅:信越線 宮内駅から徒歩20分、バス:今宮橋から徒歩5分 | ||
| 物件所在地 | 新潟県長岡市今井2丁目187-2 | ||
| 物件種別 | 新築一戸建て | ||
| 構造 | 木造 | 階建 | 地上2階建 |
| 建ぺい率/容積率 | 50%/80% | ||
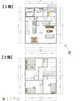
| 建物面積 | 1階 44.71㎡/ 2階 46.37㎡/ 計 91.08㎡ /27.55坪 | ||
| 土地面積 | 150.44㎡ /45.5坪 | ||
| 築年月 | 2023年12月(築1年) | ||
| 入居時期 | 随時入居(引き渡し)可 | ||
| 用途地域 | 第1種低層住居専用地域 | 地目 | 宅地 (現状:宅地) |
| 都市計画 | 市街化区域 | 学校区 | 宮内小学校(1,300m)・宮内中学校(1,200m) |
| 形状 | - | 道路 | 北側/公道/幅員 約6.0m |
| 私道 | - | ||
| 所在階/階数 | - | 号室 | - |
|---|---|---|---|
| 販売価格 | 22,550,000円 | 方位 | 南 |
| 間取り |
3LDK (洋室:7、6、6) LDK16.0 |
||
| 専有面積 | - | バルコニー面積 | - |
| その他面積 | - | 駐車場 | - |
| 管理費 | - | 修繕積立金 | - |
| 現況 | 空家 | ||
| 仲介手数料 | なし | ||
| 利用制限 | - | ||
| 設備 | 整形地、前面道路6m以上、日当り良好、閑静な住宅街、瑕疵担保保険付き、建物確認・完了検査済証あり、LDK15畳以上、全室フローリング、駐車場2台以上、庭あり、TVインターホン、複層ガラス、システムキッチン、IHクッキングヒーター、浄水器、食器洗浄乾燥機、追いだき機能付き、バス1坪以上、温水洗浄便座、シャワー付き洗面台、エアコン、24時間換気システム、オール電化、省エネ給湯、上水道、下水道、電気、全居室収納あり、BS端子、照明器具付き | ||
| 取引態様 | 売主 | ||
| 備考 | ■令和7年9月価格改定(旧価格2,355万円) ■キッチンには収納付で、食品や飲料のストック場所には困りません♪ ■細かい収納が豊富で収納スペースには困りません♪ ■2階には広々サンルームがあり、物干しスペースも充実♪ ■宮内小学校、宮内中学校共に徒歩20分圏内です♪ ■ウオロク要町店、クスリのアオキ西宮内店、車で5分圏内で買い物施設も充実♪ 【月々5万円台~返済可能】 ※借入額:2,355万円、借入年数:40年、金利:0.825%、銀行:第四北越銀行 以上の条件算出した場合月々返済額:58,165円 |
||
| 情報登録日 | 2025/09/29 | 次回更新予定日 | 2025/11/16 |
| 取引条件有効期限 | 2025/12/31 | ||
|
|
|
|
| TEL: | 0258-33-7711 |
|---|---|
| 所在地: | 新潟県長岡市柏町1丁目4-33 |
| 交通: | 長岡駅 |
| 営業時間: | 9:00~17:30/定休日:土曜日・日曜日・祝日・お盆・年末年始 |
| 免許番号: | 新潟県知事(1)第5568号 |
| 所属団体名: | (公社)新潟県宅地建物取引業協会,(公社)首都圏不動産公正取引協議会,(公財)日本賃貸住宅管理協会 |
| 取引態様: | 売主 |