| 給湯器やガス・上下水の配管も新品交換済みです! | |||
| 物件コード | 00040-201050 | ||
|---|---|---|---|
| 物件名 | 柏崎畔屋 戸建て | ||
| 交通 | 駅:越後線 西中通駅から徒歩57分、バス:畔屋から徒歩4分 | ||
| 物件所在地 | 新潟県柏崎市畔屋2230番1 | ||
| 物件種別 | 中古一戸建て | ||
| 構造 | 木造 | 階建 | 地上2階建 |
| 建ぺい率/容積率 | 70%/200% | ||
| 建物面積 | 1階 109.51㎡/ 2階 31.46㎡/ 計 140.97㎡ /42.64坪 | ||
| 土地面積 | 532.17㎡ /160.98坪 | ||
| 築年月 | 1975年1月(築51年) | ||
| 入居時期 | 随時入居(引き渡し)可 | ||
| 用途地域 | 無指定 | 地目 | 宅地 (現状:上物有り) |
| 都市計画 | 非線引き都市計画区域 | 学校区 | 北鯖石小学校(1,362m)・東中学校(2,211m) |
| 形状 | - | 道路 | 北側公道幅員5.1 m、南側公道幅員3.4m~4.2m |
| 私道 | - | ||
| 所在階/階数 | - | 号室 | - |
|---|---|---|---|
| 販売価格 | 3,300,000円 | 方位 | 指定なし |
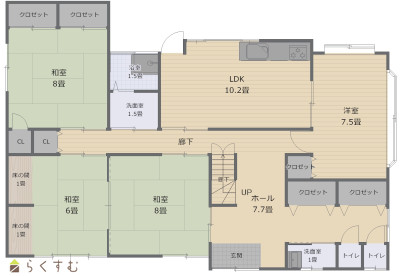
| 間取り |
6DK DK約10畳 ・隣接地との境界の明示は行いません。・現況有形有姿での引渡しとなります。 |
||
| 専有面積 | - | バルコニー面積 | - |
| その他面積 | - | 駐車場 | - |
| 管理費 | - | 修繕積立金 | - |
| 現況 | 空家 | ||
| 仲介手数料 | 330,000円 | ||
| 利用制限 | - | ||
| 設備 | 日当り良好、閑静な住宅街、駐車2台可能、駐車3台以上可能、トイレ2か所以上、エアコンあり、都市ガス、上水道、下水道、内装リフォーム済み、外装リフォーム済み | ||
| 取引態様 | 一般 | ||
| 備考 | ・隣接地との境界の明示は行いません。(公簿面積売買) ・隣接者所有の物置小屋一部が本物件内に越境しています。 ・上記状況及び物件内の動産物(残置物)含めて現況有形有姿での引渡しです。 ・南側公道幅員:3.4m~4.2m |
||
| 情報登録日 | 2024/11/05 | 次回更新予定日 | 2026/05/22 |
| 取引条件有効期限 | 2024/01/02 | ||
|
|
|
|
|
|
| TEL: | 0120-1818-27 |
|---|---|
| 所在地: | 新潟県長岡市千歳1-3-25 |
| 交通: | 長岡駅 |
| 営業時間: | 8時30分~17時30分(大手支店は9時~18時)/定休日:本社:土日祝日(事前予約での対応可能)、支店:日曜祝日第5土曜(毎年2月下旬から3月は休みなし) |
| 免許番号: | 新潟県知事(17)第191号 |
| 所属団体名: | 新潟県宅地建物取引協会 長岡支部 |
| 取引態様: | 一般 |