| 浴室暖房、洗面所にヒーター有り!寒い冬でも快適です☆彡 | |||
| 物件コード | 00040-201031 | ||
|---|---|---|---|
| 物件名 | 城岡1丁目 売住宅 | ||
| 交通 | 駅:信越線 北長岡駅から徒歩2分、バス:新町2丁目から徒歩3分 | ||
| 物件所在地 | 新潟県長岡市城岡1丁目6-32 | ||
| 物件種別 | 中古一戸建て | ||
| 構造 | 木造 | 階建 | 地上2階建 | 
| 建ぺい率/容積率 | 60%/200% | ||
| 建物面積 | 1階 52.98㎡/ 2階 52.17㎡/ 計 105.15㎡ /31.8坪 | ||
| 土地面積 | 182.31㎡ /55.14坪 | ||
| 築年月 | 2008年10月(築17年) | ||
| 入居時期 | 随時入居(引き渡し)可 | ||
| 用途地域 | 工業地域 | 地目 | 宅地 (現状:宅地) | 
| 都市計画 | 市街化区域 | 学校区 | 新町小学校(574m)・北中学校(844m) | 
| 形状 | 間口 9.2m × 奥行 19.3m | 道路 | 東側 公道 幅員5.2m | 
| 私道 | - | ||
| 所在階/階数 | - | 号室 | - | 
|---|---|---|---|
| 販売価格 | 20,900,000円 | 方位 | 東 | 
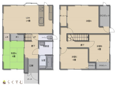
| 間取り | 
													4LDK (和室:6畳) (洋室:6、6、9.7) LDK14  | 
					||
| 専有面積 | - | バルコニー面積 | - | 
| その他面積 | - | 駐車場 | - | 
| 管理費 | - | 修繕積立金 | - | 
| 現況 | 空家 | ||
| 仲介手数料 | 755,700円 | ||
| 利用制限 | - | ||
| 設備 | 日当り良好、閑静な住宅街、スーパー近く、駐車3台以上可能、TVインターホン、デインプルキー、システムキッチン、カウンターキッチン、IHクッキングヒーター、3口コンロ、追いだき機能付き、浴室乾燥機、バス1坪以上、温水洗浄便座、シャワー付き洗面台、エアコンあり、都市ガス、上水道、下水道、ウォークインクローゼット、全居室収納あり、シューズBOX、即引き渡し可能 | ||
| 取引態様 | 一般 | ||
| 備考 | ※カーポートの一部が前面道路に越境しています。 ※建築基準法第22条区域、まちなか居住区域に該当します。  | 
					||
| 情報登録日 | 2025/07/16 | 次回更新予定日 | 2025/11/18 | 
| 取引条件有効期限 | 2024/10/09 | ||
							 
						 | 
						
							 
						 | 
					
							 
						 | 
						
							 
						 | 
					
| TEL: | 0120-1818-27 | 
|---|---|
| 所在地: | 新潟県長岡市千歳1-3-25 | 
| 交通: | 長岡駅 | 
| 営業時間: | 8時30分~17時30分(大手支店は9時~18時)/定休日:本社:土日祝日(事前予約での対応可能)、支店:日曜祝日第5土曜(毎年2月下旬から3月は休みなし) | 
| 免許番号: | 新潟県知事(17)第191号 | 
| 所属団体名: | 新潟県宅地建物取引協会 長岡支部 | 
| 取引態様: | 一般 |