| 令和2年リフォーム済み!美しい内装はそのままに。憧れの店舗をすぐにオープンできる居抜き物件!あなたの思い描くお店を実現してください。 | |||
| 物件コード | 00039-200292 | ||
|---|---|---|---|
| 物件名 | 見附市芝野町 売店舗 令和2年リフォーム済み!美しい内装 | ||
| 交通 | 駅:信越線 見附駅から徒歩17分、バス:芝野から徒歩1分 | ||
| 物件所在地 | 新潟県見附市芝野町1206 | ||
| 物件種別 | 投資物件・その他 | ||
| 物件区分 | その他 | ||
| 構造 | 木造 | 階建 | 地上2階建 |
| 建ぺい率/容積率 | 60%/200% | ||
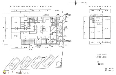
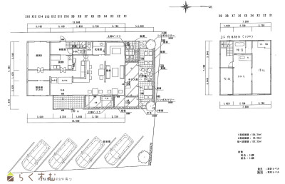
| 建物面積 | 1階 240.98㎡/ 2階 52.99㎡/ 計 293.97㎡ /88.92坪 | ||
| 土地面積 | 684㎡ /206.91坪 | ||
| 築年月 | 2006年7月(築19年) | ||
| 入居時期 | 相談 | ||
| 用途地域 | 準工業地域 | 地目 | 宅地 |
| 都市計画 | 市街化区域 | 学校区 | 今町小学校(1,308m)・今町中学校(551m) |
| 形状 | 間口 18.5m | 道路 | 見附市道 |
| 私道 | - | ||
| 所在階/階数 | - | 号室 | - |
|---|---|---|---|
| 販売価格 | 35,000,000円 | 方位 | - |
| 表面利回り (満室想定時) |
- | 満室想定年収 | - (想定月収: - ) |
| 現行利回り | - | 現行年間年収 | - |
| 住戸数 | - | ||
| 間取り | - | ||
| 専有面積 | - | バルコニー面積 | - |
| その他面積 | - | 駐車場 | 8台以上可 |
| 管理費 | - | 修繕積立金 | - |
| 現況 | 空家 | ||
| 仲介手数料 | 1,221,000円 | ||
| 利用制限 | - | ||
| 設備 | 公営水道、下水道、事業向け | ||
| 取引態様 | 一般 | ||
| 備考 | 賃貸をご希望の方は相談可能です。 | ||
| 情報登録日 | 2026/03/15 | 次回更新予定日 | 2026/05/22 |
| 取引条件有効期限 | 2026/04/30 | ||
|
|
|
|
|
|
| TEL: | 0258-94-4370 |
|---|---|
| 所在地: | 新潟県長岡市古正寺1-249-1イオン長岡店3F |
| 交通: | 長岡駅 |
| 営業時間: | 10:00~20:00/定休日:年末年始・特別日はお休みいたします |
| 免許番号: | 新潟県知事(3)第5090号 |
| 所属団体名: | 全日本不動産協会 新潟県本部 |
| 取引態様: | 一般 |