| 物件コード | 00011-200340 | ||
|---|---|---|---|
| 物件名 | 売住宅『与板町城山1』 他に家庭用菜園土地42坪付き | ||
| 交通 | バス:城山団地から徒歩3分 | ||
| 物件所在地 | 長岡市与板町城山1-5-4 | ||
| 物件種別 | 中古一戸建て | ||
| 構造 | 木造 | 階建 | 地上2階建 |
| 建ぺい率/容積率 | 60%/200% | ||
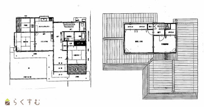
| 建物面積 | 計 146.15㎡ /44.21坪 | ||
| 土地面積 | 425.07㎡ /128.58坪 | ||
| 築年月 | 1998年3月(築28年) | ||
| 入居時期 | 相談 | ||
| 用途地域 | 第1種住居地域 | 地目 | 宅地 (現状:宅地) |
| 都市計画 | 市街化区域 | 学校区 | 与板小学校(1,411m)・与板中学校(1,366m) |
| 形状 | 間口 17m × 奥行 25m | 道路 | 与板178号線/与板179号線 |
| 私道 | - | ||
| 所在階/階数 | - | 号室 | - |
|---|---|---|---|
| 販売価格 | 15,000,000円 | 方位 | - |
| 間取り | 6DK (和室:3畳、8畳、8畳) (洋室:8、10、6) | ||
| 専有面積 | - | バルコニー面積 | - |
| その他面積 | - | 駐車場 | - |
| 管理費 | - | 修繕積立金 | - |
| 現況 | 空家 | ||
| 仲介手数料 | 561,000円 | ||
| 利用制限 | - | ||
| 設備 | 角地、日当り良好、閑静な住宅街、駐車2台可能、駐車3台以上可能、南向き、追いだき機能付き、エアコンあり、都市ガス、上水道、下水道、田舎暮らし | ||
| 取引態様 | 一般 | ||
| 備考 | - | ||
| 情報登録日 | 2026/04/17 | 次回更新予定日 | 2026/05/22 |
| 取引条件有効期限 | 2026/08/31 | ||
|
|
|
|
|
|
| TEL: | 0258-24-0623 |
|---|---|
| 所在地: | 新潟県長岡市蔵王2丁目4番17号 |
| 交通: | JR北長岡駅 |
| 営業時間: | 8:30~17:30/定休日:第2・4土曜・日曜・祭日 |
| 免許番号: | 新潟県知事(2)第5364号 |
| 所属団体名: | 新潟県宅地建物取引業協会 長岡支部 |
| 取引態様: | 一般 |