| 広々とした玄関ホールで、大切なお客様をお出迎え! お部屋は10帖以上のゆったりとした間取りで収納も充実! | |||
| 物件コード | 00008-200269 | ||
|---|---|---|---|
| 物件名 | 宝5丁目中古住宅 | ||
| 交通 | バス:宝4丁目から徒歩4分 | ||
| 物件所在地 | 長岡市宝5丁目5番地9 | ||
| 物件種別 | 中古一戸建て | ||
| 構造 | 木造 | 階建 | 地上2階建 |
| 建ぺい率/容積率 | 60%/200% | ||
| 建物面積 | 1階 81.1㎡/ 2階 52.02㎡/ 計 133.12㎡ /40.26坪 | ||
| 土地面積 | 246.96㎡ /74.7坪 | ||
| 築年月 | 2009年9月(築16年) | ||
| 入居時期 | 随時入居(引き渡し)可 | ||
| 用途地域 | 第1種中高層住居専用地域 | 地目 | 宅地 (現状:建付地) |
| 都市計画 | 市街化区域 | 学校区 | 黒条小学校(1,067m)・堤岡中学校(1,125m) |
| 形状 | 間口 12.35m × 奥行 20.01m | 道路 | 西側長岡市道8m(消雪道路) |
| 私道 | - | ||
| 所在階/階数 | - | 号室 | - |
|---|---|---|---|
| 販売価格 | 23,000,000円 | 方位 | 西 |
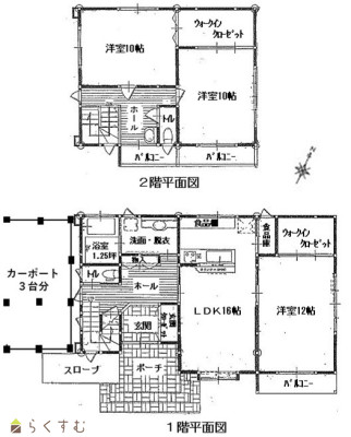
| 間取り |
3LDK (洋室:12、10、10) LDK16 |
||
| 専有面積 | - | バルコニー面積 | - |
| その他面積 | - | 駐車場 | - |
| 管理費 | - | 修繕積立金 | - |
| 現況 | 空家 | ||
| 仲介手数料 | 825,000円 | ||
| 利用制限 | - | ||
| 設備 | 日当り良好、閑静な住宅街、新築時図面あり、建物確認・完了検査済証あり、LDK15帖以上、全室フローリング、駐車3台以上可能、南向き、TVインターホン、複層ガラス、システムキッチン、IHクッキングヒーター、3口コンロ、追いだき機能付き、バス1坪以上、温水洗浄便座、トイレ2か所以上、シャワー付き洗面台、床暖房、24時間換気システム、都市ガス、上水道、下水道、全居室収納あり、シューズインクローゼット | ||
| 取引態様 | 一般 | ||
| 備考 | ■床暖房と温水配管で長岡の冬も安心! 床暖房(1階リビング、洋室、脱衣、トイレ) 各部屋に温水配管済み(温水ルームヒーターをご準備下さい) ■テレビ付の広めなお風呂で、一日の疲れをリフレッシュ! |
||
| 情報登録日 | 2025/12/18 | 次回更新予定日 | 2026/04/03 |
| 取引条件有効期限 | 2026/03/31 | ||
|
|
|
|
|
| TEL: | 0258-39-6030 |
|---|---|
| 所在地: | 新潟県長岡市西新町1-8-11 |
| 交通: | 「新町小学校前」バス停徒歩1分 |
| 営業時間: | 9:00~18:30/定休日:日曜・祭日 |
| 免許番号: | 新潟県知事(4)4829号 |
| 所属団体名: | 公益社団法人 新潟県宅地建物取引業協会 |
| 取引態様: | 一般 |