| <令和8年8月完成予定>陽光あふれる南西向きリビングで、心地よい毎日を送れます♪ ●ドラッグストアやコンビニが徒歩圏内でお買い物に便利な立地です♪ ●駅近で通勤通学にも便利!旅行や遠出する際、交通手段の選択肢が増えますね♪ ●前面道路が広く、車の出し入れがスムーズ♪ ●前面道路には消雪パイプも完備で冬も安心! ●保育園徒歩圏内で送り迎えに便利! | |||
| 物件コード | 00007-200780 | ||
|---|---|---|---|
| 物件名 | 見附市本所1丁目 建売住宅 1号棟 | ||
| 交通 | 駅:信越線 見附駅から徒歩9分、バス:見附高校前から徒歩3分 | ||
| 物件所在地 | 新潟県見附市本所1丁目513番20 | ||
| 物件種別 | 新築一戸建て | ||
| 構造 | 木造 | 階建 | 地上2階建 |
| 建ぺい率/容積率 | 60%/200% | ||
| 建物面積 | 計 93.91㎡ /28.4坪 | ||
| 土地面積 | 150.13㎡ /45.41坪 | ||
| 築年月 | 2026年8月完成予定 | ||
| 入居時期 | 相談 | ||
| 用途地域 | 第1種中高層住居専用地域 | 地目 | 宅地 |
| 都市計画 | 市街化区域 | 学校区 | 見附小学校(1,305m)・西中学校(1,277m) |
| 形状 | - | 道路 | 北東側:市道8.0m |
| 私道 | - | ||
| 所在階/階数 | - | 号室 | - |
|---|---|---|---|
| 販売価格 | 25,800,000円 | 方位 | 北東 |
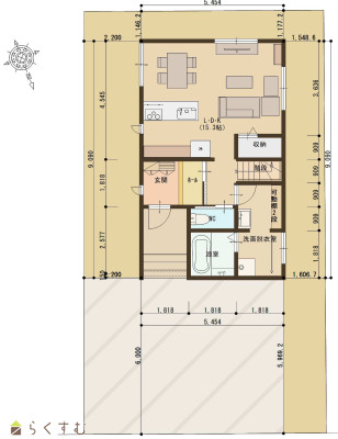
| 間取り |
3LDK (洋室:8、6、6) LDK15.3 建築確認番号:NK第25長01198号 |
||
| 専有面積 | - | バルコニー面積 | - |
| その他面積 | - | 駐車場 | - |
| 管理費 | - | 修繕積立金 | - |
| 現況 | 指定なし | ||
| 仲介手数料 | なし | ||
| 利用制限 | - | ||
| 設備 | 整形地、前面道路6m以上、日当り良好、閑静な住宅街、BELS/省エネ基準適合認定建物、フラット35S適合、LDK15畳以上、全室フローリング、駐車場2台以上、駐車場3台以上、TVインターホン、複層ガラス、ディンプルキー、システムキッチン、IHクッキングヒーター、3口コンロ、追いだき機能付き、バス1坪以上、温水洗浄便座、シャワー付き洗面台、エアコン、24時間換気システム、省エネ給湯、高気密高断熱住宅、都市ガス、上水道、下水道、電気、ウォークインクローゼット、全居室収納あり、床下収納、シューズBOX、照明器具付き | ||
| 取引態様 | 売主 | ||
| 備考 | ・22条指定区域 ※物件掲載内容と現況に相違がある場合は現況を優先と致します。 詳細はお気軽にお問い合わせください。 担当:湯沢 携帯:090-2884-6113 |
||
| 情報登録日 | 2026/04/28 | 次回更新予定日 | 2026/05/13 |
| 取引条件有効期限 | 2026/06/01 | ||
|
|
|
|
|
| TEL: | 0258-34-2221 |
|---|---|
| 所在地: | 新潟県長岡市信濃2-5-36 |
| 交通: | 長岡駅 |
| 営業時間: | 9:00~18:00/定休日: |
| 免許番号: | 新潟県知事(12)2196号 |
| 所属団体名: | 新潟県宅地建物取引業協会 長岡支部 |
| 取引態様: | 売主 |