| <令和8年6月完成予定>◆小学校や商業施設が徒歩圏内に充実していて生活に便利な立地♪ ◆前面道路には消雪パイプがありますので、冬も安心です。 ◆白と木目調の外観がつくる、明るくやさしい佇まいの建売住宅。 ◆南側リビングの光あふれる空間に、LDK収納とパントリーを備えた、心地よい暮らし。 ◆南側のお庭スペースは、植物の栽培やお子様の遊び場など、多用途に使えるお庭スペース。 | |||
| 物件コード | 00007-200771 | ||
|---|---|---|---|
| 物件名 | 燕市吉田西太田 建売住宅 3号棟 | ||
| 交通 | 駅:越後線 南吉田駅から徒歩7分、バス:南吉田駅から徒歩7分 | ||
| 物件所在地 | 新潟県燕市吉田西太田字札木276番16 | ||
| 物件種別 | 新築一戸建て | ||
| 構造 | 木造 | 階建 | 地上2階建 |
| 建ぺい率/容積率 | 60%/200% | ||
| 建物面積 | 計 86.74㎡ /26.23坪 | ||
| 土地面積 | 165㎡ /49.91坪 | ||
| 築年月 | 2026年6月完成予定 | ||
| 入居時期 | 相談 | ||
| 用途地域 | 第1種住居地域 | 地目 | 畑 (現状:宅地) |
| 都市計画 | 非線引き都市計画区域 | 学校区 | 吉田南小学校(1,003m)・吉田中学校(3,499m) |
| 形状 | - | 道路 | 北側:市道5.0m |
| 私道 | - | ||
| 所在階/階数 | - | 号室 | - |
|---|---|---|---|
| 販売価格 | 23,800,000円 | 方位 | 北 |
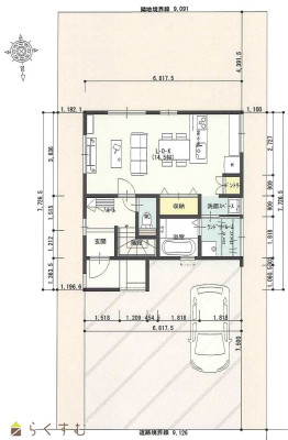
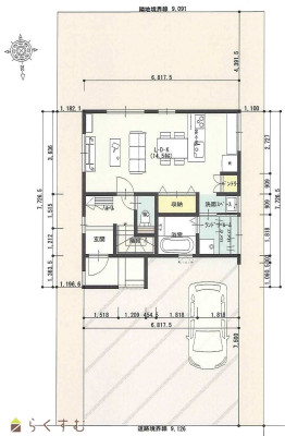
| 間取り |
3LDK (洋室:7、6、6) LDK14.5 建築確認番号:NK第24長01154号 |
||
| 専有面積 | - | バルコニー面積 | - |
| その他面積 | - | 駐車場 | - |
| 管理費 | - | 修繕積立金 | - |
| 現況 | 指定なし | ||
| 仲介手数料 | なし | ||
| 利用制限 | - | ||
| 設備 | 整形地、日当り良好、閑静な住宅街、BELS/省エネ基準適合認定建物、フラット35S適合、全室フローリング、駐車場2台以上、南向き、庭あり、TVインターホン、複層ガラス、ディンプルキー、システムキッチン、IHクッキングヒーター、3口コンロ、追いだき機能付き、バス1坪以上、温水洗浄便座、シャワー付き洗面台、エアコン、24時間換気システム、省エネ給湯、高気密高断熱住宅、都市ガス、上水道、下水道、電気、ウォークインクローゼット、全居室収納あり、床下収納、シューズBOX、照明器具付き | ||
| 取引態様 | 売主 | ||
| 備考 | ※物件掲載内容と現況に相違がある場合は現況を優先と致します。 詳細はお気軽にお問い合わせください。 担当:竹之内 携帯:090-7815-6720 |
||
| 情報登録日 | 2026/04/04 | 次回更新予定日 | 2026/05/13 |
| 取引条件有効期限 | 2026/06/01 | ||
|
|
|
|
|
| TEL: | 0258-34-2221 |
|---|---|
| 所在地: | 新潟県長岡市信濃2-5-36 |
| 交通: | 長岡駅 |
| 営業時間: | 9:00~18:00/定休日: |
| 免許番号: | 新潟県知事(12)2196号 |
| 所属団体名: | 新潟県宅地建物取引業協会 長岡支部 |
| 取引態様: | 売主 |